Prodej bytu 5+kk, Praha - Karlín, Prvního pluku, 147 m2 (ID: 2385988)

Prvního pluku, Praha, Karlín

21 990 000 Kč /za nemovitost HYPOTÉKA od 98 282 Kč /za měsíc

(Včetně provize a právního servisu.)

Doporučené firmy v Praze 8

Stěhovací služby

Výkup a prodej starého nábytku

Informace k bytu

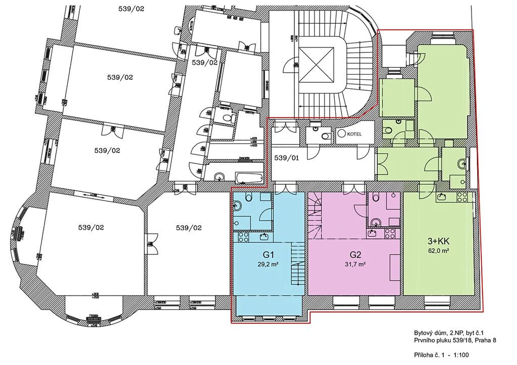
Exkluzivně k prodeji nabízím výjimečný byt po kompletní rozsáhlé a citlivé rekonstrukci, v osobním vlastnictví o dispozici 5+kk a výměře 147 m2 + balkón 3 m2 + sklep 5 m2. Byt se nachází v 2. nadzemním podlaží čerstvě rekonstruovaného cihlového domu s výtahem na pomezí Karlína a Prahy 1. Aktuálně je byt rozdělen na 3 menší jednotky, které jsou spojeny společnou předsíní. První jednotka je o dispozici 3+kk a výměře 62 m2 + balkon 2 m2, další jednotka je loftové 1+kk o výměře 32,2 m2 a poslední jednotka je loftové 1+kk o výměře 29 m2. Momentálně jsou všechny jednotky dlouhodobě pronajaty za tržní nájemné, nájemní smlouvy končí v létě 2025. Aktuální nájemné činí 705 tis. ročně, při obnově smluv lze očekávat navýšení o cca 40-50 tis. Alternativně lze uvažovat nad krátkodobým pronájmem ke kterému je byt také velmi dobře uzpůsoben, potenciální příjem zde odhaduji kolem 2 Mil. ročně. Stávající dispozici bytu je možné jednoduše upravit pro různé záměry. Byt je tedy ideální pro investora, velkou rodinu nebo pro ty, kteří touží po větším prostoru k bydlení.


Ve společném prostoru se nachází dvě samostatné místnosti, kotelna a technické zázemí s WC + úložným prostorem. O vytápění a ohřev vody se stará moderní, spolehlivý a velice ekonomický plynový kotel zn. Buderus, i díky tomu se celkové náklady na provoz bytu v průměru pohybují kolem 10 tis. korun měsíčně.
Standard bytu je na vysoké úrovni díky zdařilé rekonstrukci, ta zahrnovala kompletní renovaci dřevěných podlah a dveří. Nové jsou také veškeré rozvody: elektřina, voda, odpad. Instalovány byly porcelánové zásuvky a vypínače řady ABB Decento. Většina oken jsou nová a dobře izolují (ve vnitrobloku jsou původní dvojitá, po renovaci). Kuchyně i koupelny jsou také nové v decentním, ale zároveň moderním stylu. Každá kuchyňská linka je vybavena troubou, varnou deskou, lednicí a myčkou. Koupelny mají sprchové kouty.


Obrovskou předností nemovitosti je lokalita ve které se byt nachází. Kloubí se zde perfektní dopravní dostupnost společně s bohatou nabídkou podniků, kultury a služeb Pražského Karlína. Pouhé 3 minuty chůze je od domu vzdálena stanice metra B, zastávka tramvaje i autobsová stanice ''Florenc''. Karlínské náměstí je vzdáleno jen 3 minuty chůze a nabízí ty nejoblíbenější podniky jako jsou Pivovar Dva Kohouti, restaurace Lokál, Antonínovo Pekařství. V blízkém okolí pak naleznete různá významná místa jako je Forum Karlín, Kasárna Karlín, Ostrov Štvanice, park Vítkov, ale i tradiční kompletní občanskou vybavenost, tedy školy, školky, úřad, sportoviště, nákupní domy, atd. Parkování je možné přímo před domem na modré zóně pro rezidenty.

Pokud Vás byt zaujal, neváhejte mi napsat nebo zavolat a rád Vám jej úkážu na osobní prohlídce. Financování hypotečním úvěrem je možné a rád Vám jej pomůžu zařídit.

Parametry bytu

Cena
21 990 000 Kč /za nemovitost Spočítat hypotéku
Poznámka k ceně
Včetně provize a právního servisu.
Náklady na bydlení
10000
Aktualizováno
20. 10. 2025
Adresa
Prvního pluku, Praha, Karlín
Stavba
Cihlová
Stav objektu
Velmi dobrý
Patro
2.
Vlastnictví
Osobní
Užitná plocha
147 m2
Balkon
Sklep

Kontaktovat makléře

Máte zájem o tento byt?

Tímto, v souladu s nařízením Evropského parlamentu a Rady (EU) 2016/679, v platném znění, prohlašuji, že mi je alespoň 16 let a uděluji tak svůj souhlas se zpracováním zadaných údajů (jméno, telefon, e-mail, ip adresa) společnosti B3 Technology, s.r.o., IČ: 07330600, se sídlem Novostavby 126/23, 435 11 Lom (správce dat), za účelem předání dotazu z tohoto formuláře Vámi vybranému inzerentovi a zpětného kontaktování mé osoby. Osobní údaje bude správce zpracovávat manuálně i automaticky přímo prostřednictvím svých zaměstnanců. Informace předané tímto formulářem budou uloženy v databázi správce maximálně po dobu 10 let. Odvolání souhlasu s uložením a zpracováním poskytnutých dat lze e-mailem na info@bydlisnami.cz. V případě podezření na neoprávněné použití Vámi poskytnutých údajů máte právo předat podnět k šetření Úřadu pro ochranu osobních údajů. Více informací
Chystáte se prodat nemovitost?
Pomůžeme Vám!

Inzerát si prohlédlo 13 lidí

Prodejce

Vincent Vadas

Vincent Vadas

Hlídací pes

Chcete dostávat emailem podobné nabídky prodeje bytů 5+kk v Praze 8?

Top nabídky

Podobné nemovitosti