Pronájem rodinného domu, Olšany u Prostějova, 55 m2 (ID: 2449116)

Olšany u Prostějova

17 990 Kč /za měsíc Získejte výhodnou HYPOTÉKU
Doporučené firmy v Olšanech u Prostějova

Informace k domu

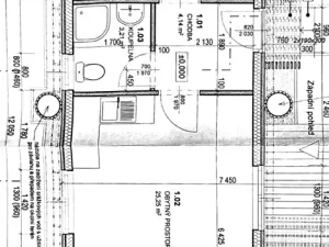
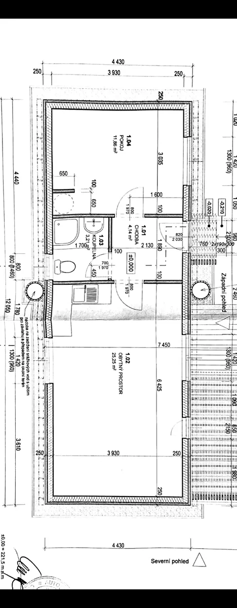
Rádi bychom Vám představili tento velmi pěkný, rodinný dům 2+kk k pronájmu, nacházející se v klidné části obce Olšany u Prostějova. Jedná se o samostatně stojící přízemní novostavbu typu dřevostavba, která nabízí dostatek soukromí a pohodlí. Dům disponuje dvěma pokoji a užitnou plochou 55 m², což je ideální pro menší rodiny či páry. K domu náleží také pozemek o rozloze 900 m²- udržovaná zahrada, která poskytuje dostatek prostoru pro relaxaci či zahradničení.

Domek je pronajímán částečně vybavený.

Pronájem tohoto domu je ideální volbou pro ty, kteří hledají klidné bydlení s dobrým dopravním spojením. V blízkosti objektu se nachází dálnice, silnice i autobusová zastávka, což usnadňuje cestování do okolních měst.

Majitel požaduje solidní nájemce, s předpokladem dlouhodobého pronájmu. Max dvě osoby, eventuelně s dítětem............., bude upřednostněn zájemce bez domácích mazlíčků.

Volný je ihned.

Pokud Vás dům zaujal, neváhejte nám napsat nebo zavolat a rádi Vám vše ukážeme osobně. Prohlídky jsou možné po předchozí tel. domluvě.

Parametry domu

Cena
17 990 Kč /za měsíc
Náklady na bydlení
3000
Aktualizováno
24. 10. 2025
Adresa
Olšany u Prostějova
Stavba
Dřevěná
Stav objektu
Novostavba
Druh objektu
Samostatný
Lokalita objektu
Klidná část obce
Užitná plocha
55 m2
Plocha pozemku
900 m2
Třída energetické náročnosti
C - Úsporná
Elektřina
230V
Odpad
Veřejná kanalizace
Komunikace
Asfaltová
Telekomunikace
Internet
Doprava
Dálnice, Silnice, Autobus
Voda
Vodovod
Zdroj topení
Přímotop
Zdroj teplé vody
Bojler - elektro
Parkování

Kontaktovat makléře

Realitní kancelář

Logo SRDCE REALIT

SRDCE REALIT

Vojáčkovo nám. č. 3, Prostějov

Chystáte se prodat nemovitost?
Pomůžeme Vám!

Máte zájem o tento dům?

Tímto, v souladu s nařízením Evropského parlamentu a Rady (EU) 2016/679, v platném znění, prohlašuji, že mi je alespoň 16 let a uděluji tak svůj souhlas se zpracováním zadaných údajů (jméno, telefon, e-mail, ip adresa) společnosti B3 Technology, s.r.o., IČ: 07330600, se sídlem Novostavby 126/23, 435 11 Lom (správce dat), za účelem předání dotazu z tohoto formuláře Vámi vybranému inzerentovi a zpětného kontaktování mé osoby. Osobní údaje bude správce zpracovávat manuálně i automaticky přímo prostřednictvím svých zaměstnanců. Informace předané tímto formulářem budou uloženy v databázi správce maximálně po dobu 10 let. Odvolání souhlasu s uložením a zpracováním poskytnutých dat lze e-mailem na info@bydlisnami.cz. V případě podezření na neoprávněné použití Vámi poskytnutých údajů máte právo předat podnět k šetření Úřadu pro ochranu osobních údajů. Více informací
Chystáte se prodat nemovitost?
Pomůžeme Vám!

Inzerát si prohlédlo 1 lidí

Prodejce

Eva Vorrethová

Eva Vorrethová

Hlídací pes

Chcete dostávat emailem podobné nabídky pronájmu rodinných domů v Olšanech u Prostějova?

Podobné nemovitosti