Prodej rodinného domu, Miroslav, Brněnská, 28 m2

Brněnská, Miroslav

1 890 000 Kč HYPOTÉKA od 8 447 Kč /za měsíc

(včetně provize RK)

Doporučené firmy v Miroslavi

Informace k domu

Rodinný dům k rekonstrukci v Miroslavi u Brna

Nabízím k prodeji rodinný dům v Miroslavi, který čeká na nového majitele s vizí a chutí vytvořit si vlastní domov.
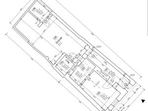
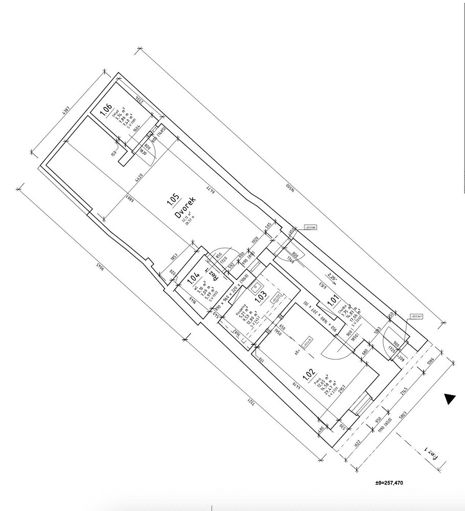
Součástí prodeje je architektonická studie, která rozšiřuje původní užitnou plochu z 28,71 m² na 88,40 m² a proměňuje objekt v moderní open-space rodinný dům se zahrádkou.

Projekt je navržen tak, že k realizaci rekonstrukce postačí pouze ohlášení stavby, bez nutnosti stavebního povolení. K dokončení stavební dokumentace zbývá doplnit stanoviska geologa, statika, hasičů a souhlas sousedů.
Odhadované náklady na rekonstrukci činí přibližně 1 800 000 Kč.

Dům je již napojen na elektřinu, vodovod i kanalizaci. V přiložené galerii naleznete vizualizace a půdorysy finální podoby domu po rekonstrukci.

Lokalita:
Miroslav leží zhruba 30 minut jízdy od Brna a nabízí veškerou občanskou vybavenost – školu, školku, obchody, restaurace i lékaře.
Výborné dopravní spojení vlakem i autobusem zajišťuje pohodlný dojezd do Brna, Znojma i okolních měst.
Klidné prostředí, blízkost vinic a dostatek zeleně dělají z Miroslavi ideální místo pro rodinné bydlení i rekreační dům.

Shrnutí nabídky:

- užitná plocha po rekonstrukci: 88,40 m²
- architektonická studie v ceně
- odhadované náklady: cca 1,8 mil. Kč
- napojeno na elektřinu, vodu, kanalizaci
- pouze ohlášení stavby, bez nutnosti stavebního povolení
- klidná a dobře dostupná lokalita

Máte zájem o více informací nebo osobní prohlídku?
Kontaktujte mě, rád vám vše představím osobně.

Parametry domu

Cena
1 890 000 Kč Spočítat hypotéku
Poznámka k ceně
včetně provize RK
Aktualizováno
31. 10. 2025
Adresa
Brněnská, Miroslav
ID
100450
Stavba
Smíšená
Stav objektu
Před rekonstrukcí
Druh objektu
Řadový
Užitná plocha
28 m2
Plocha pozemku
85 m2
Třída energetické náročnosti
G - Mimořádně nehospodárná

Kontaktovat makléře

Máte zájem o tento dům?

Tímto, v souladu s nařízením Evropského parlamentu a Rady (EU) 2016/679, v platném znění, prohlašuji, že mi je alespoň 16 let a uděluji tak svůj souhlas se zpracováním zadaných údajů (jméno, telefon, e-mail, ip adresa) společnosti B3 Technology, s.r.o., IČ: 07330600, se sídlem Novostavby 126/23, 435 11 Lom (správce dat), za účelem předání dotazu z tohoto formuláře Vámi vybranému inzerentovi a zpětného kontaktování mé osoby. Osobní údaje bude správce zpracovávat manuálně i automaticky přímo prostřednictvím svých zaměstnanců. Informace předané tímto formulářem budou uloženy v databázi správce maximálně po dobu 10 let. Odvolání souhlasu s uložením a zpracováním poskytnutých dat lze e-mailem na info@bydlisnami.cz. V případě podezření na neoprávněné použití Vámi poskytnutých údajů máte právo předat podnět k šetření Úřadu pro ochranu osobních údajů. Více informací
Chystáte se prodat nemovitost?
Pomůžeme Vám!

Inzerát si prohlédlo 1 lidí

Prodejce

Jiří Švec

Jiří Švec

Hlídací pes

Chcete dostávat emailem podobné nabídky prodeje rodinných domů v Miroslavi?

Podobné nemovitosti