Prodej bytu 3+kk, Chlumec nad Cidlinou, Komenského, 92 m2

Komenského, Chlumec nad Cidlinou

8 549 000 Kč /za nemovitost HYPOTÉKA od 38 209 Kč /za měsíc

(Cena družstevního podílu 2 137 250 Kč. Po nastěhování se hradí měsíční splátka bytu ve výši 32 335 Kč po dobu 30 let. Celková cena bytu: 8 549 000 Kč)

Doporučené firmy v Chlumci nad Cidlinou

Informace k bytu

Nabízíme k prodeji byt v novostavbě v projektu Rezidence Chlumec.
Bytový dům se nachází v klidné části Chlumce nad Cidlinou ul. Komenského.
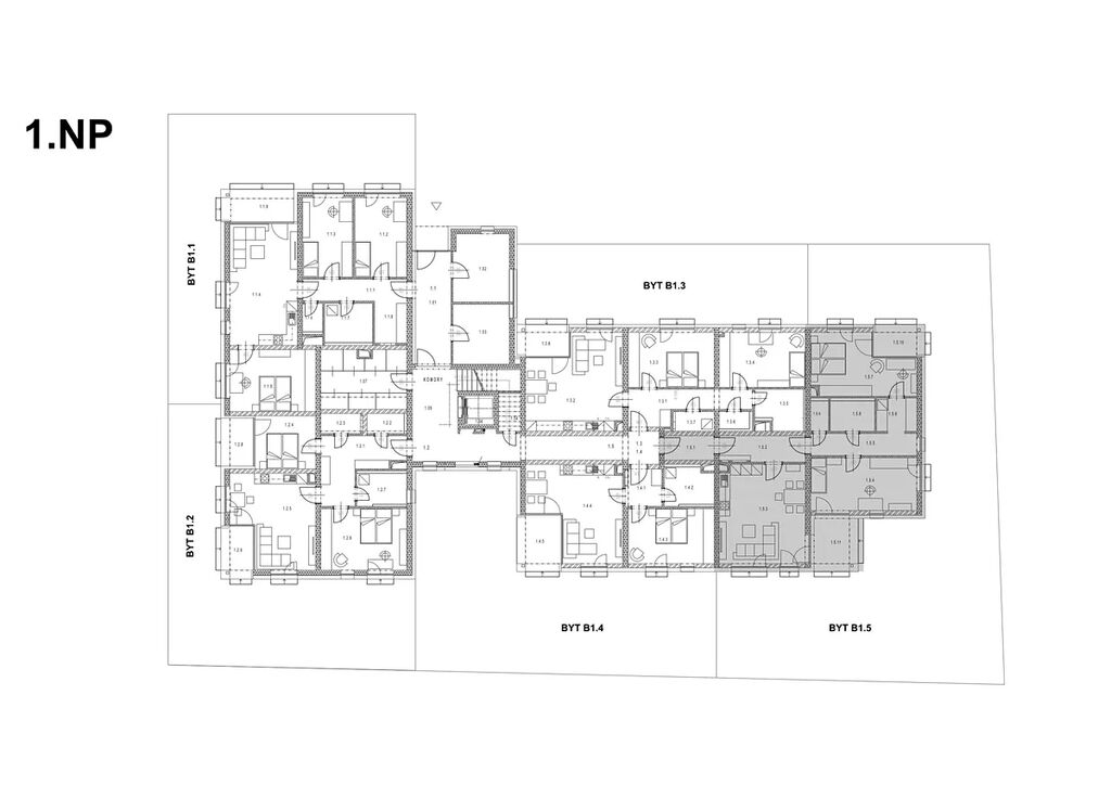
Nabízíme k prodeji byt č. 1.5 o velikosti 3+kk, 92,1 m2 + 2x lodžie o celkové velikosti 12,4 m2 a soukromou předzahrádkou o výměře 215,8 m2.
Jedná se o byt v prvním patře čtyř patrového bytového domu s výtahem.
Byt je vybaven vinylovou podlahou, dlažbou a obklady v koupelně a WC, obložkové interiérové dveře, bezpečnostní vstupní dveře, kompletní elektroinstalace, omítky.
Cena družstevního podílu 2 137 250 Kč.
Po nastěhování do bytu se hradí měsíční splátka bytu ve výši 32 335 Kč po dobu 30 let.
Celková cena bytu: 8 549 000 Kč.
Druhou možností je byt uhradit ve vyšší částce až do výše hodnoty bytu (v tomto případě 8 549 000 Kč) a po pěti letech je možné byt převést do osobního vlastnictví.
V případě složení výši částky než 25% hodnoty bytu se samozřejmě měsíční splátka sníží.
Možnost po 5 letech byt převést do osobního vlastnictví.
Předpokládaný termín stěhování leden 2026.
Tyto byty jsou i výborným investičním záměrem.
Vytápění a ohřev vody je v domě zajišťován tepelným čerpadle, což zajišťuje nízké provozní náklady.
V okolí veškerá občanská vybavenost, centrum města je v docházkové vzdálenosti, základní škola, mateřská škola, zámek, sportovní hřiště, vlakové a autobusové nádraží.
V případě zájmu, dotazů kontaktujte p. Marka Frka.

Parametry bytu

Cena
8 549 000 Kč /za nemovitost Spočítat hypotéku
Poznámka k ceně
Cena družstevního podílu 2 137 250 Kč. Po nastěhování se hradí měsíční splátka bytu ve výši 32 335 Kč po dobu 30 let. Celková cena bytu: 8 549 000 Kč
Aktualizováno
7. 11. 2025
Adresa
Komenského, Chlumec nad Cidlinou
ID
Chlumec 1.5
Stavba
Skeletová
Stav objektu
Novostavba
Patro
1. z 4
Vybaveno
Ne
Lokalita objektu
Klidná část obce
Vlastnictví
Družstevní
Užitná plocha
92 m2
Lodžie
Terasa
Výtah
Bezbarierový přístup
Převod do OV

Kontaktovat makléře

Máte zájem o tento byt?

Tímto, v souladu s nařízením Evropského parlamentu a Rady (EU) 2016/679, v platném znění, prohlašuji, že mi je alespoň 16 let a uděluji tak svůj souhlas se zpracováním zadaných údajů (jméno, telefon, e-mail, ip adresa) společnosti B3 Technology, s.r.o., IČ: 07330600, se sídlem Novostavby 126/23, 435 11 Lom (správce dat), za účelem předání dotazu z tohoto formuláře Vámi vybranému inzerentovi a zpětného kontaktování mé osoby. Osobní údaje bude správce zpracovávat manuálně i automaticky přímo prostřednictvím svých zaměstnanců. Informace předané tímto formulářem budou uloženy v databázi správce maximálně po dobu 10 let. Odvolání souhlasu s uložením a zpracováním poskytnutých dat lze e-mailem na info@bydlisnami.cz. V případě podezření na neoprávněné použití Vámi poskytnutých údajů máte právo předat podnět k šetření Úřadu pro ochranu osobních údajů. Více informací
Chystáte se prodat nemovitost?
Pomůžeme Vám!

Inzerát si prohlédlo 1 lidí

Prodejce

Marek Frk

Marek Frk

Hlídací pes

Chcete dostávat emailem podobné nabídky prodeje bytů 3+kk v Chlumci nad Cidlinou?

Podobné nemovitosti