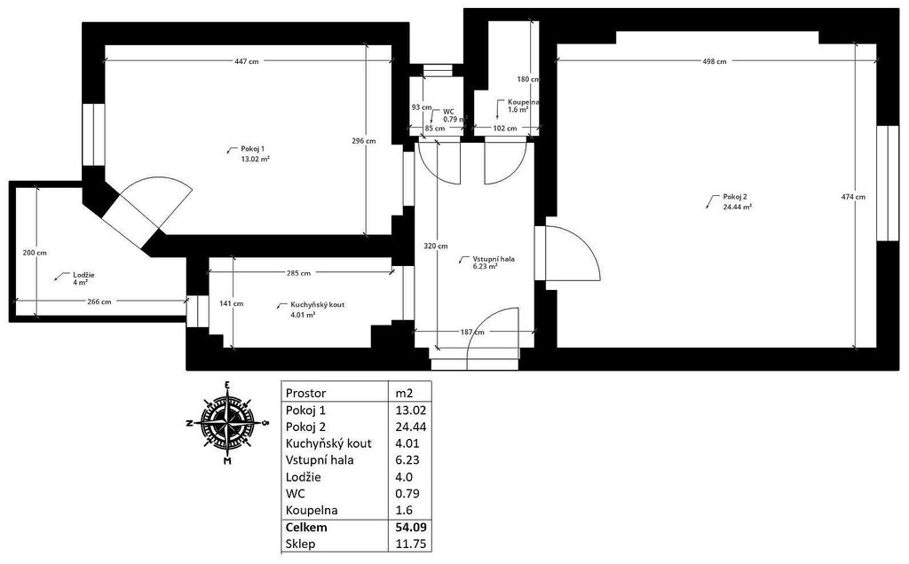
Prodej bytu 2+1, Pardubice - Zelené Předměstí, K Višňovce, 75 m2

K Višňovce, Zelené Předměstí

Rezervováno
4 590 000 Kč /za nemovitost HYPOTÉKA od 20 515 Kč /za měsíc

(cena včetně služeb RK)

Doporučené firmy v Pardubicích

Informace k bytu

Rezervováno.

Dobrý den, právě pro Vás připravujeme k prodeji byt o dispozici 2+1 a celkové výměře podle dokumentace 74,7 m2, který se nachází v 1.NP zděného prvorepublikového bytového domu v ulici K Višňovce v Pardubicích. Plnohodnotná nabídka bude zveřejněna do 14 dnů.

Předmětný byt se nachází v 1.NP (přízemí) zděného bytového domu o šesti bytech z roku cca 1933. Orientace: sever, jih. V minulosti prošel rekonstrukcí, která je již z určitého pohledu morálně zastaralá. Nicméně byt je plně funkční. Vytápění a ohřev vody je řešeno prostřednictvím vlastního ústředního kombinovaného plynového kotle. Světlá výška obytných místností činí 3 m.

Výše příspěvku do fondu oprav činí cca 1.450 Kč. Náklady uživatele bytu činily: 1.220 Kč plyn, 600 Kč elektřina, 550 Kč vodné a stočné. Bytový dům je ve slušném stavu s údržbou a obměnou potřebných technických zařízení a prvků.

Předmětný byt je svou dispozicí vhodný k pronájmu, protože obsahuje dva samostatné pokoje, kuchyňku, samostatné WC a koupelnu. Posledních 10 let byl v pronájmu, a to vždy po 5 letém období délky nájmu.

Ulice K Višňovce má kouzlo jednosměrné ulice lemované prvorepublikovými domy. Kdo má rád atmosféru starších domů s vyššími stropy, ten si přijde na své.

Děkuji, Václav Růžička, realitní specialista.

Prodávající si vyhrazuje právo na výběr kupujícího dle vlastní úvahy (způsob úhrady a výše kupní ceny, serióznost jednání apod.).

Parametry bytu

Stav
Rezervováno
Cena
4 590 000 Kč /za nemovitost Spočítat hypotéku
Poznámka k ceně
cena včetně služeb RK
Aktualizováno
13. 11. 2025
Adresa
K Višňovce, Zelené Předměstí
ID
XA-467
Stavba
Cihlová
Stav objektu
Dobrý
Patro
1. z 3
Typ objektu
Patrový
Vlastnictví
Osobní
Užitná plocha
75 m2
Podlahová plocha
75 m2
Plyn
Plynovod
Odpad
Veřejná kanalizace
Topení
Ústřední plynové
Komunikace
Asfaltová
Voda
Vodovod
Topné těleso
Radiátory
Zdroj topení
Plynový kotel
Zdroj teplé vody
Plynový kotel
Lodžie
Bezbarierový přístup

Kontaktovat makléře

Realitní kancelář

RV Reality

Bratranců Veverkových 355, Pardubice

Chystáte se prodat nemovitost?
Pomůžeme Vám!

Máte zájem o tento byt?

Tímto, v souladu s nařízením Evropského parlamentu a Rady (EU) 2016/679, v platném znění, prohlašuji, že mi je alespoň 16 let a uděluji tak svůj souhlas se zpracováním zadaných údajů (jméno, telefon, e-mail, ip adresa) společnosti B3 Technology, s.r.o., IČ: 07330600, se sídlem Novostavby 126/23, 435 11 Lom (správce dat), za účelem předání dotazu z tohoto formuláře Vámi vybranému inzerentovi a zpětného kontaktování mé osoby. Osobní údaje bude správce zpracovávat manuálně i automaticky přímo prostřednictvím svých zaměstnanců. Informace předané tímto formulářem budou uloženy v databázi správce maximálně po dobu 10 let. Odvolání souhlasu s uložením a zpracováním poskytnutých dat lze e-mailem na info@bydlisnami.cz. V případě podezření na neoprávněné použití Vámi poskytnutých údajů máte právo předat podnět k šetření Úřadu pro ochranu osobních údajů. Více informací
Chystáte se prodat nemovitost?
Pomůžeme Vám!

Inzerát si prohlédlo 0 lidí

Prodejce

Václav Růžička

Václav Růžička

Hlídací pes

Chcete dostávat emailem podobné nabídky prodeje bytů 2+1 v Pardubicích?

Podobné nemovitosti