Prodej bytu 2+kk, Pardubice - Zelené Předměstí, Arnošta z Pardubic, 44 m2

Arnošta z Pardubic, Pardubice, Zelené Předměstí

4 680 000 Kč /za nemovitost HYPOTÉKA od 20 917 Kč /za měsíc
Doporučené firmy v Pardubicích

Informace k bytu

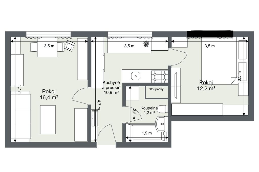
Na základě výhradního zastoupení nabízím k prodeji luxusní a do posledního detailu laděný byt po kompletní a velmi pečlivé rekonstrukci, který díky své promyšlené dispozici 2kk (2+1) poskytuje nadstandardní pohodlí i praktičnost. Oba pokoje jsou samostatné a neprůchozí díky čemuž byt působí prostorněji a variabilněji. Kuchyně je elegantně integrována mezi pokoji a jen podtrhuje celkové uspořádání bytu, kde je opravdu využitý každý centimetr.
Družstevní byt o celkové výměře 44 m² se nachází ve druhém patře domu s výtahem na adrese Arnošta z Pardubic 2599, v bezprostřední blízkosti samotného centra Pardubic. Lokalita je výjimečná svou dostupností, veškerými službami v okolí a celkovou městskou atmosférou.
Další velkou výhodou je i investiční potenciál. Byt je v současné době pronajatý velmi solidními a spolehlivými nájemci za tržní měsíční nájemné což novému majiteli může poskytnout okamžitý a bezstarostný výnos.
Tato nemovitost představuje jedinečnou příležitost ke koupi krásného, precizně zrekonstruovaného bytu v oblíbené části Pardubic, který upoutá svým stylem, praktičností i výbornou návratností investice.

Parametry bytu

Cena
4 680 000 Kč /za nemovitost Spočítat hypotéku
Aktualizováno
14. 11. 2025
Adresa
Arnošta z Pardubic, Pardubice, Zelené Předměstí
ID
2025-11-14
Stavba
Cihlová
Stav objektu
Velmi dobrý
Patro
2.
Typ objektu
Patrový
Lokalita objektu
Centrum obce
Vlastnictví
Družstevní
Užitná plocha
44 m2
Třída energetické náročnosti
C - Úsporná
Sklep
Výtah
Bezbarierový přístup
Převod do OV

Kontaktovat makléře

Máte zájem o tento byt?

Tímto, v souladu s nařízením Evropského parlamentu a Rady (EU) 2016/679, v platném znění, prohlašuji, že mi je alespoň 16 let a uděluji tak svůj souhlas se zpracováním zadaných údajů (jméno, telefon, e-mail, ip adresa) společnosti B3 Technology, s.r.o., IČ: 07330600, se sídlem Novostavby 126/23, 435 11 Lom (správce dat), za účelem předání dotazu z tohoto formuláře Vámi vybranému inzerentovi a zpětného kontaktování mé osoby. Osobní údaje bude správce zpracovávat manuálně i automaticky přímo prostřednictvím svých zaměstnanců. Informace předané tímto formulářem budou uloženy v databázi správce maximálně po dobu 10 let. Odvolání souhlasu s uložením a zpracováním poskytnutých dat lze e-mailem na info@bydlisnami.cz. V případě podezření na neoprávněné použití Vámi poskytnutých údajů máte právo předat podnět k šetření Úřadu pro ochranu osobních údajů. Více informací
Chystáte se prodat nemovitost?
Pomůžeme Vám!

Inzerát si prohlédlo 0 lidí

Prodejce

Lucie Kopecká

Lucie Kopecká

Hlídací pes

Chcete dostávat emailem podobné nabídky prodeje bytů 2+kk v Pardubicích?

Podobné nemovitosti