Pronájem bytu 3+kk, Kralupy nad Vltavou, Palackého nám., 75 m2 (ID: 2476367)

Palackého nám., Kralupy nad Vltavou

14 700 Kč /za měsíc Získejte výhodnou HYPOTÉKU

(+ poplatky, vratná kauce 29.400 -Kč a provize rk)

Doporučené firmy v Kralupech nad Vltavou

Informace k bytu

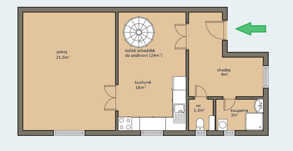
Mezonetový byt v cihlovém domě 3+kk, 75m² v centru Kralup nad Vlt.

Nabízíme k pronájmu prostorný a světlý mezonetový byt o dispozici 3+kk a celkové výměře 75 m², který se nachází v 1. patře zděného bytového domu v samém centru města Kralupy nad Vltavou.

Byt má velmi příjemné uspořádání. Ve spodním patře se nachází velká vstupní chodba s okny do ulice, koupelna se sprchovým koutem, samostatná toaleta a kuchyň s kompletně novou kuchyňskou linkou včetně spotřebičů, vyměněnou v létě 2024. Z kuchyně je přímý vstup do rozlehlého obývacího pokoje nebo na točité schody vedoucí do podkroví. V patře se nachází prostorná ložnice, která díky svému umístění poskytuje dostatek soukromí.

Podlahové krytiny tvoří PVC a dlažba, vytápění je zajištěno vlastním elektrokotlem. Byt se nachází na atraktivním místě v centru města, v blízkosti je kompletní občanská vybavenost – obchody, školy, školky, restaurace i zastávky autobusů a vlakové nádraží. Kralupy nad Vltavou mají výbornou dopravní dostupnost, do Prahy se dostanete přibližně za 20 minut.

Měsíční nájemné činí 14.700 Kč. Poplatky + elektřina bude přepsána na nájemce. Vratná kauce činí 29.400 Kč, provize RK. Byt je volný ihned.

Pro více informací nebo sjednání prohlídky kontaktujte makléře.

Parametry bytu

Cena
14 700 Kč /za měsíc
Poznámka k ceně
+ poplatky, vratná kauce 29.400 -Kč a provize rk
Aktualizováno
14. 11. 2025
Adresa
Palackého nám., Kralupy nad Vltavou
ID
00406
Stavba
Cihlová
Stav objektu
Po rekonstrukci
Vybaveno
Částečně
Lokalita objektu
Centrum obce
Vlastnictví
Osobní
Užitná plocha
75 m2
Třída energetické náročnosti
G - Mimořádně nehospodárná

Kontaktovat makléře

Máte zájem o tento byt?

Tímto, v souladu s nařízením Evropského parlamentu a Rady (EU) 2016/679, v platném znění, prohlašuji, že mi je alespoň 16 let a uděluji tak svůj souhlas se zpracováním zadaných údajů (jméno, telefon, e-mail, ip adresa) společnosti B3 Technology, s.r.o., IČ: 07330600, se sídlem Novostavby 126/23, 435 11 Lom (správce dat), za účelem předání dotazu z tohoto formuláře Vámi vybranému inzerentovi a zpětného kontaktování mé osoby. Osobní údaje bude správce zpracovávat manuálně i automaticky přímo prostřednictvím svých zaměstnanců. Informace předané tímto formulářem budou uloženy v databázi správce maximálně po dobu 10 let. Odvolání souhlasu s uložením a zpracováním poskytnutých dat lze e-mailem na info@bydlisnami.cz. V případě podezření na neoprávněné použití Vámi poskytnutých údajů máte právo předat podnět k šetření Úřadu pro ochranu osobních údajů. Více informací
Chystáte se prodat nemovitost?
Pomůžeme Vám!

Inzerát si prohlédlo 1 lidí

Prodejce

Lenka Kaplanová (Richterová)

Lenka Kaplanová (Richterová)

Hlídací pes

Chcete dostávat emailem podobné nabídky pronájmu bytů 3+kk v Kralupech nad Vltavou?

Podobné nemovitosti