Pronájem bytu 2+1, Praha - Žižkov, Na hlídce, 77 m2

Na hlídce, Praha, Žižkov

23 900 Kč /za měsíc Získejte výhodnou HYPOTÉKU
Doporučené firmy v Praze 3

Stěhovací služby

Výkup a prodej starého nábytku

Informace k bytu

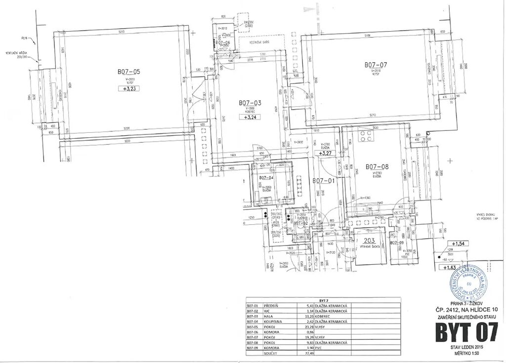
Nabízíme vám k pronájmu velmi pěkný světlý a prostorný byt o dispozici 2+1, o celkové
výměře 77m2. Byt prošel cca před pěti lety kompletní, moderní a velmi vkusnou rekonstrukcí, vše ve výborném stavu.

Dva prostorné neprůchozí pokoje s perfektně repasovanými a stylovými parketami, velká hala, kuchyně s moderní linkou s el. varnou deskou, s vestavěnu myčkou a pračkou, koupena se sprchovým koutem, samostatné WC. Komora v bytě, sklepní kóje v 1.PP.
Celý dům po kvalitně provedené rekonstrukci.

Výborná dostupnost do
centra, stanice tram a bus 2 min pěšky.
Velmi žádaná adresa.
Doporučujeme prohlídku.

Nájem 23 900,-Kč + zálohy na služby 3 000,-Kč/měsíc/2os + převod elektřiny na nájemce.
Vratná kauce 30 000,-Kč.

Parametry bytu

Cena
23 900 Kč /za měsíc
Náklady na bydlení
Záloha na služby 3000,-Kč/měsíc/2os + převod elektřiny na nájemce.
Aktualizováno
29. 11. 2025
Adresa
Na hlídce, Praha, Žižkov
ID
0057
Stavba
Cihlová
Stav objektu
Po rekonstrukci
Patro
2.
Vlastnictví
Osobní
Užitná plocha
77 m2
Třída energetické náročnosti
G - Mimořádně nehospodárná
Elektřina
230V
Odpad
Veřejná kanalizace
Komunikace
Dlážděná
Telekomunikace
Telefon, Internet
Doprava
Vlak, Dálnice, MHD, Autobus
Voda
Vodovod
Topné těleso
Radiátory
Zdroj topení
Ústřední dálkové
Zdroj teplé vody
Centrální dálkový ohřev
Sklep
Výtah
Bezbarierový přístup

Kontaktovat makléře

Máte zájem o tento byt?

Tímto, v souladu s nařízením Evropského parlamentu a Rady (EU) 2016/679, v platném znění, prohlašuji, že mi je alespoň 16 let a uděluji tak svůj souhlas se zpracováním zadaných údajů (jméno, telefon, e-mail, ip adresa) společnosti B3 Technology, s.r.o., IČ: 07330600, se sídlem Novostavby 126/23, 435 11 Lom (správce dat), za účelem předání dotazu z tohoto formuláře Vámi vybranému inzerentovi a zpětného kontaktování mé osoby. Osobní údaje bude správce zpracovávat manuálně i automaticky přímo prostřednictvím svých zaměstnanců. Informace předané tímto formulářem budou uloženy v databázi správce maximálně po dobu 10 let. Odvolání souhlasu s uložením a zpracováním poskytnutých dat lze e-mailem na info@bydlisnami.cz. V případě podezření na neoprávněné použití Vámi poskytnutých údajů máte právo předat podnět k šetření Úřadu pro ochranu osobních údajů. Více informací
Chystáte se prodat nemovitost?
Pomůžeme Vám!

Inzerát si prohlédlo 2 lidí

Prodejce

Miloš Snak

Miloš Snak

Hlídací pes

Chcete dostávat emailem podobné nabídky pronájmu bytů 2+1 v Praze 3?

Podobné nemovitosti