Pronájem bytu 2+kk, Praha - Chodov, Hráského, 47 m2

Hráského, Praha, Chodov

20 000 Kč /za měsíc Získejte výhodnou HYPOTÉKU

(Poplatky za domovní služby: 4750 Kč + 500 Kč za každou další osobu / měs, + provize RK)

Doporučené firmy v Praze 4

Stěhovací služby

Výkup a prodej starého nábytku

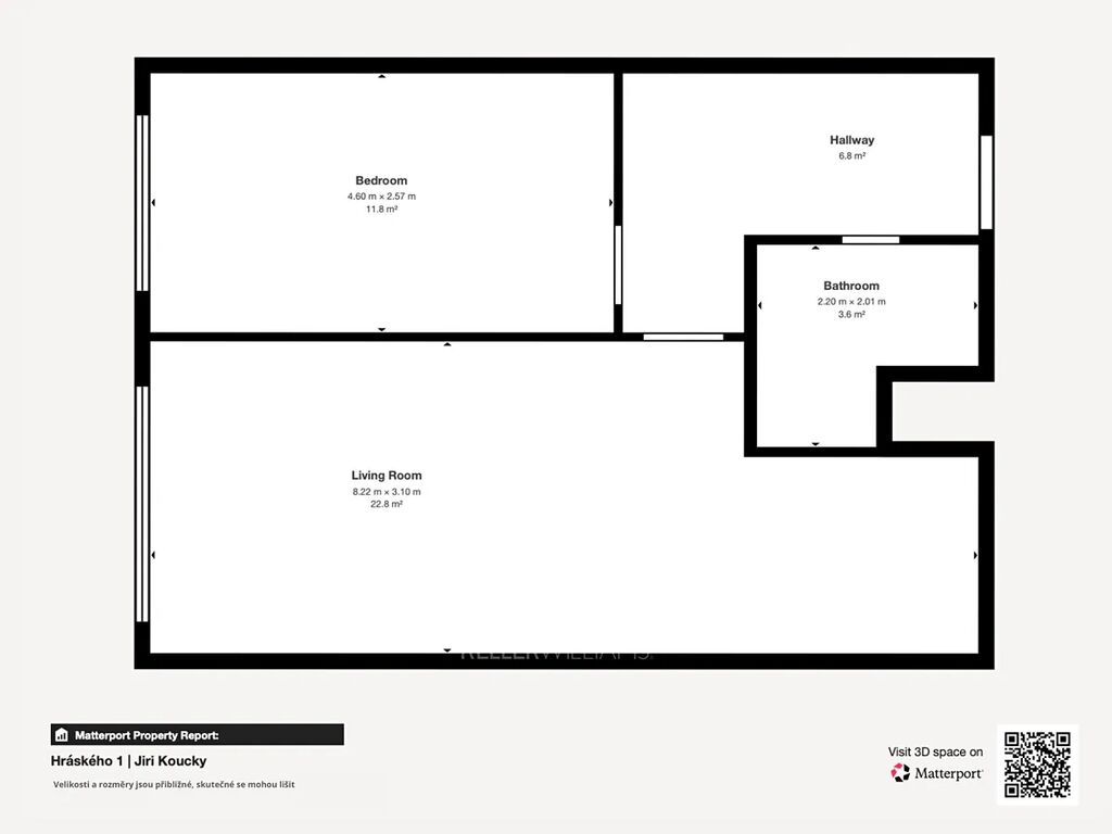
Informace k bytu

Nabízíme k pronájmu světlý a velmi příjemný byt 2+kk o výměře 47 m², který právě prošel kompletní rekonstrukcí.
V bytě po rekonstrukci ještě nikdo nebydlel - budete první, kdo se nastěhuje.

Byt se nachází v 5. podlaží (4. patro) udržovaného panelového domu s výtahem

Dispozice

obývací pokoj s kuchyňským koutem
samostatná ložnice
prostorná předsíň s vestavěnou skříní
koupelna se sprchovým koutem společně s WC
sklepní kóje (cca 1 m²) v suterénu domu

Byt je nevybavený a připravený k okamžitému nastěhování.

Vybavení a technické informace

nová kuchyňská linka se spotřebiči: trouba, varná deska, myčka, mikrovlnná trouba
v koupelně vrchem plněná pračka
nové vinylové podlahy
nové interiérové dveře, osvětlení, zásuvky a vypínače
moderní koupelna s velkoformátovým obkladem a sprchovým koutem
vytápění: centrální (nájemník hradí zálohy, roční vyúčtování)
elektřina: zůstává napsaná na majiteli (nájemník hradí zálohy, roční vyúčtování)
Zálohy na domovní služby: 4750 Kč + 500 Kč za každou další osobu

K nastěhování

Ihned

Majitelé vlastní více bytů → stabilita pro dlouhodobý pronájem.

Lokalita – 3 minuty od metra a OC Chodov

Lokalita nabízí vše, co člověk potřebuje pro pohodlné městské bydlení:
3–5 minut pěšky na metro C – Chodov
OC Westfield Chodov – obchody, restaurace, hypermarket, fitness, služby
výborné spojení MHD i autem (rychlý nájezd na D1)
v okolí dostatek zeleně, parků a sportovišť
kompletní občanská vybavenost v pěší dostupnosti

Jedná se o skvělou volbu pro jednotlivce nebo pár, kteří chtějí bydlet v klidné části Prahy 4 s perfektní dostupností a vším podstatným na dosah.

Jiří Koucký, Realitní makléř

Všechny uvedené informace mají pouze orientační charakter a mohou se změnit. Tento inzerát není návrhem na uzavření nájemní smlouvy dle § 1732 občanského zákoníku. Uváděné výměry jsou přibližné. Pronajímatel si vyhrazuje právo upravit podmínky nebo upřednostnit vybraného zájemce.

Parametry bytu

Cena
20 000 Kč /za měsíc
Poznámka k ceně
Poplatky za domovní služby: 4750 Kč + 500 Kč za každou další osobu / měs, + provize RK
Aktualizováno
2. 12. 2025
Adresa
Hráského, Praha, Chodov
ID
28835
Stavba
Panelová
Stav objektu
Po rekonstrukci
Patro
5.
Vybaveno
Ne
Vlastnictví
Osobní
Užitná plocha
47 m2
Třída energetické náročnosti
G - Mimořádně nehospodárná
Odpad
Veřejná kanalizace
Voda
Vodovod
Topné těleso
Radiátory
Zdroj topení
Ústřední dálkové
Zdroj teplé vody
Centrální dálkový ohřev
Sklep
Výtah
Bezbarierový přístup

Kontaktovat makléře

Máte zájem o tento byt?

Tímto, v souladu s nařízením Evropského parlamentu a Rady (EU) 2016/679, v platném znění, prohlašuji, že mi je alespoň 16 let a uděluji tak svůj souhlas se zpracováním zadaných údajů (jméno, telefon, e-mail, ip adresa) společnosti B3 Technology, s.r.o., IČ: 07330600, se sídlem Novostavby 126/23, 435 11 Lom (správce dat), za účelem předání dotazu z tohoto formuláře Vámi vybranému inzerentovi a zpětného kontaktování mé osoby. Osobní údaje bude správce zpracovávat manuálně i automaticky přímo prostřednictvím svých zaměstnanců. Informace předané tímto formulářem budou uloženy v databázi správce maximálně po dobu 10 let. Odvolání souhlasu s uložením a zpracováním poskytnutých dat lze e-mailem na info@bydlisnami.cz. V případě podezření na neoprávněné použití Vámi poskytnutých údajů máte právo předat podnět k šetření Úřadu pro ochranu osobních údajů. Více informací
Chystáte se prodat nemovitost?
Pomůžeme Vám!

Inzerát si prohlédlo 2 lidí

Prodejce

Jiří Koucký

Jiří Koucký

Hlídací pes

Chcete dostávat emailem podobné nabídky pronájmu bytů 2+kk v Praze 4?

Podobné nemovitosti