Prodej bytu 2+kk, Horní Blatná, náměstí Sv. Vavřince, 60 m2

náměstí Sv. Vavřince, Horní Blatná

5 175 000 Kč /za nemovitost HYPOTÉKA od 23 129 Kč /za měsíc
Doporučené firmy v Horní Blatné

Informace k bytu

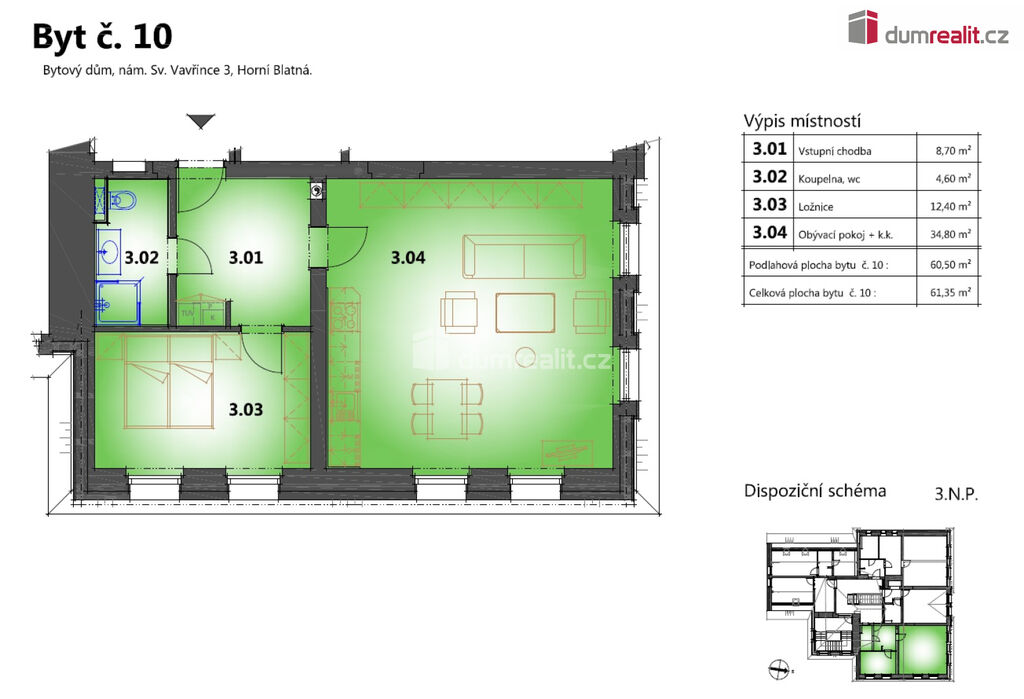
Dumrealit.cz Vám zprostředkuje prodej apartmánů na náměstí Sv. Vavřince v Horní Blatné, které se nachází v blízkosti několika lyžařských areálů jako je Plešivec, Potůčky nebo Klínovec. Apartmán číslo 10. se nachází v druhém patře, je o velikosti 60,5 m² s výhledem na náměstí a kostel Sv.Vavřince. Dispozice bytu 2+KK. Všechny apartmány jsou vybaveny sanitární keramikou v koupelnách, sprchovým koutem Walk-in, podlahovou krytinou a to v kombinaci velkoformátové dlažby a plovoucí podlahy v dekoru dřeva, obložkami, interiérovými a vstupními dveřmi. Nad rámec uvedené ceny je u tohoto apartmánu kuchyňská linka s jídelním stolem a zařízení obývacího pokoje. Součástí jsou také nádherné společné prostory a to včetně sklepního prostoru s možností posezení. Vytápění apartmánů je elektrické s dálkovým ovládáním s připojením na Wi-Fi. V apartmánovém domě se nachází 12 jednotek od 1+KK až po 3+KK různých podlahových výměr. Ke každému apartmánu patří jedno soukromé parkovací místo hned u domu a jedna sklepní kóje, vše je již započítáno v uvedené ceně. Několik apartmánů je již prodáno. Izolant obvodových stěn 16-18cm polystyrenové dílce a 28cm minerální vlna v podkrovní části domu. Nemovitost se nachází přímo na náměstí s výhledem na hory a kostel Sv. Vavřince. Koupě apartmánu je ideální také jako investice, kdy jsou Krušné hory celoročně navštěvovány turisty a Horní Blatná patří svým umístěním mezi nejvíce vyhledávané. V blízkosti apartmánu se nachází Blatenský vrch, Vlčí jámy a mnoho turistických a cyklo tras. Nemovitost s možností odpočtu DPH z uvedené kupní ceny. Doporučuji nezávaznou prohlídku objektu s možností vybrat si právě ten VÁŠ apartmán. Ev. číslo: 651559.

Parametry bytu

Cena
5 175 000 Kč /za nemovitost Spočítat hypotéku
Aktualizováno
18. 9. 2025
Adresa
náměstí Sv. Vavřince, Horní Blatná
ID
652173
Stavba
Cihlová
Stav objektu
Velmi dobrý
Patro
3. z 4
Vlastnictví
Osobní
Užitná plocha
60 m2
Podlahová plocha
60 m2
Třída energetické náročnosti
F - Velmi nehospodárná
Topení
Ústřední elektrické
Sklep
Parkování

Kontaktovat makléře

Máte zájem o tento byt?

Tímto, v souladu s nařízením Evropského parlamentu a Rady (EU) 2016/679, v platném znění, prohlašuji, že mi je alespoň 16 let a uděluji tak svůj souhlas se zpracováním zadaných údajů (jméno, telefon, e-mail, ip adresa) společnosti B3 Technology, s.r.o., IČ: 07330600, se sídlem Novostavby 126/23, 435 11 Lom (správce dat), za účelem předání dotazu z tohoto formuláře Vámi vybranému inzerentovi a zpětného kontaktování mé osoby. Osobní údaje bude správce zpracovávat manuálně i automaticky přímo prostřednictvím svých zaměstnanců. Informace předané tímto formulářem budou uloženy v databázi správce maximálně po dobu 10 let. Odvolání souhlasu s uložením a zpracováním poskytnutých dat lze e-mailem na info@bydlisnami.cz. V případě podezření na neoprávněné použití Vámi poskytnutých údajů máte právo předat podnět k šetření Úřadu pro ochranu osobních údajů. Více informací
Chystáte se prodat nemovitost?
Pomůžeme Vám!

Inzerát si prohlédlo 12 lidí

Prodejce

Martina Filipová

Martina Filipová

Hlídací pes

Chcete dostávat emailem podobné nabídky prodeje bytů 2+kk v Horní Blatné?

Podobné nemovitosti