Školní, České Budějovice
Výkup a prodej starého nábytku
REALDOMUS Vám ve výhradním zastoupení majitele zprostředkuje prodej administrativně obchodní budovy v obchodní zóně v ulici Školní v Českých Budějovicích.
Budova je kompletně zrekonstruována a připravena pro zájemce, který si pouze vybere finální úpravu povrchů užitných ploch, jenž budou provedeny na míru dle jeho potřeb a požadavků.
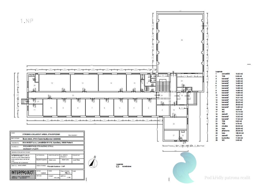
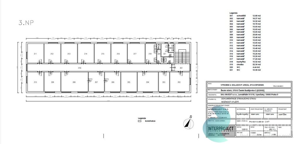
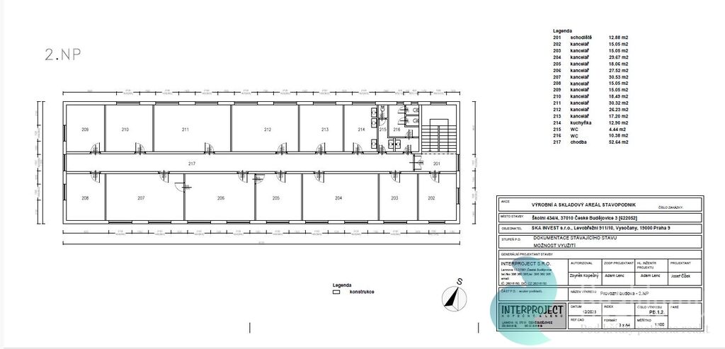
Předmět prodeje je kompletní tří podlažní administrativní budova, která se z 37 kanceláří, archivu, sociálního zázemí a obchodní  prostory o výměře 169 m2.
Zájmové budova se nachází v uzavřeném areálu, který je přístupný (24/7) elektronicky ovládanou vjezdovou bránou.
Součástí předmětu prodeje je pozemek před budovou a také ve vnitrobloku o celkové výměře cca. 1.850 m2, které nabízí parkovací kapacity pro osobní i nákladní vozový park.
Bližší technické informace a podmínky transakce Vám poskytne REALDOMUS.
 
                                        Radniční 133/1, České Budějovice
Máte zájem o tuto nemovistost?
Inzerát si prohlédlo 4 lidí
 
                                Mgr. Petr Wölfl
Chcete dostávat emailem podobné nabídky prodeje kanceláří v Českých Budějovicích?