Prodej bytu 4+kk, Praha, Vajdova, 72 m2 (ID: 2389466)

Vajdova, Praha 10

8 998 000 Kč /za nemovitost HYPOTÉKA od 40 216 Kč /za měsíc

(Včetně provize RK a právních služeb)

Doporučené firmy v Praze 10

Stěhovací služby

Výkup a prodej starého nábytku

Informace k bytu

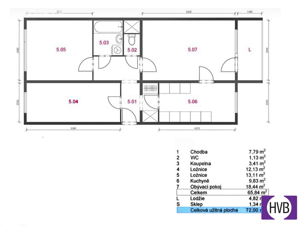
Nabízíme k prodeji světlý prostorný byt po kompletní rozsáhlé rekonstrukci včetně elektřiny o dispozici 4+kk s lodžií o celkové výměře cca 72m2, nacházející se na adrese ul. Vajdova Praha - Hostivař. Tato nemovitost, situovaná v 9. patře panelové budovy, nabízí pěkný výhled na okolí. Dispozici tvoří vstupní chodba, obývací pokoj s plně vybaveným kuchyňským koutem, tři obytné místnosti, koupelna, oddělené místo pro pračku a samostatné WC. Bydlení je navrženo s ohledem na moderní životní styl, vybaveno kvalitními materiály a promyšlenými detaily. Součástí bytu je také prostorná lodžie cca 6m2. Budova prošla revitalizací. V blízkosti nemovitosti se nachází veškerá občanská vybavenost, včetně obchodů, restaurací a volnočasových aktivit, což činí tuto lokalitu velmi atraktivní pro všechny, kteří hledají pohodlné rodinné bydlení. Doprava do centra města je zajištěna prostřednictvím městské hromadné dopravy, v pěší vzdálenosti zastávka autobusů s přímým spojem na metro. V případě zájmu o prohlídku nás neváhejte kontaktovat i přes víkend.

Parametry bytu

Cena
8 998 000 Kč /za nemovitost Spočítat hypotéku
Poznámka k ceně
Včetně provize RK a právních služeb
Aktualizováno
8. 9. 2025
Adresa
Vajdova, Praha 10
ID
N2516724
Stavba
Panelová
Stav objektu
Velmi dobrý
Patro
9. z 13
Vybaveno
Ne
Vlastnictví
Osobní
Užitná plocha
72 m2
Třída energetické náročnosti
C - Úsporná
Elektřina
230V
Odpad
Veřejná kanalizace
Komunikace
Asfaltová
Telekomunikace
Internet
Doprava
Silnice, MHD, Autobus
Voda
Vodovod
Sklep
Lodžie
Výtah

Kontaktovat makléře

Máte zájem o tento byt?

Tímto, v souladu s nařízením Evropského parlamentu a Rady (EU) 2016/679, v platném znění, prohlašuji, že mi je alespoň 16 let a uděluji tak svůj souhlas se zpracováním zadaných údajů (jméno, telefon, e-mail, ip adresa) společnosti B3 Technology, s.r.o., IČ: 07330600, se sídlem Novostavby 126/23, 435 11 Lom (správce dat), za účelem předání dotazu z tohoto formuláře Vámi vybranému inzerentovi a zpětného kontaktování mé osoby. Osobní údaje bude správce zpracovávat manuálně i automaticky přímo prostřednictvím svých zaměstnanců. Informace předané tímto formulářem budou uloženy v databázi správce maximálně po dobu 10 let. Odvolání souhlasu s uložením a zpracováním poskytnutých dat lze e-mailem na info@bydlisnami.cz. V případě podezření na neoprávněné použití Vámi poskytnutých údajů máte právo předat podnět k šetření Úřadu pro ochranu osobních údajů. Více informací
Chystáte se prodat nemovitost?
Pomůžeme Vám!

Inzerát si prohlédlo 2 lidí

Prodejce

Dimitri Naumov

Dimitri Naumov

Hlídací pes

Chcete dostávat emailem podobné nabídky prodeje bytů 4+kk v Praze 10?

Podobné nemovitosti