Osvětimany
K prodeji nabízíme útulnou chatu v oblíbené rekreační oblasti Osvětimany, obklopené nádhernou přírodou a lesy. Součástí nabídky je také stavební pozemek o výměře 2 121 m², který lze přikoupit za cenu 1,5 mil. Kč. V případě více zájemců bude upřednostněn ten, kdo zakoupí chatu i stavební pozemek společně.
Chata je ve velmi dobrém technickém stavu, částečně zateplená a připravená k okamžitému užívání bez nutnosti dalších investic. Nachází se na rozlehlém pozemku, který poskytuje dostatek soukromí i prostoru pro relaxaci, rodinné chvíle nebo zahradničení. Velkou výhodou je napojení na obecní vodovod
Interiér je laděný do příjemného dřevěného stylu a nabízí útulný obývací pokoj s krbem, plně vybavenou kuchyni, další dva pokoje a koupelnu se sprchovým koutem i pračkou. Toaleta je oddělena. 
Osvětimany jsou známé jako místo s bohatými možnostmi pro aktivní odpočinek – v létě cykloturistika a turistické trasy v okolí Chřibů, přírodní koupaliště, rybník a vyhledávaná přehrada, v zimě pak místní lyžařský areál s vleky i běžeckými tratěmi. V obci najdete základní občanskou vybavenost – obchod, restaurace, školu, sportovní areál i kulturní akce, které tu pravidelně ožívají. Dojezdová vzdálenost do Uherského Hradiště nebo Kyjova je jen cca 20 minut.
Pokud hledáte místo, kde můžete trávit volný čas s rodinou a přáteli, užívat si přírodu, klid a přitom mít na dosah vše potřebné, tahle chata je ideální volbou.
V případě dotazů nebo zájmu o prohlídku se na mě neváhejte obrátit. Rád Vás provedu.
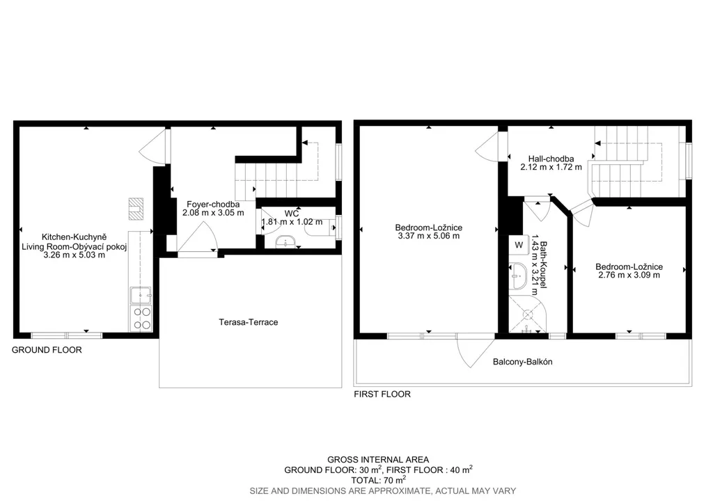
Rozměry chaty byly zaměřeny laserovou technologií Matterport a slouží pouze jako orientační údaj. Skutečná výměra se může lišit.
 
                                        Milady Horákové 1957/13, Brno
Máte zájem o tento dům?
Inzerát si prohlédlo 3 lidí
 
                                Martin Černý
Chcete dostávat emailem podobné nabídky prodeje chat v Osvětimanech?