Prodej vícegeneračního domu, Roudnice nad Labem, Špindlerova třída, 210 m2

Špindlerova třída, Roudnice nad Labem

6 500 000 Kč /za nemovitost HYPOTÉKA od 29 051 Kč /za měsíc

(včetně provize a daní)

Doporučené firmy v Roudnici nad Labem

Okna a dveře

Rekonstrukce

Zámečnické práce

Informace k domu

Exkluzivně nabízíme prodej vícegeneračního rodinného domu v Roudnici nad Labem, Špindlerova třída. Je ideální pro rodinné či vícegenerační bydlení nebo bydlení spojené s podnikáním. Dům je před kompletní rekonstrukcí, můžete si ho tedy upravit přesně dle Vašich představ!

Dispozice:
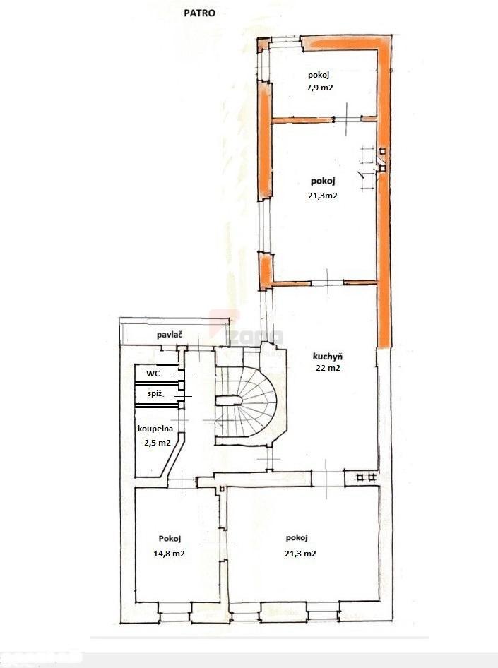
- 2 samostatné oddělené bytové jednotky 4+kk (přízemí 74,5 m, patro 109 m)
- Dvůr 67 m, zahrada 342 m
- Velký půdní prostor vhodný k vestavbě
- Malý sklep pod schody
- Chodba/vjezd 26 m vhodný pro parkování 1 vozidla

Vybavení:
- Plynové nebo elektrické vytápění
- Městská voda a kanalizace
- Samostatné měření plynu a elektřiny pro každou jednotku

Zahrada
- ve vnitrobloku - prostorná, tichá a slunná
- s ovocnými a okrasnými stromy

Lokalita:
- Klidná lokalita poblíž centra, naproti VOŠ a SOŠ
- 3x základní škola v dochozí vzdálenosti
- Výborná občanská vybavenost
- Rychlé spojení do Prahy: cca 35 min. po D8, 50 min vlakem
- v roce 2031v plánu terminál vysokorychlostní železnice VTR- jízdní doma mezi Roudnicí a Prahou se zkrátí na 19 minut

Průkaz energetické náročnosti se právě zpracovává, uvádíme třídu G.

Dům je ihned volný, prohlídky jsou možné po telefonické dohodě. Uvedená cena je včetně provize, daní a právních služeb. Nemovitost lze financovat hypotékou, s vyřízením Vám rádi pomůžeme.

Parametry domu

Cena
6 500 000 Kč /za nemovitost Spočítat hypotéku
Poznámka k ceně
včetně provize a daní
Aktualizováno
18. 9. 2025
Adresa
Špindlerova třída, Roudnice nad Labem
ID
907
Stavba
Smíšená
Stav objektu
Před rekonstrukcí
Typ objektu
Patrový
Druh objektu
Řadový
Užitná plocha
210 m2
Zastavěná plocha
201 m2
Podlahová plocha
250 m2
Plocha pozemku
543 m2
Plocha zahrady
342 m2
Třída energetické náročnosti
G - Mimořádně nehospodárná
Plyn
Plynovod
Odpad
Veřejná kanalizace
Topení
Ústřední plynové
Doprava
Vlak, Dálnice, MHD, Autobus
Voda
Vodovod
Balkon
Garáž
Sklep
Bezbarierový přístup
Parkování

Kontaktovat makléře

Realitní kancelář

Logo ZAPA reality, s.r.o.

ZAPA reality, s.r.o.

náměstí 14. října 1307/2, Praha

Chystáte se prodat nemovitost?
Pomůžeme Vám!

Máte zájem o tento dům?

Tímto, v souladu s nařízením Evropského parlamentu a Rady (EU) 2016/679, v platném znění, prohlašuji, že mi je alespoň 16 let a uděluji tak svůj souhlas se zpracováním zadaných údajů (jméno, telefon, e-mail, ip adresa) společnosti B3 Technology, s.r.o., IČ: 07330600, se sídlem Novostavby 126/23, 435 11 Lom (správce dat), za účelem předání dotazu z tohoto formuláře Vámi vybranému inzerentovi a zpětného kontaktování mé osoby. Osobní údaje bude správce zpracovávat manuálně i automaticky přímo prostřednictvím svých zaměstnanců. Informace předané tímto formulářem budou uloženy v databázi správce maximálně po dobu 10 let. Odvolání souhlasu s uložením a zpracováním poskytnutých dat lze e-mailem na info@bydlisnami.cz. V případě podezření na neoprávněné použití Vámi poskytnutých údajů máte právo předat podnět k šetření Úřadu pro ochranu osobních údajů. Více informací
Chystáte se prodat nemovitost?
Pomůžeme Vám!

Inzerát si prohlédlo 4 lidí

Prodejce

Lenka Brožová

Lenka Brožová

Hlídací pes

Chcete dostávat emailem podobné nabídky prodeje vícegeneračních domů v Roudnici nad Labem?

Podobné nemovitosti