Prodej bytu 2+kk, Kašperské Hory, Šumavská, 68 m2 (ID: 2419855)

Šumavská, Kašperské Hory

6 650 000 Kč /za nemovitost HYPOTÉKA od 29 721 Kč /za měsíc

(Cena včetně parkovacího stání, bytového zařízení, provize RK, právního servisu a advokátní úschovy)

Doporučené firmy v Kašperských Horách

Podlahy

Stěhovací služby

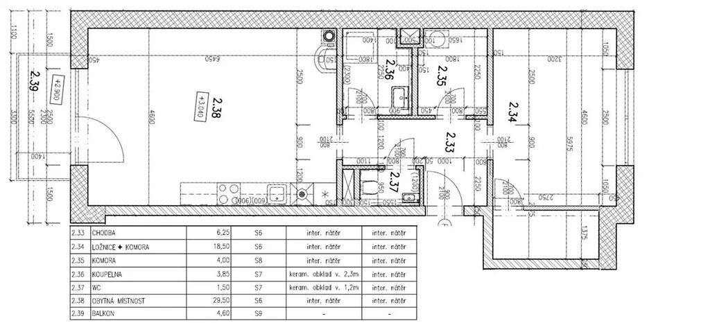
Informace k bytu

Prodej krásného, zařízeného a prostorného bytu 2+kk/B, 68 m2, ve 2. NP novostavby rezidenčního projektu z roku 2023, v Kašperských horách, ulice Šumavská. Součástí prodeje je vlastní parkovací stání. Bytový dům se nachází v uzavřeném privátním areálu s vlastní zahradou, altánem a parkováním za příjezdovou bránou na dálkové ovládání.
V bytě prostorné zařízené pokoje, pěkná vybavená kuchyně včetně spotřebičů (lednice s mrazákem, myčka, trouba, mikrovnlnná trouba. varná deska, digestoř), krásná koupelna se sprchovým koutem, topným žebříkem, 2x umyvadlem včetně skříněk, samostatná toaleta s umyvadlem a bidetovou sprchou. V obývacím pokoji komín s přípravou pro krbová kamna. V bytě technická místnost s kombinovanou pračkou se sušičkou, el. bojlerem pro ohřev teplé vody a skladovacími regály. Z ložnice přístup do komory (šatny). V předsíni vestavěný botník s věšákem. Orientace oken: obývací pokoj s balkonem na jih do privátní zahrady, ložnice na server do klidné ulice. V pokojích plovoucí podlahy, plastová okna. Velice nízké měsíční náklady 2.000,-Kč včetně fondu oprav + elektřina. Vytápění ústřední dálkové. V domě prostorná kolárna 30 m2!
Skvělé místo, tři minuty pěšky od náměstí, restaurace, kavárny, místní pivovar, hrad Kašperk. Krásné okolí NP Šumava a CHKO Šumava. V okolí cyklostezky, turistické stezky, sjezdovky a bežkařské trasy. Jedná se o bytovou jednotku (ne apartmán), v místě je tedy možné zřídit trvalé bydliště. Možnost hypotéky.

Parametry bytu

Cena
6 650 000 Kč /za nemovitost Spočítat hypotéku
Poznámka k ceně
Cena včetně parkovacího stání, bytového zařízení, provize RK, právního servisu a advokátní úschovy
Aktualizováno
22. 9. 2025
Adresa
Šumavská, Kašperské Hory
ID
25268
Stavba
Cihlová
Stav objektu
Novostavba
Patro
2. z 3
Lokalita objektu
Klidná část obce
Vlastnictví
Osobní
Užitná plocha
68 m2
Podlahová plocha
68 m2
Třída energetické náročnosti
B - Velmi úsporná
Ukazatel energetické náročnosti
91 kWh/m2 za rok
Elektřina
230V
Odpad
Veřejná kanalizace
Topení
Ústřední dálkové
Telekomunikace
Internet
Voda
Vodovod
Topné těleso
Radiátory
Zdroj topení
Krbová kamna, Ústřední dálkové
Balkon
Výtah
Bezbarierový přístup
Parkování

Kontaktovat makléře

Máte zájem o tento byt?

Tímto, v souladu s nařízením Evropského parlamentu a Rady (EU) 2016/679, v platném znění, prohlašuji, že mi je alespoň 16 let a uděluji tak svůj souhlas se zpracováním zadaných údajů (jméno, telefon, e-mail, ip adresa) společnosti B3 Technology, s.r.o., IČ: 07330600, se sídlem Novostavby 126/23, 435 11 Lom (správce dat), za účelem předání dotazu z tohoto formuláře Vámi vybranému inzerentovi a zpětného kontaktování mé osoby. Osobní údaje bude správce zpracovávat manuálně i automaticky přímo prostřednictvím svých zaměstnanců. Informace předané tímto formulářem budou uloženy v databázi správce maximálně po dobu 10 let. Odvolání souhlasu s uložením a zpracováním poskytnutých dat lze e-mailem na info@bydlisnami.cz. V případě podezření na neoprávněné použití Vámi poskytnutých údajů máte právo předat podnět k šetření Úřadu pro ochranu osobních údajů. Více informací
Chystáte se prodat nemovitost?
Pomůžeme Vám!

Inzerát si prohlédlo 5 lidí

Prodejce

Rudolf Bálek

Rudolf Bálek

Hlídací pes

Chcete dostávat emailem podobné nabídky prodeje bytů 2+kk v Kašperských Horách?

Podobné nemovitosti