Prodej bytu 3+kk, Pozlovice, Hlavní, 74 m2

Hlavní, Pozlovice

4 100 000 Kč /za nemovitost HYPOTÉKA od 18 325 Kč /za měsíc
Doporučené firmy v Pozlovicích

Informace k bytu

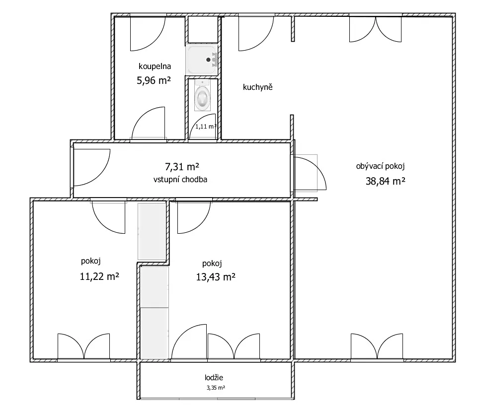
Prodej prostorného bytu 3+kk, 74 m² – Pozlovice, ul. Hlavní

Nabízíme k prodeji prostorný byt o dispozici 3+kk a užitné ploše 74 m², který se nachází ve 3. patře cihlového domu v klidné části Pozlovic, na ulici Hlavní. Byt je orientovaný na východ a západ, což zajišťuje dostatek denního světla po celý den.

Dispozice bytu zahrnuje:

vstupní chodbu

obývací pokoj s kuchyňským koutem a jídelnou

ložnici s lodžií a krásným výhledem do zeleně

dětský pokoj

koupelnu s vanou i sprchovým koutem

samostatné WC

Byt je v původním stavu (kromě zrekonstruované koupelny) a nabízí skvělou příležitost k realizaci vlastních úprav dle vlastního vkusu. V obytných místnostech se nachází dřevěné podlahy, v obývacím pokoji je plovoucí podlaha, kuchyň, chodba a koupelna mají keramickou dlažbu.

Vytápění i ohřev vody zajišťuje vlastní plynový kotel, což přináší nezávislost na centrálním zdroji. K bytu náleží prostorný sklep o velikosti 10 m² (nezapočítaný do plochy bytu) a dostatek společných prostor ( herna, kolárna aj) . Parkování je možné přímo před domem.

Lokalita nabízí klidné a pohodové bydlení s dobrou občanskou vybaveností a výbornou dostupností do centra Luhačovic.

Energetická náročnost budovy: třída E.

Pro více informací nebo domluvení prohlídky nás neváhejte kontaktovat.

Parametry bytu

Cena
4 100 000 Kč /za nemovitost Spočítat hypotéku
Aktualizováno
23. 9. 2025
Adresa
Hlavní, Pozlovice
Stavba
Cihlová
Stav objektu
Před rekonstrukcí
Patro
3.
Vlastnictví
Osobní
Užitná plocha
74 m2
Sklep
Lodžie

Kontaktovat makléře

Máte zájem o tento byt?

Tímto, v souladu s nařízením Evropského parlamentu a Rady (EU) 2016/679, v platném znění, prohlašuji, že mi je alespoň 16 let a uděluji tak svůj souhlas se zpracováním zadaných údajů (jméno, telefon, e-mail, ip adresa) společnosti B3 Technology, s.r.o., IČ: 07330600, se sídlem Novostavby 126/23, 435 11 Lom (správce dat), za účelem předání dotazu z tohoto formuláře Vámi vybranému inzerentovi a zpětného kontaktování mé osoby. Osobní údaje bude správce zpracovávat manuálně i automaticky přímo prostřednictvím svých zaměstnanců. Informace předané tímto formulářem budou uloženy v databázi správce maximálně po dobu 10 let. Odvolání souhlasu s uložením a zpracováním poskytnutých dat lze e-mailem na info@bydlisnami.cz. V případě podezření na neoprávněné použití Vámi poskytnutých údajů máte právo předat podnět k šetření Úřadu pro ochranu osobních údajů. Více informací
Chystáte se prodat nemovitost?
Pomůžeme Vám!

Inzerát si prohlédlo 5 lidí

Prodejce

Karel Adámek

Karel Adámek

Hlídací pes

Chcete dostávat emailem podobné nabídky prodeje bytů 3+kk v Pozlovicích?

Top nabídky

Podobné nemovitosti