Prodej bytu 3+kk, Plzeň, Zahradní, 73 m2 (ID: 2420718)

Zahradní, Plzeň, Východní Předměstí

Cena na vyžádání /za nemovitost Získejte výhodnou HYPOTÉKU
Doporučené firmy v Plzni

Podlahy

Stěhovací služby

Informace k bytu

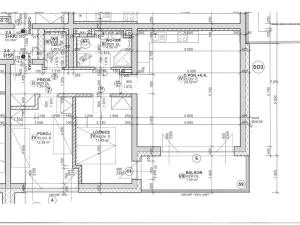
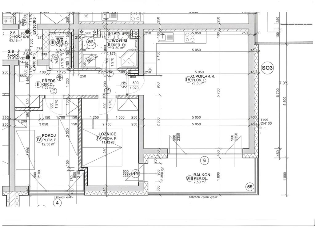
Nabízíme Vám k prodeji nový byt o velikosti 3+kk+balkon označený jako byt 13, nacházející se ve 2. NP o celkové ploše včetně balkonu a zděného sklepa 80,8 m2, který je stavěn v rámci projektu Bydlení Zahradní v žádané plzeňské čtvrti Slovany na rohu Zahradní a Hradišťské ulice v docházkové vzdálenosti od kompletní občanské vybavenosti a zeleně.

V bytě bude k dispozici obývací pokoj s kuchyňským koutem (29,50 m2), ložnice (11,42 m2), další pokoj (12,38 m2), předsíň (7,53 m2), koupelna s WC (4,50 m2), další samostatné WC (1,88 m2) a balkon (7,50 m2) přístupný z ob. pokoje a ložnice. Dále k bytu náleží zděný sklep (1,98 m2) v 1. podzemním podlaží domu. Byt bude osazen velmi dobrými standardy zařizovacích předmětů.

Tento byt zde uvádíme jako modelový, v prodeji jsou ještě další byty 3+kk umístěné v různých podlažích domu. K dispozici jsou pro Vás také byty 2+kk.

Podrobné informace získáte u prodejce bytů ABJ reality s.r.o.

K bytu je možné si zakoupit zastřešené parkovací stání v 1.PP nebo venkovní parkovací stání nacházející se na přilehlém pozemku u domu.

Byty jsou orientovány jak směrem do Zahradní a Hradišťské ulice – jihozápadní orientace, tak do vnitrobloku s východní orientací.

Projekt Bydlení Zahradní tak představuje ideální kombinaci bydlení v žádané plzeňské čtvrti Slovany s dostupnou občanskou vybaveností v docházkové vzdálenosti a dostupnými vycházkovými trasami podél řeky Radbuzy, které Vás dovedou až do centra Plzně, kam dojdete pěšky i s malými dětmi.

Samotná budova bytového domu má pět nadzemních podlaží s 32 byty a jedno podzemní podlaží, ve kterém budou k dispozici částečně krytá parkovací stání a sklepy pro jednotlivé byty. Bytový dům má jeden centrální vchod s výtahem. Nebudou zde komerční prostory. Vytápění domu a ohřev vody bude zajištěno centrálně pomocí teplovodu.

Zahájení výstavby bytového domu je naplánováno na podzim 2024, dokončení domu je naplánováno na podzim roku 2026.

Aktuality z výstavby domu: jsou dokončovány práce na 1.PP a provádí se příprava prací na 1.NP.

Parametry bytu

Cena
Cena na vyžádání Spočítat hypotéku
Aktualizováno
6. 10. 2025
Adresa
Zahradní, Plzeň, Východní Předměstí
ID
481
Stavba
Smíšená
Stav objektu
Ve výstavbě
Patro
2. z 5
Vlastnictví
Osobní
Užitná plocha
73 m2
Třída energetické náročnosti
A - Mimořádně úsporná
Elektřina
230V
Odpad
Veřejná kanalizace
Komunikace
Asfaltová
Doprava
Silnice, MHD
Voda
Vodovod
Zdroj topení
Centrální dálkové
Zdroj teplé vody
Centrální dálkový ohřev
Balkon
Sklep
Výtah
Bezbarierový přístup

Kontaktovat makléře

Realitní kancelář

ABJ reality, s.r.o.

sady Pětatřicátníků 316/6, Plzeň

Chystáte se prodat nemovitost?
Pomůžeme Vám!

Máte zájem o tento byt?

Tímto, v souladu s nařízením Evropského parlamentu a Rady (EU) 2016/679, v platném znění, prohlašuji, že mi je alespoň 16 let a uděluji tak svůj souhlas se zpracováním zadaných údajů (jméno, telefon, e-mail, ip adresa) společnosti B3 Technology, s.r.o., IČ: 07330600, se sídlem Novostavby 126/23, 435 11 Lom (správce dat), za účelem předání dotazu z tohoto formuláře Vámi vybranému inzerentovi a zpětného kontaktování mé osoby. Osobní údaje bude správce zpracovávat manuálně i automaticky přímo prostřednictvím svých zaměstnanců. Informace předané tímto formulářem budou uloženy v databázi správce maximálně po dobu 10 let. Odvolání souhlasu s uložením a zpracováním poskytnutých dat lze e-mailem na info@bydlisnami.cz. V případě podezření na neoprávněné použití Vámi poskytnutých údajů máte právo předat podnět k šetření Úřadu pro ochranu osobních údajů. Více informací
Chystáte se prodat nemovitost?
Pomůžeme Vám!

Inzerát si prohlédlo 4 lidí

Prodejce

Jiří Bažant

Jiří Bažant

Hlídací pes

Chcete dostávat emailem podobné nabídky prodeje bytů 3+kk v Plzni?

Podobné nemovitosti