Dražba pole, Žihobce, 2193 m2 (ID: 2421654)

Žihobce

650 000 Kč /za nemovitost Získejte výhodnou HYPOTÉKU
Doporučené firmy v Žihobcích

Podlahy

Stěhovací služby

Informace k pozemku

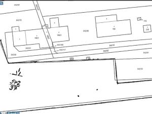
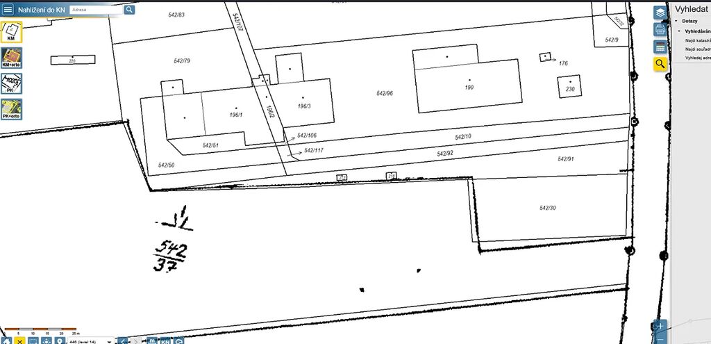
ředmětem prodeje jsou pozemky:

pozemek p.č.st. 218, zastavěná plocha a nádvoří

součástí je stavba: bez č.p./č.e., tech. vyb., bez LV

pozemek p.č. 542/30, jiná plocha

pozemek p.č. 542/91, manipulační plocha

Výše uvedené nemovité věci jsou zapsány v katastru nemovitostí vedeném Katastrálním úřadem pro Plzeňský kraj, katastrální pracoviště Klatovy, na listu vlastnictví č. 92, pro katastrální území Žihobce, obec Žihobce.



Pozemek parc.č. St. 218 o výměře 9 m2 je evidován v katastru nemovitostí jako zastavěná plocha a nádvoří. Na pozemku stojí stavba bez č.p. /č.ev. stavba technického vybavení. Stavba je ve vlastnictví jiného subjektu a není předmětem ocenění (parc. č. 272, LV 428). Oceňovaný pozemek parc.č. 542/30 o výměře 1190 m2 je evidovaný v katastru nemovitostí jako ostatní plocha, způsob využití jiná plocha. Podle platného územního plánu je pozemek regulován jako VZ- plochy zemědělské- plochy staveb a zařízení. Pozemek parc.č. 542/91 o výměře 994 m2 je evidovaný v katastru nemovitostí jako ostatní plocha, způsob využití manipulační plocha. Pozemek nepravidelného tvaru tvoří funkční celek s nemovitostmi v areálu pod společným oplocením. Podle platného územního plánu jsou pozemky regulovány jak VZ- plochy zemědělské – plochy staveb a zařízení.

Oceňované pozemky se nachází v severní části obce Žihobce v prostorách bývalého zemědělského areálu. Obec Žihobce se nachází cca 8 km východně od Sušice, kde je veškerá občanská vybavenost. V obci je obchod s potravinami, pošta, základní a mateřská škola. V obci je zastávka autobusových spojů. Lokalita se zanedbatelným nebezpečím výskytu záplav.



V katastru nemovitostí je evidováno omezení vlastnického práva, které však nemá vliv na cenu obvyklou:

Věcné břemeno právo stavby a instalace kabelové přípojky podzemního kabelu VN v rozsahu dle geometrického plánu. Oprávnění pro SD Klatovy s.r.o., povinnost k parcela St. 272, 542/91

Věcné břemeno užívání a přístupu za účelem údržby a oprav kabelové přípojky a trafostanice. Oprávnění pro SD Klatovy s.r.o., povinnost k parcela St. 272, 542/91

Věcné břemeno chůze a jízdy za účelem přístupu a příjezdu k FVE a jejich součástem a příslušenstvím, trafostanici a kabelové přípojce. Oprávnění pro SD Klatovy s.r.o., povinnost k parcela St. 272, 542/91.

Parametry pozemku

Cena
650 000 Kč /za nemovitost
Aktualizováno
24. 9. 2025
Adresa
Žihobce
Plocha pozemku
2193 m2

Kontaktovat makléře

Máte zájem o tento pozemek?

Tímto, v souladu s nařízením Evropského parlamentu a Rady (EU) 2016/679, v platném znění, prohlašuji, že mi je alespoň 16 let a uděluji tak svůj souhlas se zpracováním zadaných údajů (jméno, telefon, e-mail, ip adresa) společnosti B3 Technology, s.r.o., IČ: 07330600, se sídlem Novostavby 126/23, 435 11 Lom (správce dat), za účelem předání dotazu z tohoto formuláře Vámi vybranému inzerentovi a zpětného kontaktování mé osoby. Osobní údaje bude správce zpracovávat manuálně i automaticky přímo prostřednictvím svých zaměstnanců. Informace předané tímto formulářem budou uloženy v databázi správce maximálně po dobu 10 let. Odvolání souhlasu s uložením a zpracováním poskytnutých dat lze e-mailem na info@bydlisnami.cz. V případě podezření na neoprávněné použití Vámi poskytnutých údajů máte právo předat podnět k šetření Úřadu pro ochranu osobních údajů. Více informací
Chystáte se prodat nemovitost?
Pomůžeme Vám!

Inzerát si prohlédlo 3 lidí

Prodejce

Magdaléna Kryštofová

Magdaléna Kryštofová

Hlídací pes

Chcete dostávat emailem podobné nabídky dražby polí v Žihobcích?

Podobné nemovitosti