Prodej bytu 2+1, Zlín, Dukelská, 52 m2

Dukelská, Zlín

4 980 000 Kč /za nemovitost HYPOTÉKA od 22 258 Kč /za měsíc

(včetně provize, včetně právního servisu)

Doporučené firmy v Zlíně

Informace k bytu

Kompletně zrekonstruovaný byt 2+1 v klidné části Zlína – ideální pro bydlení i investici

Nabízíme ke koupi vkusně a kompletně zrekonstruovaný byt 2+1 ve vyhledávané a klidné lokalitě města Zlína. Byt se nachází v udržovaném domě s dobrou občanskou vybaveností v docházkové vzdálenosti.

Kompletní rekonstrukce – elektroinstalace, podlahy, kuchyňská linka, bytové jádro, nové vstupní bezpečnostní dveře
Moderní vybavení – byt se prodává zařízený tak jak je na fotografiích, nový nábytek pro 4 studenty (4 postele, 2 šatní skříně, 2 psací stoly, 2 židle), nové všechny spotřebiče (varná deska, trouba, lednice, mikrovlnka, varná konvice, pračka se sušičkou LG). Není nutná žádná dalšá investice.
Byt má sklep a dům má kolárnu. Budova je zateplena, což přispívá ke zvýšení energetické efektivity.
Momentálně se byt pronajímá 3 studentkám VŠ.
Byt je v osobním vlastnictví, bez zástav a břemen.
Skvělá investiční příležitost.
Měsíční náklady bytu 3879 Kč, zálohy na elektřinu 440 Kč. Při pronájmu 4 studentům čistý zisk po odečtení nákladů 20.524 Kč

Neváhejte nás kontaktovat pro více informací nebo domluvení prohlídky!

Parametry bytu

Cena
4 980 000 Kč /za nemovitost Spočítat hypotéku
Poznámka k ceně
včetně provize, včetně právního servisu
Aktualizováno
27. 9. 2025
Adresa
Dukelská, Zlín
ID
2513
Stavba
Cihlová
Stav objektu
Po rekonstrukci
Patro
3. z 5
Vybaveno
Ano
Lokalita objektu
Sídliště
Vlastnictví
Osobní
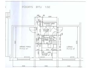
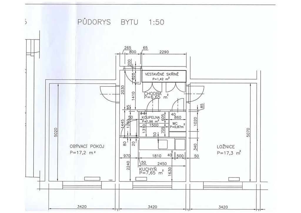
Užitná plocha
52 m2
Třída energetické náročnosti
D - Méně úsporná
Ukazatel energetické náročnosti
148 kWh/m2 za rok
Elektřina
230V
Odpad
Veřejná kanalizace
Komunikace
Asfaltová
Telekomunikace
Internet, Kabelová televize
Doprava
Vlak, Dálnice, Silnice, MHD, Autobus
Voda
Vodovod
Topné těleso
Radiátory
Zdroj topení
Centrální dálkové
Zdroj teplé vody
Centrální dálkový ohřev
Sklep
Výtah

Kontaktovat makléře

Máte zájem o tento byt?

Tímto, v souladu s nařízením Evropského parlamentu a Rady (EU) 2016/679, v platném znění, prohlašuji, že mi je alespoň 16 let a uděluji tak svůj souhlas se zpracováním zadaných údajů (jméno, telefon, e-mail, ip adresa) společnosti B3 Technology, s.r.o., IČ: 07330600, se sídlem Novostavby 126/23, 435 11 Lom (správce dat), za účelem předání dotazu z tohoto formuláře Vámi vybranému inzerentovi a zpětného kontaktování mé osoby. Osobní údaje bude správce zpracovávat manuálně i automaticky přímo prostřednictvím svých zaměstnanců. Informace předané tímto formulářem budou uloženy v databázi správce maximálně po dobu 10 let. Odvolání souhlasu s uložením a zpracováním poskytnutých dat lze e-mailem na info@bydlisnami.cz. V případě podezření na neoprávněné použití Vámi poskytnutých údajů máte právo předat podnět k šetření Úřadu pro ochranu osobních údajů. Více informací
Chystáte se prodat nemovitost?
Pomůžeme Vám!

Inzerát si prohlédlo 4 lidí

Prodejce

Ing. Ivan Hošťálek

Ing. Ivan Hošťálek

Hlídací pes

Chcete dostávat emailem podobné nabídky prodeje bytů 2+1 v Zlíně?

Top nabídky

Podobné nemovitosti