Pronájem rodinného domu, Kostelec nad Labem, nám. Odboje, 162 m2

nám. Odboje, Kostelec nad Labem

35 000 Kč /za měsíc Získejte výhodnou HYPOTÉKU

(zálohy 8000Kč, vratná jistota 35 000 Kč, provize RK 35 000Kč, včetně DPH, bez poplatků, + provize RK, včetně právního servisu, cena k jednání)

Doporučené firmy v Kostelci nad Labem

Informace k domu

Pronájem rodinného domu se zahradou - Kostelec nad Labem

Na klidném místě na Náměstí Odboje v Kostelci nad Labem stojí dům, který může být Vaším novým domovem. Prostorná dispozice 6+kk, garáž přímo v objektu a krásná, udržovaná zahrada vytvářejí příjemné prostředí pro pohodlné bydlení.
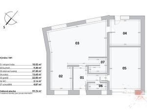
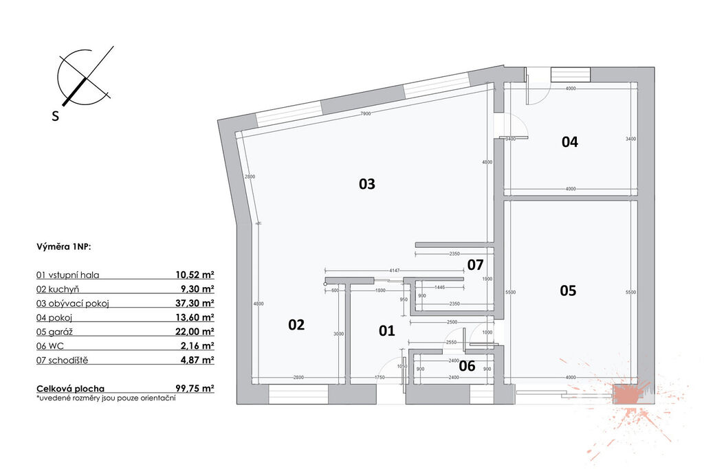
V přízemí se nachází světlý obývací pokoj s krbem a kuchyňským koutem vybaveným spotřebiči – lednicí, sporákem, myčkou a digestoří. Odtud je také přímý vstup na zahradu, která vybízí k posezení a relaxaci. Dále je zde pokoj, předsíň, koupelna se sprchovým koutem a toaletou a praktický vstup do garáže, kam lze vejít jak zevnitř, tak zvenku.
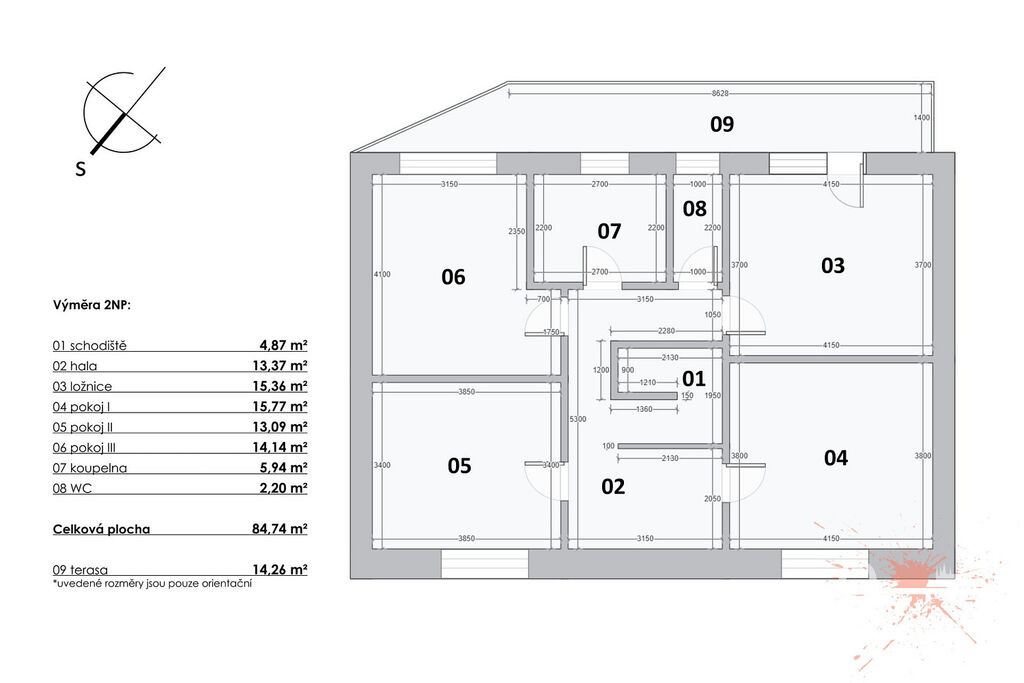
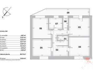
V prvním patře jsou čtyři pokoje, samostatná toaleta a koupelna s vanou. Z jednoho pokoje a koupelny je přístup na prostornou terasu s výhledem do zeleně. Praktickým bonusem je velká vestavěná šatní skříň. Interiér je čerstvě vymalovaný a připravený k okamžitému nastěhování.
Dům má příjemnou atmosféru, kterou podtrhuje terasa i okouzlující zahrada – ideální místo pro klidné chvíle i setkávání s blízkými.

Kostelec nad Labem nabízí vše potřebné pro každodenní život. V pěší vzdálenosti najdete supermarket Penny Market, menší obchody s potravinami, lékárnu, poštu, restaurace i kavárny. Ve městě je základní a mateřská škola, sportovní areál i dětská hřiště. Blízko domu jsou autobusové zastávky se spojením do okolních měst.

Informace k měsíčním platbám: nájemné 35 000 Kč a záloha na poplatky pro čtyři osoby činí 8000 Kč.
Vratná jistota a provize realitnímu zprostředkovateli činí dvakrát 35 000 Kč. Pro úspěšný start v novém bydlení bude Vaše úhrnná prvotní investice představovat 113 000 Kč (nájemné s poplatky, jistota a provize).


Těším se na prohlídku, při níž Vám ráda dům představím.

Parametry domu

Cena
35 000 Kč /za měsíc
Poznámka k ceně
zálohy 8000Kč, vratná jistota 35 000 Kč, provize RK 35 000Kč, včetně DPH, bez poplatků, + provize RK, včetně právního servisu, cena k jednání
Aktualizováno
26. 9. 2025
Adresa
nám. Odboje, Kostelec nad Labem
ID
00013
Stavba
Smíšená
Stav objektu
Dobrý
Vybaveno
Částečně
Druh objektu
Řadový
Lokalita objektu
Klidná část obce
Užitná plocha
162 m2
Zastavěná plocha
70 m2
Plocha pozemku
258 m2
Třída energetické náročnosti
G - Mimořádně nehospodárná

Kontaktovat makléře

Realitní kancelář

Hana Čermín Kaslová

U Hostavického potoka 830/24, Praha 9

Chystáte se prodat nemovitost?
Pomůžeme Vám!

Máte zájem o tento dům?

Tímto, v souladu s nařízením Evropského parlamentu a Rady (EU) 2016/679, v platném znění, prohlašuji, že mi je alespoň 16 let a uděluji tak svůj souhlas se zpracováním zadaných údajů (jméno, telefon, e-mail, ip adresa) společnosti B3 Technology, s.r.o., IČ: 07330600, se sídlem Novostavby 126/23, 435 11 Lom (správce dat), za účelem předání dotazu z tohoto formuláře Vámi vybranému inzerentovi a zpětného kontaktování mé osoby. Osobní údaje bude správce zpracovávat manuálně i automaticky přímo prostřednictvím svých zaměstnanců. Informace předané tímto formulářem budou uloženy v databázi správce maximálně po dobu 10 let. Odvolání souhlasu s uložením a zpracováním poskytnutých dat lze e-mailem na info@bydlisnami.cz. V případě podezření na neoprávněné použití Vámi poskytnutých údajů máte právo předat podnět k šetření Úřadu pro ochranu osobních údajů. Více informací
Chystáte se prodat nemovitost?
Pomůžeme Vám!

Inzerát si prohlédlo 7 lidí

Prodejce

Hana Čermín Kaslová

Hana Čermín Kaslová

Hlídací pes

Chcete dostávat emailem podobné nabídky pronájmu rodinných domů v Kostelci nad Labem?

Podobné nemovitosti