Prodej pozemku, Železný Brod - Jirkov, 920 m2

Železný Brod, Jirkov

Doporučené firmy v Železném Brodě

Rekonstrukce

Úklidové služby

Informace k pozemku

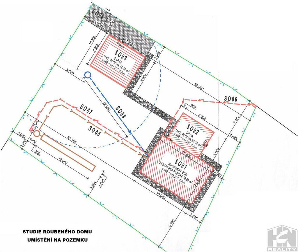
Stavební pozemek Jirkov u Železného Brodu o velikosti 920m²

Exkluzivní nabídka stavebního pozemku v malebné lokalitě Jirkov u Železného Brodu o velikosti 920 m², který je ideální pro výstavbu vašeho vysněného roubeného domu.

Na pozemku se nachází přípojka elektrické energie a je zde navrženo vybudování vrtané studny jako zdroje vody. Kanalizace je plánována formou čističky odpadních vod s vsakem přímo na pozemku, což zajišťuje komfortní a ekologické bydlení.

Pozemek je v platném územním plánu MĚSTA ŽELEZNÝ BROD v lokalitě Z112 - BM PLOCHY BYDLENÍ MĚSTSKÉ INDIVIDUÁLNÍ.

Slunné místo s nádherným výhledem na pohoří Kozákov poskytuje ideální podmínky pro relaxaci a odpočinek. V blízkosti pozemku se nachází tenisové kurty, které potěší sportovně založené obyvatele.

Výhodou této lokality je také dobrá dopravní dostupnost do města Železný Brod, což zajišťuje snadný přístup k veškeré občanské vybavenosti a službám. Nezmeškejte tuto jedinečnou příležitost a investujte do svého budoucího bydlení v krásné přírodě.

Parametry pozemku

Cena
2 990 000 Kč Spočítat hypotéku
Aktualizováno
28. 9. 2025
Adresa
Železný Brod, Jirkov
ID
109
Vlastnictví
Osobní
Plocha pozemku
920 m2

Kontaktovat makléře

Máte zájem o tento pozemek?

Tímto, v souladu s nařízením Evropského parlamentu a Rady (EU) 2016/679, v platném znění, prohlašuji, že mi je alespoň 16 let a uděluji tak svůj souhlas se zpracováním zadaných údajů (jméno, telefon, e-mail, ip adresa) společnosti B3 Technology, s.r.o., IČ: 07330600, se sídlem Novostavby 126/23, 435 11 Lom (správce dat), za účelem předání dotazu z tohoto formuláře Vámi vybranému inzerentovi a zpětného kontaktování mé osoby. Osobní údaje bude správce zpracovávat manuálně i automaticky přímo prostřednictvím svých zaměstnanců. Informace předané tímto formulářem budou uloženy v databázi správce maximálně po dobu 10 let. Odvolání souhlasu s uložením a zpracováním poskytnutých dat lze e-mailem na info@bydlisnami.cz. V případě podezření na neoprávněné použití Vámi poskytnutých údajů máte právo předat podnět k šetření Úřadu pro ochranu osobních údajů. Více informací
Chystáte se prodat nemovitost?
Pomůžeme Vám!

Inzerát si prohlédlo 1 lidí

Prodejce

Aleš Nachtnebl

Aleš Nachtnebl

Hlídací pes

Chcete dostávat emailem podobné nabídky prodeje pozemků v Železném Brodě?

Podobné nemovitosti