Prodej bytu 2+kk, Praha - Vršovice, Oblouková, 58 m2

Oblouková, Praha, Vršovice

10 190 000 Kč /za nemovitost HYPOTÉKA od 45 543 Kč /za měsíc
Doporučené firmy v Praze 10

Stěhovací služby

Výkup a prodej starého nábytku

Informace k bytu

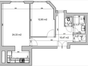
Nabízíme k prodeji zrekonstruovaný, světlý byt 2+kk s balkonem o výměře 58 m², který se nachází ve 2. patře udržovaného cihlového domu s výtahem v oblíbené části pražských Vršovic.
Byt prošel kompletní rekonstrukcí a je připraven k okamžitému nastěhování – stačí si přinést osobní věci a bydlet.

Dispozice bytu
Vstupní hala s dostatkem místa pro botník či šatní skříň.
Technická místnost, ideální pro pračku, sušičku či další úložný prostor.
Samostatná koupelna se sprchovým koutem.
Oddělená toaleta pro větší komfort.
Ložnice orientovaná do klidného vnitrobloku.
Obývací pokoj s odděleným kuchyňským koutem a vstupem na balkon, který nabízí prostor pro malé posezení nebo květiny.
V bytě je kvalitní dřevěná podlaha a podlahové vytápění, ohřev vody zajišťuje elektrický bojler.
K bytu dále náleží prostorný sklep.
Dům a lokalita
Cihlový dům je ve velmi dobrém technickém i vizuálním stavu, společné prostory jsou čisté a udržované, v domě je moderní výtah.

Vršovice jsou vyhledávanou lokalitou díky výborné dopravní dostupnosti i kompletní občanské vybavenosti:
Tramvajová zastávka Bohemians – 2 minuty chůze,
Vlaková stanice Praha – Vršovice – 10 minut chůze,
v okolí množství kaváren, restaurací, obchodů a služeb,
v pěší vzdálenosti také parky a sportovní vyžití, například stadion Bohemians.

Shrnutí výhod
Kompletně zrekonstruovaný byt připravený k nastěhování.
Balkon s možností posezení.
Praktická technická místnost a prostorný sklep.
Podlahové topení a kvalitní materiály.
Skvělá dopravní dostupnost a občanská vybavenost v okolí.

Neváhejte mne kontaktovat pro sjednání prohlídky !

Parametry bytu

Cena
10 190 000 Kč /za nemovitost Spočítat hypotéku
Aktualizováno
30. 9. 2025
Adresa
Oblouková, Praha, Vršovice
ID
00177
Stavba
Cihlová
Stav objektu
Po rekonstrukci
Patro
2. z 5
Lokalita objektu
Klidná část obce
Vlastnictví
Osobní
Užitná plocha
58 m2
Třída energetické náročnosti
G - Mimořádně nehospodárná
Elektřina
230V
Plyn
Plynovod
Odpad
Veřejná kanalizace
Doprava
Vlak, Silnice, MHD, Autobus
Voda
Vodovod
Topné těleso
Podlahové vytápění
Zdroj topení
Elektrokotel
Zdroj teplé vody
Bojler - elektro
Balkon
Výtah

Kontaktovat makléře

Máte zájem o tento byt?

Tímto, v souladu s nařízením Evropského parlamentu a Rady (EU) 2016/679, v platném znění, prohlašuji, že mi je alespoň 16 let a uděluji tak svůj souhlas se zpracováním zadaných údajů (jméno, telefon, e-mail, ip adresa) společnosti B3 Technology, s.r.o., IČ: 07330600, se sídlem Novostavby 126/23, 435 11 Lom (správce dat), za účelem předání dotazu z tohoto formuláře Vámi vybranému inzerentovi a zpětného kontaktování mé osoby. Osobní údaje bude správce zpracovávat manuálně i automaticky přímo prostřednictvím svých zaměstnanců. Informace předané tímto formulářem budou uloženy v databázi správce maximálně po dobu 10 let. Odvolání souhlasu s uložením a zpracováním poskytnutých dat lze e-mailem na info@bydlisnami.cz. V případě podezření na neoprávněné použití Vámi poskytnutých údajů máte právo předat podnět k šetření Úřadu pro ochranu osobních údajů. Více informací
Chystáte se prodat nemovitost?
Pomůžeme Vám!

Inzerát si prohlédlo 2 lidí

Prodejce

Ing. Kristýna Žikešová

Ing. Kristýna Žikešová

Hlídací pes

Chcete dostávat emailem podobné nabídky prodeje bytů 2+kk v Praze 10?

Podobné nemovitosti