Prodej bytu 2+kk, Praha - Vysočany, Pod Harfou, 45 m2 (ID: 2432186)

Pod Harfou, Praha, Vysočany

7 890 000 Kč /za nemovitost HYPOTÉKA od 35 264 Kč /za měsíc
Doporučené firmy v Praze 9

Stěhovací služby

Výkup a prodej starého nábytku

Informace k bytu

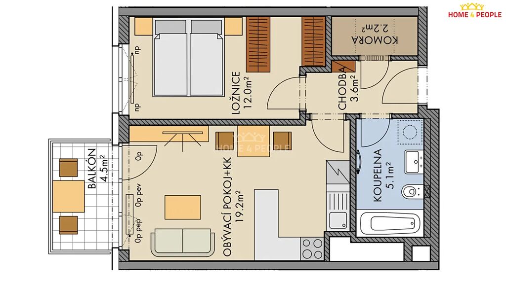
Nabízíme vám k prodeji nový družstevní byt 2+kk o velikosti 44,3 m² + balkon 4,5m² v developerském projektu Harfa Park od společnosti FINEP (kolaudace 11/2025). Lokalita: Praha 9 – Vysočany.

Byt tvoří obývací pokoj s kuchyňským koutem, ložnice, koupelna s toaletou, vstupní chodba, komora a balkon. Nachází se v 3. nadzemním podlaží novostavby s výtahem (celkem 10 NP). Díky severní orientaci se v létě nepřehřívá a okna nabízejí krásný výhled do zeleně.

V kupní ceně je zahrnuta kompletně vybavená koupelna a bílé interiérové dveře včetně obložek (Sapeli). Součástí je také dotace 500 Kč/m² na podlahové krytiny dle výběru nového majitele.

Nemovitost je prodávána prostřednictvím převodu Družstevního podílu:

Celková cena bytu je: 7.890.000,-kč.

Částka která se platí při převodu Družstevního podílu : 3.543.160,- Kč
 
Doplatek ve formě měsíčních splátek anuity družstvu je 4.346.840,-Kč

Anuitní splátky začínáte platit až po předání bytové jednotky.
Měsíční splátka anuity za byt je 23.495,-Kč.

Možnost přikoupení garážového stání za 600.000,-Kč, odstupné  je: 200.000,-Kč, anuita je 400.000,-Kč, měsíční splátka anuity 2.162,-Kč


Dopravní dostupnost je výborná: zastávka tramvaje je 3 minuty chůze od domu, stanice metra Vysočanská 10 minut chůze a vlakové nádraží Praha–Libeň jen 6 minut chůze.
Občanská vybavenost v okolí: supermarket Albert, kavárna, restaurace, vinotéka, kadeřnictví a řada dalších obchodů a služeb. V pěší vzdálenosti jsou obchodní centra Galerie Harfa a NC Fénix. Sportovní nadšence potěší oblíbená cyklostezka v sousedství rezidence a venkovní workoutové hřiště.

Družstevní anuitu splácíte bez nutnosti hypotečního úvěru (neprokazujete svou bonitu ani věk).
Měsíční splátka anuity 23.495,-Kč je kalkulována s úrovokou sazbou 5,77% (40 let). Developer s financující bankou nyní projednává aktualizaci úrokové sazby, očekává se cca 4,85%. Splácení anuity zahájíte po převzetí dokončeného bytu. Možnost vložení mimořádné splátky či doplacení celé anuity a následného převodu bytu do osobního vlastnictví. Ev. číslo: 31916.

Parametry bytu

Cena
7 890 000 Kč /za nemovitost Spočítat hypotéku
Aktualizováno
4. 10. 2025
Adresa
Pod Harfou, Praha, Vysočany
ID
31916
Stavba
Cihlová
Stav objektu
Novostavba
Patro
3. z 10
Vybaveno
Ano
Vlastnictví
Družstevní
Užitná plocha
45 m2
Podlahová plocha
45 m2
Třída energetické náročnosti
B - Velmi úsporná
Elektřina
120V, 230V
Odpad
Veřejná kanalizace
Topení
Ústřední dálkové
Telekomunikace
Telefon, Internet, Kabelová televize
Doprava
Vlak, Autobus
Voda
Místní zdroj vody
Balkon
Garáž
Převod do OV

Kontaktovat makléře

Máte zájem o tento byt?

Tímto, v souladu s nařízením Evropského parlamentu a Rady (EU) 2016/679, v platném znění, prohlašuji, že mi je alespoň 16 let a uděluji tak svůj souhlas se zpracováním zadaných údajů (jméno, telefon, e-mail, ip adresa) společnosti B3 Technology, s.r.o., IČ: 07330600, se sídlem Novostavby 126/23, 435 11 Lom (správce dat), za účelem předání dotazu z tohoto formuláře Vámi vybranému inzerentovi a zpětného kontaktování mé osoby. Osobní údaje bude správce zpracovávat manuálně i automaticky přímo prostřednictvím svých zaměstnanců. Informace předané tímto formulářem budou uloženy v databázi správce maximálně po dobu 10 let. Odvolání souhlasu s uložením a zpracováním poskytnutých dat lze e-mailem na info@bydlisnami.cz. V případě podezření na neoprávněné použití Vámi poskytnutých údajů máte právo předat podnět k šetření Úřadu pro ochranu osobních údajů. Více informací
Chystáte se prodat nemovitost?
Pomůžeme Vám!

Inzerát si prohlédlo 0 lidí

Prodejce

František Zbahna

František Zbahna

Hlídací pes

Chcete dostávat emailem podobné nabídky prodeje bytů 2+kk v Praze 9?

Podobné nemovitosti