Prodej bytu 1+kk, Praha - Dolní Měcholupy, Honzíkova, 41 m2 (ID: 2433173)

Honzíkova, Praha, Dolní Měcholupy

1 700 000 Kč /za nemovitost HYPOTÉKA od 7 598 Kč /za měsíc
Doporučené firmy v Praze 10

Stěhovací služby

Výkup a prodej starého nábytku

Informace k bytu

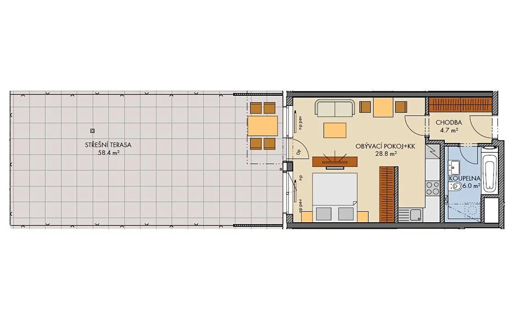
Nabízíme postoupení nového družstevního bytu 1+kk v projektu Malý háj XIII (dům G5), ulice Honzíkova úspěšného developera FINEP.

Byt 1+kk (možno jednoduše přestavět na 2+kk) o velikosti 41 m2 + terasa 58,3 m2 se nachází v 1. nadzemním podlaží (z celkových šesti pater) s orientací na západ.

Dispozice bytu: obývací pokoj s kuchyňským koutem, koupelna s WC, chodba, terasa.

Cena za postoupení bytu: 1 700 000 Kč (z vlastních zdrojů)
Doplatek za byt, který budete splácet formou anuity: 6 112 080 Kč (splácí se až po kolaudaci) - neprokazujete příjmy, nepotřebujete hypotéku.

Anuita se splácí až po převzetí dokončeného bytu (předpoklad 08/2027). Maximální délka splácení je 30 let.
Aktuálně měsíční splátka anuity za byt činí 27 542 Kč.

K bytu náleží garážové stání a dva sklepy za příplatek.
V době výstavby nelze převést do osobního vlastnictví.

Skvělá občanská vybavenost: Retail park Štěrboholy (drogerie, Penny market, pekárna, restaurace),
Lidl, lékárna, OC Europark (Globus restaurace, hypermarket, DM drogerie, knihkupectví).
Pohybové studio a kavárna, několik dětských hřišť, venkovní posilovna.
Park Hrušov, rybník Slatina, cyklostezka.

Parametry bytu

Cena
1 700 000 Kč /za nemovitost Spočítat hypotéku
Aktualizováno
6. 10. 2025
Adresa
Honzíkova, Praha, Dolní Měcholupy
ID
1032
Stavba
Cihlová
Stav objektu
Projekt
Patro
1. z 6
Vybaveno
Ne
Vlastnictví
Družstevní
Užitná plocha
41 m2
Podlahová plocha
41 m2
Třída energetické náročnosti
B - Velmi úsporná
Topení
Ústřední dálkové
Komunikace
Asfaltová
Doprava
MHD
Voda
Vodovod
Balkon
Garáž
Sklep
Výtah
Bezbarierový přístup
Převod do OV

Kontaktovat makléře

Máte zájem o tento byt?

Tímto, v souladu s nařízením Evropského parlamentu a Rady (EU) 2016/679, v platném znění, prohlašuji, že mi je alespoň 16 let a uděluji tak svůj souhlas se zpracováním zadaných údajů (jméno, telefon, e-mail, ip adresa) společnosti B3 Technology, s.r.o., IČ: 07330600, se sídlem Novostavby 126/23, 435 11 Lom (správce dat), za účelem předání dotazu z tohoto formuláře Vámi vybranému inzerentovi a zpětného kontaktování mé osoby. Osobní údaje bude správce zpracovávat manuálně i automaticky přímo prostřednictvím svých zaměstnanců. Informace předané tímto formulářem budou uloženy v databázi správce maximálně po dobu 10 let. Odvolání souhlasu s uložením a zpracováním poskytnutých dat lze e-mailem na info@bydlisnami.cz. V případě podezření na neoprávněné použití Vámi poskytnutých údajů máte právo předat podnět k šetření Úřadu pro ochranu osobních údajů. Více informací
Chystáte se prodat nemovitost?
Pomůžeme Vám!

Inzerát si prohlédlo 2 lidí

Prodejce

Tomáš Kučera

Tomáš Kučera

Hlídací pes

Chcete dostávat emailem podobné nabídky prodeje bytů 1+kk v Praze 10?

Podobné nemovitosti