Prodej zemědělské usedlosti, Stráž nad Nežárkou, Šimanov, 2139 m2 (ID: 2433357)

Šimanov, Stráž nad Nežárkou

Cena na vyžádání /za nemovitost Získejte výhodnou HYPOTÉKU
Doporučené firmy v Stráži nad Nežárkou

Informace k domu

Ve výhradním zastoupení vlastníka nabízím na prodej výjimečnou rodinnou usedlost k bydlení a podnikání u Stráže nad Nežárkou s pozemky o výměře 34.782 m².

Součástí prodeje je patrový rodinný dům, 3 budovy s nebytovými prostory a vodní elektrárnou na řece Nežárce, které tvoří uzavřený areál bývalé zemědělskou usedlosti. K němu patří fungující pila s pozemky k uskladnění dřeva, budova staré vily a kus pole oddělené cestou od areálu statku.

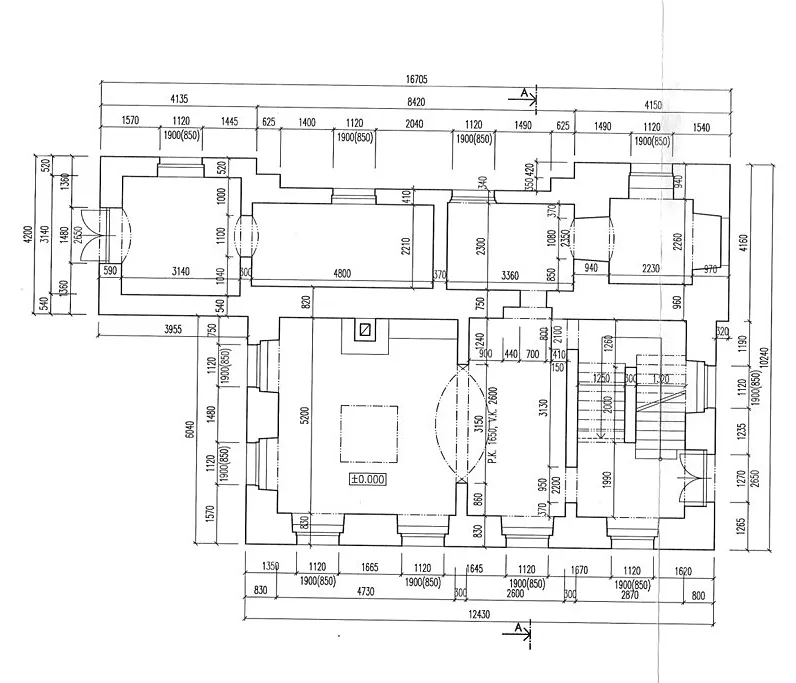
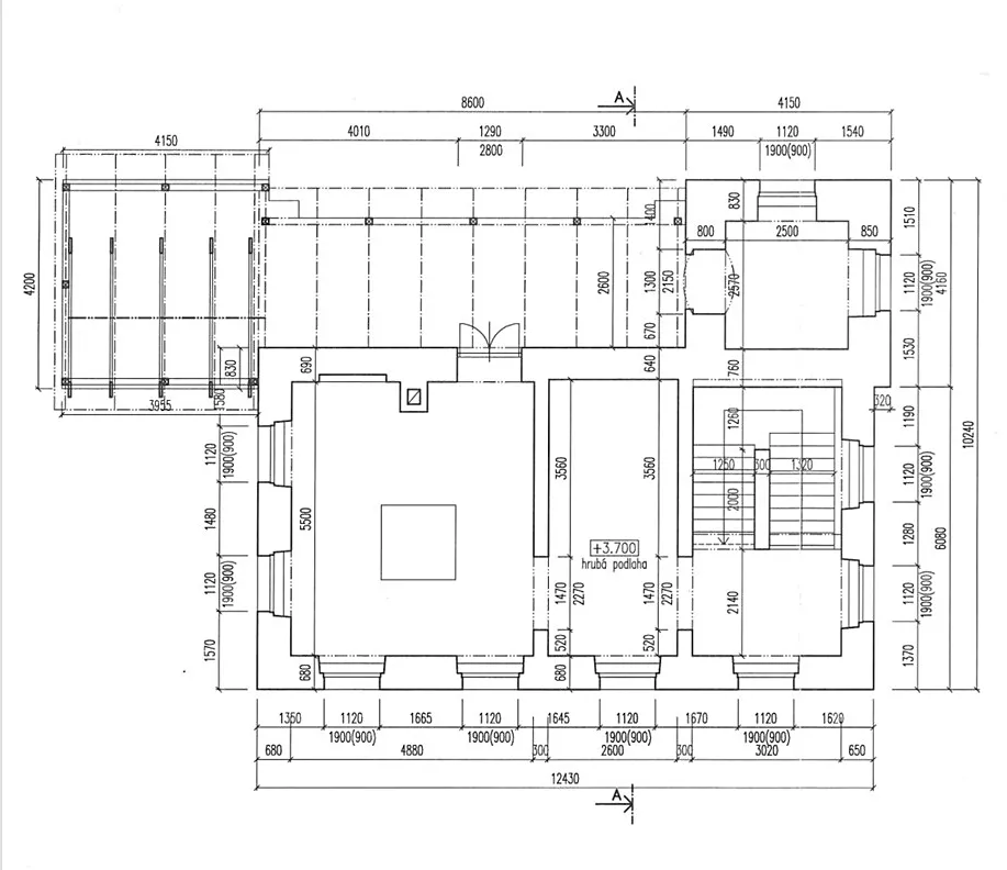
Obytný dům má v přízemí 3 velké pokoje, vstupní halu, kuchyni a WC. V 1. patře je 5 pokojů, jeden s přípravou na další kuchyni, koupelna a WC a v podkroví jeden velký pokoj s koupelnou a WC. Dům je tak možné rozdělit na 2-3 bytové jednotky. Vytápění je podlahové v kombinaci s radiátory a napojené na elektrokotel. Voda je z vlastní vrtané studny a nemovitost je napojena na čističku. Dům je ve velmi dobrém stavu k nastěhování.

Dvorní trakt usedlosti tvoří celkem čtyři budovy rozdělené do nezávislých i propojených prostor. Hala A - první v budově nalevo od brány má výměru 141 m² (9,8x14.3), světlou výšku 6,3 m a vrata o šířce 6,3 a výšce 3,4 m. Hala B má plochu 107 m² (8,5x12,6) a výšku 3,1 m. C je rohový prostor se 2 podlažími o výměře 90 m² (10,7x8,3). Hala D má portálový jeřáb, plochu 111 m² (12,8x8,6), výšku 4,98 a vrata o š.4,47 a v. 3,25m. Hala E má dvě podlaží, v přízemí má prostor o ploše 128 m s vestavěným chladícím boxem napravo od vrat o ploše 12 m² a dvěma místnostmi nalevo (25 a 9 m²). V patře jsou 3 místnosti (62, 52 a 24 m²) a chodba se schodištěm. Nejblíže řece je samostatná budova s bytem ke kompletní rekonstrukci a oddělený prostor s vodní elektrárnou s Francisovou turbínou 1500 mm, průtokem 2,5 m3 a výkonem 50kW. Elektrárna je přímo na řece Nežárce, je plně funkční, má povolení k provozu a je napojená jak na síť, tak celý areál.

Dvůr uzavírá další budova s celkem 5 halami, kde je nyní dílna, 3 skladovací prostory a bývalá kovárna s 2-výhní, bucharem, hrubovací bruskou, soustruhem zn. HEID nebo frézkou TOS. Nalevo od vstupu do areálu statku je oddělený dvorek se zděným kioskem a venkovním posezením přístupný z obecní komunikace.

K areálu patří fungující pila vybavená katrem G71, pásovou pilou Lignotech 880, rozmítací a hranolovací pilou a bruskou. K pile patří hon ND9 a ještěrkou zn Balkancar k manipulaci se dřevem. Hala pily má zastavěnou plochu 374 m².

Součástí prodeje je i vila s věží k celkové rekonstrukci. Má zastavěnou plochu 138 m², dvě nadzemní podlaží a podkroví, věž má ještě o patro více. Je napojená na studnu areálu, elektřinu a má vlastní jímku. Za vilou a pilou je pole o výměře 17.701 m² oddělené od areálu pásem půdy. Mezi řekou a statkem jsou tři sádky vydlážděné kameny a napojené na řeku.

Více informací včetně ceny Vám ráda sdělím po telefonu, emailu nebo na osobní prohlídce areálu.

Parametry domu

Cena
Cena na vyžádání Spočítat hypotéku
Aktualizováno
6. 10. 2025
Adresa
Šimanov, Stráž nad Nežárkou
Stavba
Smíšená
Stav objektu
Velmi dobrý
Druh objektu
Samostatný
Lokalita objektu
Polosamota
Užitná plocha
2139 m2
Plocha pozemku
34782 m2
Třída energetické náročnosti
G - Mimořádně nehospodárná
Elektřina
230V
Odpad
ČOV pro celý objekt
Komunikace
Asfaltová, Zpevněná, Štěrková
Doprava
Dálnice, Silnice
Voda
Studna
Topné těleso
Podlahové vytápění, Radiátory
Zdroj topení
Elektrokotel
Výtah
Bezbarierový přístup
Parkování

Kontaktovat makléře

Realitní kancelář

Pavlína Bolfová

Benediktská 688/6, Praha, Staré Město

Chystáte se prodat nemovitost?
Pomůžeme Vám!

Máte zájem o tento dům?

Tímto, v souladu s nařízením Evropského parlamentu a Rady (EU) 2016/679, v platném znění, prohlašuji, že mi je alespoň 16 let a uděluji tak svůj souhlas se zpracováním zadaných údajů (jméno, telefon, e-mail, ip adresa) společnosti B3 Technology, s.r.o., IČ: 07330600, se sídlem Novostavby 126/23, 435 11 Lom (správce dat), za účelem předání dotazu z tohoto formuláře Vámi vybranému inzerentovi a zpětného kontaktování mé osoby. Osobní údaje bude správce zpracovávat manuálně i automaticky přímo prostřednictvím svých zaměstnanců. Informace předané tímto formulářem budou uloženy v databázi správce maximálně po dobu 10 let. Odvolání souhlasu s uložením a zpracováním poskytnutých dat lze e-mailem na info@bydlisnami.cz. V případě podezření na neoprávněné použití Vámi poskytnutých údajů máte právo předat podnět k šetření Úřadu pro ochranu osobních údajů. Více informací
Chystáte se prodat nemovitost?
Pomůžeme Vám!

Inzerát si prohlédlo 1 lidí

Prodejce

Pavlína Bolfová

Pavlína Bolfová

Hlídací pes

Chcete dostávat emailem podobné nabídky prodeje zemědělských usedlostí v Stráži nad Nežárkou?

Podobné nemovitosti