Prodej bytu 1+kk, Praha - Vysočany, Freyova, 33 m2

Freyova, Praha 9, Vysočany

5 500 000 Kč /za nemovitost HYPOTÉKA od 24 582 Kč /za měsíc

(+ 3886,- služby)

Doporučené firmy v Praze 9

Stěhovací služby

Výkup a prodej starého nábytku

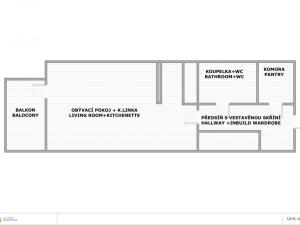
Informace k bytu

Nabízíme k prodeji zařízený byt, který se nachází v 19. NP bytového domu Eliška v pražských Vysočanech.
K dispozici je vešekeré vybavení (viz. aktuální foto) jako je lednice, pračka, nadstandardně kvalitní kuchyňská linka s myčkou a horkovzdušnou troubou, psací stůl, rozkládací postel atd. Příjemným plusem je bezesporu balkon s panoramatickým výhledem na Prahu, prostorná vestavěná skříň v předsíni.
Perfektní dopravní dospupnost do centa města, stanice metra Vysočanská (B) do 5. min, chůze, stejně jako nákupní centra Fenix a Harfa.
V domě je 24/7 recepce, Přímo před domem vede cyklostezka a in-line dráha.
Zálohy za domovní služby (FO, odměny, teplo, TUV a studená voda, svoz odpadu, výtah, atd.) 3.886,- Kč/měs + spotřeba elektřiny (cca 800,- Kč/měs)
V současné době je byt pronajat.

Parametry bytu

Cena
5 500 000 Kč /za nemovitost Spočítat hypotéku
Poznámka k ceně
+ 3886,- služby
Aktualizováno
8. 10. 2025
Adresa
Freyova, Praha 9, Vysočany
ID
504/2738
Stavba
Skeletová
Stav objektu
Velmi dobrý
Patro
20. z 24
Vybaveno
Ano
Typ objektu
Patrový
Vlastnictví
Osobní
Užitná plocha
33 m2
Podlahová plocha
33 m2
Plocha pozemku
33 m2
Třída energetické náročnosti
C - Úsporná
Telekomunikace
Internet
Doprava
Vlak, Silnice, MHD, Autobus
Balkon
Výtah
Bezbarierový přístup

Kontaktovat makléře

Realitní kancelář

Logo REAL FRIEND

REAL FRIEND

Navrátilova 675/3, Praha 1

Chystáte se prodat nemovitost?
Pomůžeme Vám!

Máte zájem o tento byt?

Tímto, v souladu s nařízením Evropského parlamentu a Rady (EU) 2016/679, v platném znění, prohlašuji, že mi je alespoň 16 let a uděluji tak svůj souhlas se zpracováním zadaných údajů (jméno, telefon, e-mail, ip adresa) společnosti B3 Technology, s.r.o., IČ: 07330600, se sídlem Novostavby 126/23, 435 11 Lom (správce dat), za účelem předání dotazu z tohoto formuláře Vámi vybranému inzerentovi a zpětného kontaktování mé osoby. Osobní údaje bude správce zpracovávat manuálně i automaticky přímo prostřednictvím svých zaměstnanců. Informace předané tímto formulářem budou uloženy v databázi správce maximálně po dobu 10 let. Odvolání souhlasu s uložením a zpracováním poskytnutých dat lze e-mailem na info@bydlisnami.cz. V případě podezření na neoprávněné použití Vámi poskytnutých údajů máte právo předat podnět k šetření Úřadu pro ochranu osobních údajů. Více informací
Chystáte se prodat nemovitost?
Pomůžeme Vám!

Inzerát si prohlédlo 2 lidí

Prodejce

Jiří Pospíšil

Jiří Pospíšil

Hlídací pes

Chcete dostávat emailem podobné nabídky prodeje bytů 1+kk v Praze 9?

Podobné nemovitosti