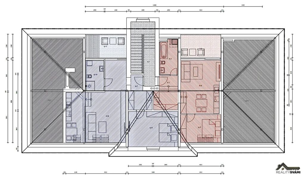
Prodej bytu 4+kk, Ostrava, Žofie Podlipské, 132 m2

Žofie Podlipské, Ostrava, Přívoz

6 270 000 Kč /za nemovitost HYPOTÉKA od 28 023 Kč /za měsíc

(včetně provize, včetně právního servisu)

Doporučené firmy v Ostravě

Informace k bytu

Nabízíme k prodeji celkem 10 bytů v „Residenci Paleček“ v klidné, ale zároveň skvěle dostupné lokalitě Ostravy.
Residence Paleček kombinuje historický charakter cihlové fasády s moderními technologiemi a vybavením. Nemovitost je vhodná jako dlouhodobá investice s možností stabilních výnosů z pronájmu nebo postupného odprodeje jednotlivých bytů či k vlastnímu bydlení. Atraktivní lokalita s rostoucí hodnotou nemovitostí a nízkými náklady na bydlení. V nabídce domu je pouze jedna VIP podkrovní bytová jednotka s prosklenou terasou.

Objekt se nachází na ulici Žofie Podlipské.
Dům má celkem 5 podlaží, z toho jedno podzemní a čtyři nadzemní, přízemí, dvě patra zrcadlově stejné a 2 podkrovní byty s prosklenou terasou s kontaktem korun kaštanů jako na Hukvaldech.
Rekonstrukce probíhala od roku 2019 a byla dokončena na konci roku 2023. V současnosti stále probíhají drobné úpravy a vylepšení dle plánů - například příprava pro instalaci solárních panelů pro úsporu a instalace nabíjecích stanic na elektro automobily.

Bytový dům má celkem 14 bytových jednotek, z toho již 4 prodané do osobního vlastnictví.
V nabídce je zbývajících 10 bytových jednotek těchto dispozic a velikostí:

1NP – 1+kk, 39,81 m² + sklep 8,5 m² (nájemník)
1NP – 2+1, 68,36 m² + sklep 8,5 m² (nájemník)
1NP – 2+kk, 50,2 m² + sklep 8,2 m²
1NP – 3+kk, 72,68 m² + sklep 8,2 m²
2NP – 2+1, 68,36 m² + sklep 9,08 m²
2NP – 2+kk, 50,2 m² + sklep 9,08 m²
2NP – 3+kk, 83,80 m² + sklep 9,55 m²
3NP – 2+1, 70,65 m² + sklep 8,2 m²
3NP – 2+kk, 51,24 m² + sklep 8,2 m²
4NP – 4+kk VIP s terasou, 132,6 m² + sklep 8,5 m²

Každá jednotka má sklepní kóji (pro kola, sezónní věci apod.).
Kóje jsou dostatečně prostorné, laťkové, s dvojitou elektrickou zásuvkou – lze je využít např. pro mrazák.
Dům je situován na vlastním oploceném pozemku s elektricky ovládanou bránou, chráněným parkováním za příplatek a plánovaným malým dětským hřištěm. Dům a jeho okolí je zabezpečeno kamerovým systémem se záznamem.
Kupující se může stát jednotlivým vlastníkem jednotky/tek, dle vlastního uvážení, ale také většinovým (tzv. majoritním) vlastníkem – tedy vlastníkem s většinovým podílem na společných částech domu.
V rozhodování společenství vlastníků jednotek (SVJ) má tento vlastník většinu hlasů (podle velikosti spoluvlastnického podílu), a může tak zásadně ovlivňovat správu domu a pozemku (volbu výboru, schvalování oprav, investic apod.). Prozatím není vytvořena žádná společenská smlouva. V plánu je také vytvoření parkovacích stání k prodeji na střeženém pozemku.
V inzerci jsou viditelné ukázkové čtyři bytové jednotky různých dispozic.
Kuchyně vybaveny ve vzorových bytech. Ceny kuchyňských linek nejsou součástí základního vybavení bytů (mimo vzorových) stejná firma vyrobí dle požadavků budoucího majitele/ů bytů - hlavně požadavků kuchařky.
Standard lze na přání klienta rozšířit o nadstandardní prvky – technologie i interiérové vybavení.

Standard vybavení a technické parametry domu:
Historická fasáda z lícových cihel, vnitřní zateplení Ytong Multipor.
Voda - v každém bytě je odpočtový vodoměr + možný rozdíl poměr ztrát dle % jednotlivých odběrů.
Omítky s výmalbou Primalex Plus. Okna plastová vícekomorová, trojsklo (venkovní antracit, vnitřní bílá).
Podlahy: zátěžová laminátová (dub).
Dveře vstupní: historické, masivní dřevo s bezpečnostním kováním.
Dveře interiérové: masiv, pískované sklo s historickým motivem, kliky mosaz lakovaná.
Koupelny a WC: dlažba 60×60 cm, obklad 90×30 cm (bílá + černý profil).
Sanita: sprchové kouty z bezpečnostního skla.
Elektroinstalace: zásuvky a vypínače Legrand Valena, přípojka internetu, domovní telefon, LED osvětlení 4000K.
Vytápění: elektrické – sálavé panely Ecosun (koupelny, chodby) + konvektory Ecoflex Solius (obytné prostory).
Terasy/balkony: dlažba Taurus 30×30 Granit, kovové zábradlí s povrchovou úpravou Granit.

Lokalita a výhody: Klidné prostředí s výhledem do Michalíkova sadu. V blízkosti přírody (Landek) i centra Ostravy. Revitalizovaná část Přívozu s investičním potenciálem. Blízké obchodní a kancelářské komplexy (např. Outlet Moravia). Výborná dopravní dostupnost: MHD, vlak, autobus, centrum v dosahu.

Pro více informací a sjednání prohlídky mě kontaktujte.

Parametry bytu

Cena
6 270 000 Kč /za nemovitost Spočítat hypotéku
Poznámka k ceně
včetně provize, včetně právního servisu
Náklady na bydlení
4500
Aktualizováno
9. 10. 2025
Adresa
Žofie Podlipské, Ostrava, Přívoz
ID
00599
Stavba
Cihlová
Stav objektu
Po rekonstrukci
Patro
4. z 4
Vybaveno
Částečně
Lokalita objektu
Centrum obce
Vlastnictví
Osobní
Užitná plocha
132 m2
Třída energetické náročnosti
G - Mimořádně nehospodárná
Ukazatel energetické náročnosti
273 kWh/m2 za rok
Elektřina
230V
Odpad
Veřejná kanalizace
Komunikace
Betonová, Asfaltová
Telekomunikace
Internet, Satelit, Kabelová televize, Kabelové rozvody
Doprava
Vlak, Dálnice, Silnice, MHD, Autobus
Voda
Vodovod
Topné těleso
Přímotop
Zdroj topení
Elektrokotel, Přímotop
Zdroj teplé vody
Elektrokotel, Bojler - elektro
Sklep
Terasa
Výtah
Parkování

Kontaktovat makléře

Máte zájem o tento byt?

Tímto, v souladu s nařízením Evropského parlamentu a Rady (EU) 2016/679, v platném znění, prohlašuji, že mi je alespoň 16 let a uděluji tak svůj souhlas se zpracováním zadaných údajů (jméno, telefon, e-mail, ip adresa) společnosti B3 Technology, s.r.o., IČ: 07330600, se sídlem Novostavby 126/23, 435 11 Lom (správce dat), za účelem předání dotazu z tohoto formuláře Vámi vybranému inzerentovi a zpětného kontaktování mé osoby. Osobní údaje bude správce zpracovávat manuálně i automaticky přímo prostřednictvím svých zaměstnanců. Informace předané tímto formulářem budou uloženy v databázi správce maximálně po dobu 10 let. Odvolání souhlasu s uložením a zpracováním poskytnutých dat lze e-mailem na info@bydlisnami.cz. V případě podezření na neoprávněné použití Vámi poskytnutých údajů máte právo předat podnět k šetření Úřadu pro ochranu osobních údajů. Více informací
Chystáte se prodat nemovitost?
Pomůžeme Vám!

Inzerát si prohlédlo 0 lidí

Prodejce

František Bula

František Bula

Hlídací pes

Chcete dostávat emailem podobné nabídky prodeje bytů 4+kk v Ostravě?

Podobné nemovitosti