Prodej bytu 3+kk, Ostrava, Václava Košaře, 44 m2 (ID: 2437467)

Václava Košaře, Ostrava, Dubina

2 950 000 Kč /za nemovitost HYPOTÉKA od 13 185 Kč /za měsíc
Doporučené firmy v Ostravě

Informace k bytu

Malý byt nafouknutý do obřích rozměrů. 3+kk na výměře 44m2 kde je efektivně využitý každý centimetr pro pohodlné bydlení i větší rodiny.

Nabízený zrekonstruovaný byt je v 1.patře zrevitalizovaného bytového domu v klidné a slušné části Dubiny, kde si jej během chvilky zamilujete pro jeho přehledné uspořádání, koupelnu přístupnou ihned z chodby a obrovskou skříň hned za vstupními dveřmi.

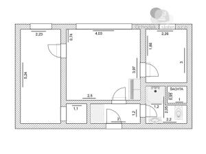
Ale vezměme to popořadě. Po vstupu do bytu se octnete v 3,6m2 velké chodbě, jejíž součástí je nalevo umístěná vestavěná skříň s atypickou hloubkou 97cm, kam dokážete uložit opravdu hooodně věcí. Napravo od vstupních dveří je se svými 3,4m2 koupelna s prostorným sprchovým koutem, toaletou a umyvadlem.

Dále pak vstoupíte do prostředního velkého pokoje s výměrou 16m2, který je rozdělen na část s rohovou pohovkou, kuchyňským koutem a jídelním stolem. Kuchyňská linka je menších rozměrů ale v galerii pak najdete zpracovaný návrh pro zvětšení na kuchyňskou linku přes celou stěnu, kdy tímto dosáhnete plnohodnotné kuchyně s dostatečným množstvím skladovacích prostor a také větší pracovní a přípravnou plochou jak pro masterchefa.

Vpravo i vlevo od tohoto pokoje se nacházejí dva menší pokojíky o výměře 6,85m2 vpravo a 11,7m2 nalevo. Ten větší je navíc vybaven výklenkem 1,3m2 sloužícím jako šatna. Oba tyto v současném uspořádání slouží jako ložnice.

Jako další úložný prostor vás nadchne i pořádný sklep o výměře 1,9m2.

Ať už byt využijete pro občasné přespání, nebo pro dlouhodobé bydlení, jistě oceníte družstvo, které spravuje výlučně tento jediný panelový dům a vzorně se o něj stará. Dále také slušné a klidné sousedy, parkování přímo před domem, nebo třeba dětská hřiště v okolí, na nichž se vyřádí děti od nejmenších až po puberťáky - je tu i menší skatepark. V docházkové vzdálenosti je MŠ i ZŠ, potraviny, restaurace, hospůdka, lékárna, tramvajové i autobusové zastávky a další.

Pokud vás tento byt zaujal jako mě, ozvěte se pro domluvení prohlídky. Ráda vás tu provedu.



Pozn.: Energetický štítek v nejbližší době doplníme, zatím musíme ze zákonných důvodů uvést třídu G. Uvedená kupní cena nezahrnuje zprostředkovatelský poplatek 150.000Kč.

Parametry bytu

Cena
2 950 000 Kč /za nemovitost Spočítat hypotéku
Aktualizováno
11. 10. 2025
Adresa
Václava Košaře, Ostrava, Dubina
ID
25-04-004
Stavba
Panelová
Stav objektu
Po rekonstrukci
Patro
2. z 4
Lokalita objektu
Klidná část obce
Vlastnictví
Družstevní
Užitná plocha
44 m2
Podlahová plocha
44 m2
Třída energetické náročnosti
G - Mimořádně nehospodárná
Plyn
Plynovod
Odpad
Veřejná kanalizace
Topení
Ústřední dálkové
Telekomunikace
Telefon, Internet, Kabelová televize
Voda
Vodovod
Topné těleso
Radiátory
Zdroj topení
Ústřední dálkové
Sklep
Výtah
Bezbarierový přístup
Převod do OV

Kontaktovat makléře

Realitní kancelář

Ochodek Estates

Brodek u Konice 126, Brodek u Konice

Chystáte se prodat nemovitost?
Pomůžeme Vám!

Máte zájem o tento byt?

Tímto, v souladu s nařízením Evropského parlamentu a Rady (EU) 2016/679, v platném znění, prohlašuji, že mi je alespoň 16 let a uděluji tak svůj souhlas se zpracováním zadaných údajů (jméno, telefon, e-mail, ip adresa) společnosti B3 Technology, s.r.o., IČ: 07330600, se sídlem Novostavby 126/23, 435 11 Lom (správce dat), za účelem předání dotazu z tohoto formuláře Vámi vybranému inzerentovi a zpětného kontaktování mé osoby. Osobní údaje bude správce zpracovávat manuálně i automaticky přímo prostřednictvím svých zaměstnanců. Informace předané tímto formulářem budou uloženy v databázi správce maximálně po dobu 10 let. Odvolání souhlasu s uložením a zpracováním poskytnutých dat lze e-mailem na info@bydlisnami.cz. V případě podezření na neoprávněné použití Vámi poskytnutých údajů máte právo předat podnět k šetření Úřadu pro ochranu osobních údajů. Více informací
Chystáte se prodat nemovitost?
Pomůžeme Vám!

Inzerát si prohlédlo 7 lidí

Prodejce

David Ochodek

David Ochodek

Hlídací pes

Chcete dostávat emailem podobné nabídky prodeje bytů 3+kk v Ostravě?

Podobné nemovitosti