Prodej bytu 1+kk, Praha, Kadečkové, 37 m2

Kadečkové, Praha 18

Rezervováno
6 499 997 Kč /za nemovitost HYPOTÉKA od 29 051 Kč /za měsíc

(Byt ihned k dispozici. Cena je vč. vlastního parkování v domě, balkón, sklep + veškeré poplatky.)

Doporučené firmy v Praze

Stěhovací služby

Výkup a prodej starého nábytku

Informace k bytu

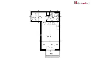
Dumrealit.cz Vám zprostředkuje exklusivní prodej bytu 1+kk v 1.patře (2.NP), o velikosti 37,9 m² + balkón se sítí proti ptactvu o velikosti 4,6 m² a zděný sklep o velikosti 4,3 m², který je umístěn přímo proti vlastnímu krytému parkovacímu stání v domě. Parkovací stání v domě je součástí ceny bytu. Stání je v současné době pronajímáno za 1.500,- Kč/měsíc do 28.2.2026. Byt je ihned k nastěhování. Sklep je dost prostorný a lze jej zabezpečit pro kola, lyže a pod. Krásné okolí, příroda, kola, kolečkové brusle, veškerá dostupnost v okolí. Metro, autobusy, vlak, supermarkety, dálnice atd. Veškeré informace a prohlídky u RK. Ev. číslo: 652749.

Parametry bytu

Stav
Rezervováno
Cena
6 499 997 Kč /za nemovitost Spočítat hypotéku
Poznámka k ceně
Byt ihned k dispozici. Cena je vč. vlastního parkování v domě, balkón, sklep + veškeré poplatky.
Aktualizováno
11. 2. 2026
Adresa
Kadečkové, Praha 18
ID
653363
Stavba
Skeletová
Stav objektu
Novostavba
Patro
3. z 6
Vybaveno
Ano
Vlastnictví
Osobní
Užitná plocha
37 m2
Podlahová plocha
37 m2
Třída energetické náročnosti
B - Velmi úsporná
Ukazatel energetické náročnosti
113 kWh/m2 za rok
Topení
Ústřední dálkové
Balkon
Garáž
Sklep
Parkování

Kontaktovat makléře

Máte zájem o tento byt?

Tímto, v souladu s nařízením Evropského parlamentu a Rady (EU) 2016/679, v platném znění, prohlašuji, že mi je alespoň 16 let a uděluji tak svůj souhlas se zpracováním zadaných údajů (jméno, telefon, e-mail, ip adresa) společnosti B3 Technology, s.r.o., IČ: 07330600, se sídlem Novostavby 126/23, 435 11 Lom (správce dat), za účelem předání dotazu z tohoto formuláře Vámi vybranému inzerentovi a zpětného kontaktování mé osoby. Osobní údaje bude správce zpracovávat manuálně i automaticky přímo prostřednictvím svých zaměstnanců. Informace předané tímto formulářem budou uloženy v databázi správce maximálně po dobu 10 let. Odvolání souhlasu s uložením a zpracováním poskytnutých dat lze e-mailem na info@bydlisnami.cz. V případě podezření na neoprávněné použití Vámi poskytnutých údajů máte právo předat podnět k šetření Úřadu pro ochranu osobních údajů. Více informací
Chystáte se prodat nemovitost?
Pomůžeme Vám!

Inzerát si prohlédlo 20 lidí

Prodejce

Miroslav Cink

Miroslav Cink

Hlídací pes

Chcete dostávat emailem podobné nabídky prodeje bytů 1+kk v Praze?

Podobné nemovitosti