Prodej bytu 1+1, Praha - Žižkov, Nad Ohradou, 40 m2 (ID: 2438498)

Nad Ohradou, Praha, Žižkov

5 990 000 Kč /za nemovitost HYPOTÉKA od 26 772 Kč /za měsíc

(včetně provize, včetně právního servisu)

Doporučené firmy v Praze 3

Stěhovací služby

Výkup a prodej starého nábytku

Informace k bytu

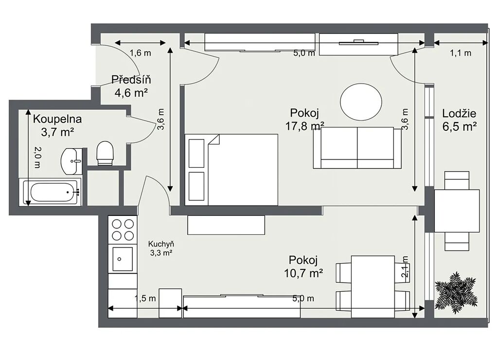
Nabízíme k prodeji byt 1+1 o velikosti 40,1 m² s lodžií 6,5 m², komorou na patře a sklepem 5 m², který se nachází v jedné z nejatraktivnějších částí Prahy 3 – přímo v ulici Nad Ohradou na Žižkově. Tato adresa patří mezi vyhledávané lokality nejen díky své atmosféře, ale především díky perfektní dopravní dostupnosti a kompletní občanské vybavenosti. Jen pár kroků od domu se nachází tramvajová zastávka, odkud se během několika minut pohodlně dostanete do centra Prahy. Hned naproti domu je supermarket Lidl a v okolí najdete vše, co potřebujete pro pohodlný městský život – restaurace, kavárny, obchody, školy i zdravotnická zařízení.

Byt se nachází ve 3. nadzemním podlaží udržovaného domu. Aktuálně je řešen jako 1+1 s prostornou kuchyní a samostatným pokojem, ale díky dispozici jej lze velmi jednoduše předělat na oblíbené 2+kk. To představuje skvělou příležitost, jak si byt přizpůsobit podle vlastních potřeb – ať už hledáte útulný domov, nebo investiční nemovitost s vysokým potenciálem pronájmu. Samotný byt je v původním stavu a čeká na rekonstrukci, což umožňuje budoucímu majiteli vytvořit si moderní bydlení přesně podle svých představ.

Velkou předností je prostorná lodžie o ploše 6,5 m², která je orientovaná do klidné slepé ulice a poskytuje příjemný prostor pro odpočinek. Dalším benefitem je praktická úložná skříň přímo na patře a k bytu náležející sklep o velikosti 5 m², který nabízí dostatek prostoru pro uskladnění věcí.

Lokalita Nad Ohradou je známá svým skvělým spojením městského života a zeleně. V těsné blízkosti se nachází oblíbený park Pražačka, který nabízí krásné výhledy na Prahu, množství zeleně i široké možnosti sportovního vyžití. Najdete zde sportovní areál, venkovní bazén, běžecké i cyklistické trasy, tenisové kurty a hřiště. Díky tomu se jedná o místo, kde můžete skloubit komfortní bydlení ve městě s možností aktivního odpočinku v přírodě.

Výhodou je také snadná dopravní dostupnost. Tramvajová zastávka se nachází doslova pár metrů od domu a během několika minut se dostanete do centra města, na metro i do dalších pražských čtvrtí. Lokalita je zároveň napojená na hlavní dopravní tahy, což zajišťuje rychlý výjezd z města.

Tento byt je ideální volbou pro ty, kteří hledají bydlení ve skvělé lokalitě s kompletní vybaveností, a zároveň ocení možnost přizpůsobit si interiér podle vlastního vkusu. Díky dispozici, lodžii, úložným prostorům a především poloze se jedná o nabídku, která má vysoký investiční potenciál a bude atraktivní i do budoucna.

Pokud hledáte byt s výbornou adresou, odkud budete mít vše doslova na dosah ruky, neváhejte se na nás obrátit. Rádi vám poskytneme více informací a domluvíme osobní prohlídku.

Parametry bytu

Cena
5 990 000 Kč /za nemovitost Spočítat hypotéku
Poznámka k ceně
včetně provize, včetně právního servisu
Aktualizováno
10. 10. 2025
Adresa
Nad Ohradou, Praha, Žižkov
ID
2025018
Stavba
Panelová
Stav objektu
Velmi dobrý
Patro
3.
Lokalita objektu
Centrum obce
Vlastnictví
Osobní
Užitná plocha
40 m2
Podlahová plocha
47 m2
Třída energetické náročnosti
D - Méně úsporná
Ukazatel energetické náročnosti
146 kWh/m2 za rok
Elektřina
230V
Plyn
Plynovod
Odpad
Veřejná kanalizace
Doprava
MHD
Voda
Vodovod
Zdroj teplé vody
Centrální dálkový ohřev
Sklep
Výtah

Kontaktovat makléře

Máte zájem o tento byt?

Tímto, v souladu s nařízením Evropského parlamentu a Rady (EU) 2016/679, v platném znění, prohlašuji, že mi je alespoň 16 let a uděluji tak svůj souhlas se zpracováním zadaných údajů (jméno, telefon, e-mail, ip adresa) společnosti B3 Technology, s.r.o., IČ: 07330600, se sídlem Novostavby 126/23, 435 11 Lom (správce dat), za účelem předání dotazu z tohoto formuláře Vámi vybranému inzerentovi a zpětného kontaktování mé osoby. Osobní údaje bude správce zpracovávat manuálně i automaticky přímo prostřednictvím svých zaměstnanců. Informace předané tímto formulářem budou uloženy v databázi správce maximálně po dobu 10 let. Odvolání souhlasu s uložením a zpracováním poskytnutých dat lze e-mailem na info@bydlisnami.cz. V případě podezření na neoprávněné použití Vámi poskytnutých údajů máte právo předat podnět k šetření Úřadu pro ochranu osobních údajů. Více informací
Chystáte se prodat nemovitost?
Pomůžeme Vám!

Inzerát si prohlédlo 0 lidí

Prodejce

Bc. Leo Kopecký, MBA

Bc. Leo Kopecký, MBA

Hlídací pes

Chcete dostávat emailem podobné nabídky prodeje bytů 1+1 v Praze 3?

Top nabídky

Podobné nemovitosti