Prodej činžovního domu, Petřvald - Petřvald 2-Petřvaldík, 609 m2

Petřvald 2-Petřvaldík

3 990 000 Kč /za nemovitost HYPOTÉKA od 17 833 Kč /za měsíc
Doporučené firmy v Petřvaldě

Informace k nemovitosti

Prodej nájemního domu, Petřvald - Petřvaldík

Dobrá cena, dobré místo, dobrý nápad!
Nabízíme Vám exkluzivní nemovitost, která má viditelný potenciál nájemního domu, avšak iniciativě se meze nekladou.
Budova sloužila dříve jako kulturák s tanečním sálem a místní restaurací, ale je již delší dobu zavřená a nevyužívaná.
Nyní čeká na svého nového majitele a šikovného architekta, který ji provede vkusnou rekonstrukcí, vdechne nápad a nový život tak, aby se stala opět pýchou obce.
Díky svému velkorysému prostoru, zajímavými proporcemi a stylovými stropy naplní sny nejen o luxusním bydlení.
Nachází se rovněž ve strategicky významné lokalitě v blízkosti největšího regionálního letiště v republice a poskytuje rychlé napojení do okolních měst, přičemž stále obklopená přírodou.
Doporučuji navštívit naše webové stránky, kde dohledáte kompletní fotogalerii, video i půdorysy.
S chutí do toho, půl je hotovo.

Parametry nemovitosti

Cena
3 990 000 Kč /za nemovitost Spočítat hypotéku
Aktualizováno
28. 11. 2025
Adresa
Petřvald 2-Petřvaldík
ID
923796
Stavba
Cihlová
Stav objektu
Před rekonstrukcí
Vybaveno
Ne
Lokalita objektu
Centrum obce
Vlastnictví
Osobní
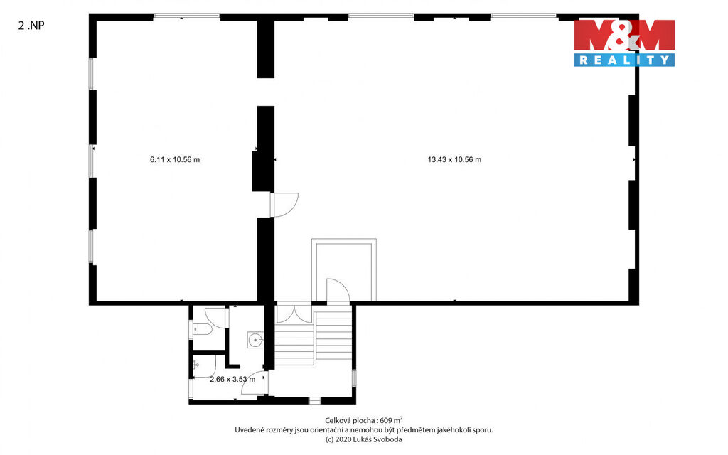
Užitná plocha
609 m2
Plocha pozemku
531 m2

Kontaktovat makléře

Realitní kancelář

Logo M&M reality

M&M reality

ulice Krakovská 583/9, Praha

Chystáte se prodat nemovitost?
Pomůžeme Vám!

Máte zájem o tuto nemovistost?

Tímto, v souladu s nařízením Evropského parlamentu a Rady (EU) 2016/679, v platném znění, prohlašuji, že mi je alespoň 16 let a uděluji tak svůj souhlas se zpracováním zadaných údajů (jméno, telefon, e-mail, ip adresa) společnosti B3 Technology, s.r.o., IČ: 07330600, se sídlem Novostavby 126/23, 435 11 Lom (správce dat), za účelem předání dotazu z tohoto formuláře Vámi vybranému inzerentovi a zpětného kontaktování mé osoby. Osobní údaje bude správce zpracovávat manuálně i automaticky přímo prostřednictvím svých zaměstnanců. Informace předané tímto formulářem budou uloženy v databázi správce maximálně po dobu 10 let. Odvolání souhlasu s uložením a zpracováním poskytnutých dat lze e-mailem na info@bydlisnami.cz. V případě podezření na neoprávněné použití Vámi poskytnutých údajů máte právo předat podnět k šetření Úřadu pro ochranu osobních údajů. Více informací
Chystáte se prodat nemovitost?
Pomůžeme Vám!

Inzerát si prohlédlo 4 lidí

Prodejce

Lukáš Svoboda

Lukáš Svoboda

Hlídací pes

Chcete dostávat emailem podobné nabídky prodeje činžovních domů v Petřvaldě (okr. Nový Jičín)?