Sukorady
(, Kauce 70.000 Kč, provize RK 35.000 Kč, měsíčně: voda 1.600 Kč, elektřina 4.000 Kč, internet 500 Kč)
Sukorady, pronájem domu 4+kk 109 m2 po kompletní rekonstrukci s velkým pozemkem 2.000 m2
Chcete bydlet v kompletně zrekonstruovaném domě na vesnici s rychlým dojezdem do Mladé Boleslavi? Toužíte po vlastním domku s velkou zahradou, ale nechce se Vám kupovat vlastní nemovitost? Pokud jste si odpověděli dvakrát ano, čtete ten správný inzerát. 
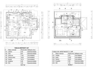
Nově mám pro Vás v nabídce tento krásný, kompletně zrekonstruovaný domek o dispozici 4+kk s velkou zahradou. Na domě se aktuálně dokončuje kompletní rekonstrukce, která bude dokončena cca do 14 dnů. Rodinný dům je kompletně zateplen, má nová plastová okna, tepelné čerpadlo s podlahovým vytápěním + pro atmosféru krbová kamna v obývacím pokoji. Samozřejmostí je nové vedení vody, elektřiny i odpadů, vinylové podlahy, nové štuky s výmalbou, kuchyňská linka na míru včetně vestavěných spotřebičů. 
K domu náleží prostorná zahrada o celkové ploše 2000 m2, kde se nachází i garáž a parkovací stání pro několik aut.
Dům je vybavený kuchyňskou linkou včetně spotřebičů, v obývacím pokoji se nachází sedací souprava se stolkem a jídelní stůl se židlemi. V každém pokoji je jedna šatní skříň a v koupelně je k dispozici pračka.
Měsíční náklady vychází přibližně na 6.100,- Kč (voda a stočné 1.600 Kč, elektřina 4.000 Kč, internet 500 Kč). Rodinný dům má energetickou náročnost budovy třídy C (blížící se ke třídě B). Vratná kauce je ve výši dvou nájmů, tedy 70.000,- Kč a poplatek RK je ve výši 35.000,- Kč. Majitelé mají představu dlouhodobého pronájmu v řádu několika let. Aktuálně v domě bydlí nájemci, kterým končí nájemní smlouva. Datum nastěhování dle domluvy.
Obec Sukorady se nachází v okrese Mladá Boleslav, kraj Středočeský. Rozkládá se asi deset kilometrů východně od Mladé Boleslavi. Žije zde 387 obyvatel. V obci naleznete restauraci, prodej zmrzliny a také několik společností (např. prodej svítidel, sportovních potřeb a prodejnu krbů).
V případě dalších dotazů se na mě neváhejte obrátit.
RS HOUSE - reality a ubytování
Chotěšice 61, Chotěšice
Máte zájem o tento dům?
Inzerát si prohlédlo 1 lidí
 
                                Alena Šulcová
Chcete dostávat emailem podobné nabídky pronájmu rodinných domů v Sukoradech (okr. Mladá Boleslav)?