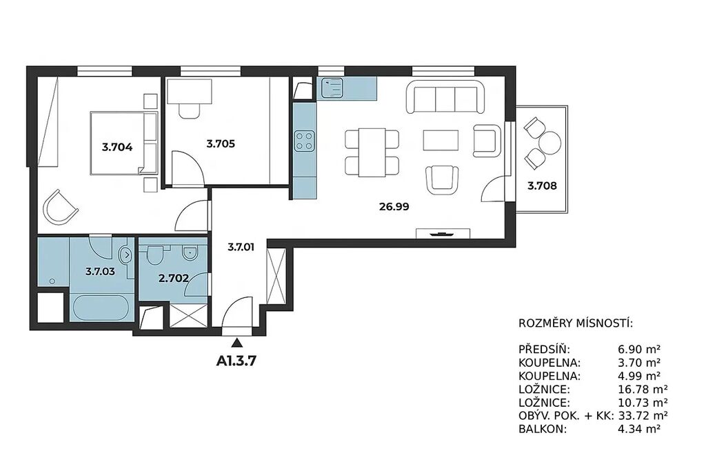
Prodej bytu 3+kk, Praha - Stodůlky, Za Mototechnou, 81 m2

Za Mototechnou, Praha, Stodůlky

11 900 000 Kč /za nemovitost HYPOTÉKA od 53 186 Kč /za měsíc
Doporučené firmy v Praze 5

Stěhovací služby

Výkup a prodej starého nábytku

Informace k bytu

Prodej bytu 3+kk s balkonem, sklepem a parkovacím stáním – Praha 5, ul. Za Mototechnou

Nabízíme k prodeji moderní byt o dispozici 3+kk v novostavbě projektu Nad Motolským hájem, situovaný v klidné části Prahy 5 – Motol. Byt se nachází v atraktivní lokalitě s výbornou dostupností do centra a kompletní občanskou vybaveností v okolí. Součástí nabídky je balkon s výhledem na Prahu, sklepní kóje a vlastní podzemní parkovací stání umístěné přímo naproti výtahu, což výrazně usnadňuje každodenní využívání.

Interiér bytu je navržen v minimalistickém stylu s důrazem na světlo, prostor a funkčnost. Obývací pokoj s kuchyňským koutem je propojen s balkonem, který nabízí příjemné posezení s výhledem do zeleně i na město. Kuchyně je vybavena moderními vestavěnými spotřebiči a výrazným barevným obkladem. Ložnice i další pokoj jsou světlé, s dostatkem úložného prostoru. V bytě se nachází dvě koupelny – jedna s vanou, druhá se sprchovým koutem, což výrazně zvyšuje komfort pro rodinu i návštěvy. V předsíni se nachází vestavěné skříně a zrcadlové dveře, které opticky zvětšují prostor.

Byt je vybaven plovoucími podlahami, izolačními dvojskly, bezpečnostními dveřmi, domovním telefonem, přípravou pro automatickou pračku a dalšími prvky standardního vybavení. K bytu náleží sklepní kóje a parkovací stání v garáži s dálkovým ovládáním.

Dům má dva samostatné vstupy, což zajišťuje pohodlný přístup z různých stran objektu. K dispozici jsou také dvě kolárny a samostatná místnost pro uložení bobů či sportovního vybavení, což ocení zejména rodiny s dětmi nebo aktivní obyvatelé.

Lokalita vyniká klidným prostředím plným zeleně, v blízkosti se nachází autobusová zastávka s rychlým spojením na metro B (Stodůlky, Hůrka, Nové Butovice). V okolí jsou školy, školky, lékárny, nemocnice, obchody, restaurace, golfové hřiště i dětská hřiště.

V případě zájmu o prohlídku nebo více informací nás neváhejte kontaktovat. Tento byt představuje ideální kombinaci moderního bydlení, přírody a městské dostupnosti.

Parametry bytu

Cena
11 900 000 Kč /za nemovitost Spočítat hypotéku
Aktualizováno
23. 11. 2025
Adresa
Za Mototechnou, Praha, Stodůlky
ID
40
Stavba
Smíšená
Stav objektu
Velmi dobrý
Patro
3. z 5
Vlastnictví
Osobní
Užitná plocha
81 m2
Třída energetické náročnosti
C - Úsporná
Elektřina
230V
Odpad
Veřejná kanalizace
Komunikace
Asfaltová
Doprava
Vlak, Dálnice, Silnice, MHD, Autobus
Voda
Vodovod
Balkon
Sklep
Výtah
Bezbarierový přístup
Parkování

Kontaktovat makléře

Máte zájem o tento byt?

Tímto, v souladu s nařízením Evropského parlamentu a Rady (EU) 2016/679, v platném znění, prohlašuji, že mi je alespoň 16 let a uděluji tak svůj souhlas se zpracováním zadaných údajů (jméno, telefon, e-mail, ip adresa) společnosti B3 Technology, s.r.o., IČ: 07330600, se sídlem Novostavby 126/23, 435 11 Lom (správce dat), za účelem předání dotazu z tohoto formuláře Vámi vybranému inzerentovi a zpětného kontaktování mé osoby. Osobní údaje bude správce zpracovávat manuálně i automaticky přímo prostřednictvím svých zaměstnanců. Informace předané tímto formulářem budou uloženy v databázi správce maximálně po dobu 10 let. Odvolání souhlasu s uložením a zpracováním poskytnutých dat lze e-mailem na info@bydlisnami.cz. V případě podezření na neoprávněné použití Vámi poskytnutých údajů máte právo předat podnět k šetření Úřadu pro ochranu osobních údajů. Více informací
Chystáte se prodat nemovitost?
Pomůžeme Vám!

Inzerát si prohlédlo 55 lidí

Prodejce

Ing. Jan Toupal s.r.o.

Ing. Jan Toupal s.r.o.

Hlídací pes

Chcete dostávat emailem podobné nabídky prodeje bytů 3+kk v Praze 5?

Podobné nemovitosti