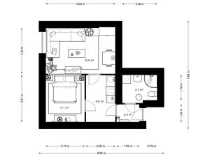
Prodej bytu 2+kk, Praha - Strašnice, Za strašnickou vozovnou, 38 m2 (ID: 2457093)

Za Strašnickou vozovnou, Praha, Strašnice

4 890 000 Kč /za nemovitost HYPOTÉKA od 21 855 Kč /za měsíc
Doporučené firmy v Praze 10

Stěhovací služby

Výkup a prodej starého nábytku

Informace k bytu

Nabízím vám ke koupi ateliér o dispozici 2+kk, který právě pošel kompletní nákladnou rekonstrukcí. Plovoucí podlahy, velkoformátová dlažba, koupelna se sprchovým koutem, ústřední etážové topení, nové LED osvětlení, izolace, rozvody elektro a veškeré instalace, plastová okna atd. Přesto, že se jednotka nachází ve sníženém přízemí, je zde dostatek denního světla a je uzpůsobena k bydlení. Praktická dispozice - dvě samostatné (neprůchozí) místnosti, koupelna se sprchovým koutem a WC. Ateliér se nachází v udržovaném funkcionalistickém činžovním domě na rozhraní Strašnic a Vinohrad, jen 2 min. od Vinohradské ul. a zastávky tramvaje a 5 min. od metra Strašnická. V případě, že hledáte prostory pro vlastní bydlení nebo podnikání, je pro vás náš ateliér ideální volbou. Pokud hledáte čistě investiční nemovitost, lze převzít i se spolehlivým a platícím nájemcem. Je zde možnost zakoupit současně i sousední ateliér o dispozici 2+kk a ploše 46.2 m2. Možnost financování prostřednictvím hypotečního úvěru. Pro více informací mě neváhejte kontaktovat, rád vám případné dotazy zodpovím osobně.

Parametry bytu

Cena
4 890 000 Kč /za nemovitost Spočítat hypotéku
Aktualizováno
26. 10. 2025
Adresa
Za Strašnickou vozovnou, Praha, Strašnice
ID
N139629
Stavba
Cihlová
Stav objektu
Po rekonstrukci
Vybaveno
Částečně
Lokalita objektu
Klidná část obce
Vlastnictví
Osobní
Užitná plocha
38 m2
Podlahová plocha
38 m2
Třída energetické náročnosti
G - Mimořádně nehospodárná
Elektřina
230V
Topení
Ústřední elektrické
Telekomunikace
Telefon, Internet, Kabelová televize
Doprava
Silnice, MHD
Voda
Vodovod
Výtah

Kontaktovat makléře

Máte zájem o tento byt?

Tímto, v souladu s nařízením Evropského parlamentu a Rady (EU) 2016/679, v platném znění, prohlašuji, že mi je alespoň 16 let a uděluji tak svůj souhlas se zpracováním zadaných údajů (jméno, telefon, e-mail, ip adresa) společnosti B3 Technology, s.r.o., IČ: 07330600, se sídlem Novostavby 126/23, 435 11 Lom (správce dat), za účelem předání dotazu z tohoto formuláře Vámi vybranému inzerentovi a zpětného kontaktování mé osoby. Osobní údaje bude správce zpracovávat manuálně i automaticky přímo prostřednictvím svých zaměstnanců. Informace předané tímto formulářem budou uloženy v databázi správce maximálně po dobu 10 let. Odvolání souhlasu s uložením a zpracováním poskytnutých dat lze e-mailem na info@bydlisnami.cz. V případě podezření na neoprávněné použití Vámi poskytnutých údajů máte právo předat podnět k šetření Úřadu pro ochranu osobních údajů. Více informací
Chystáte se prodat nemovitost?
Pomůžeme Vám!

Inzerát si prohlédlo 1 lidí

Prodejce

Jan Kašpar

Jan Kašpar

Hlídací pes

Chcete dostávat emailem podobné nabídky prodeje bytů 2+kk v Praze 10?

Podobné nemovitosti