Prodej mobilheimu, Broumy, K Lukárně, 40 m2 (ID: 2457618)

K Lukárně, Broumy

800 000 Kč /za nemovitost HYPOTÉKA od 3 576 Kč /za měsíc

(Cena je uvedena včetně provize a právního servisu RK.)

Doporučené firmy v Broumech

Informace k nemovitosti

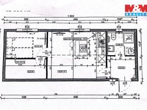
Prodej mobilheimu, 40 m², Broumy, ul. K Lukárně

Nabízíme k prodeji moderní mobilheim - novostavbu z roku 2023, který se nyní nachází v klidné části obce Broumy. Tato nemovitost nabízí komfortní bydlení s užitnou plochou 40m² a je ideálním řešením pro jednotlivce či dvojici hledající klidné bydlení s možností přemístit si mobilheim do své lokality, pozemek není předmětem prodeje. Mobilheim je postaven z kvalitní dřevěné konstrukce firmou Lavaro Hause. Dispozičně se skládá ze dvou místností + chodba a soc. zázemí, které poskytují dostatek prostoru pro obývací pokoj s kuchyní a samostatnou ložnici. Součástí prodeje je vybavená kuchyňská linka se spotřebiči - vestavná lednice s mrazákem, myčka, elektrická trouba, digestoř a varná deska. Mobilheim má dvě francouzská okna se vstupem na terasu, podlahové elektrické vytápění. Nemovitost je ve velmi dobrém stavu s možností napojení na vodovodní řád a kanalizaci. Pro více informací kontaktujte makléře a domluvte si termín prohlídky.

Parametry nemovitosti

Cena
800 000 Kč /za nemovitost Spočítat hypotéku
Poznámka k ceně
Cena je uvedena včetně provize a právního servisu RK.
Aktualizováno
28. 10. 2025
Adresa
K Lukárně, Broumy
ID
884288
Stavba
Dřevěná
Stav objektu
Velmi dobrý
Vybaveno
Částečně
Druh objektu
Samostatný
Lokalita objektu
Klidná část obce
Vlastnictví
Osobní
Užitná plocha
40 m2

Kontaktovat makléře

Realitní kancelář

Logo M&M reality

M&M reality

ulice Krakovská 583/9, Praha

Chystáte se prodat nemovitost?
Pomůžeme Vám!

Máte zájem o tuto nemovistost?

Tímto, v souladu s nařízením Evropského parlamentu a Rady (EU) 2016/679, v platném znění, prohlašuji, že mi je alespoň 16 let a uděluji tak svůj souhlas se zpracováním zadaných údajů (jméno, telefon, e-mail, ip adresa) společnosti B3 Technology, s.r.o., IČ: 07330600, se sídlem Novostavby 126/23, 435 11 Lom (správce dat), za účelem předání dotazu z tohoto formuláře Vámi vybranému inzerentovi a zpětného kontaktování mé osoby. Osobní údaje bude správce zpracovávat manuálně i automaticky přímo prostřednictvím svých zaměstnanců. Informace předané tímto formulářem budou uloženy v databázi správce maximálně po dobu 10 let. Odvolání souhlasu s uložením a zpracováním poskytnutých dat lze e-mailem na info@bydlisnami.cz. V případě podezření na neoprávněné použití Vámi poskytnutých údajů máte právo předat podnět k šetření Úřadu pro ochranu osobních údajů. Více informací
Chystáte se prodat nemovitost?
Pomůžeme Vám!

Inzerát si prohlédlo 0 lidí

Prodejce

Miroslava Míková

Miroslava Míková

Hlídací pes

Chcete dostávat emailem podobné nabídky prodeje mobilheimů v Broumech?