Prodej kanceláře, Praha - Nusle, Pod pramenem, 616 m2

Pod pramenem, Praha, Nusle

48 990 000 Kč /za nemovitost HYPOTÉKA od 218 956 Kč /za měsíc

(včetně provize, včetně právního servisu)

Doporučené firmy v Praze

Stěhovací služby

Výkup a prodej starého nábytku

Informace k nemovitosti

Reprezentativní sídlo vaší firmy v srdci Prahy 4.
Moderní kancelářská budova s charakterem, stylem a promyšleným zázemím, která splňuje nároky i těch nejnáročnějších firem. Kombinuje elegantní design s praktickým využitím každého metru a vytváří prostor, kde se dobře pracuje i reprezentuje.

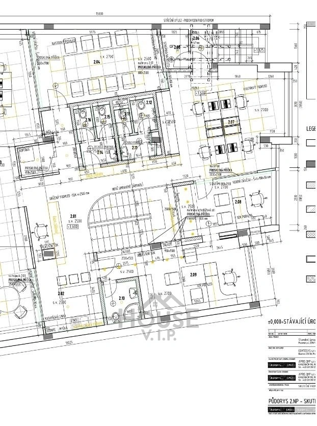
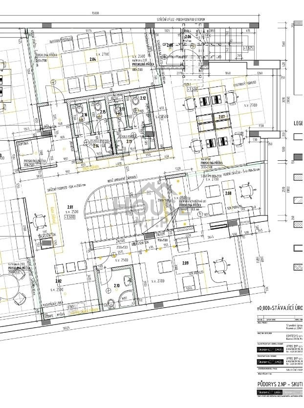
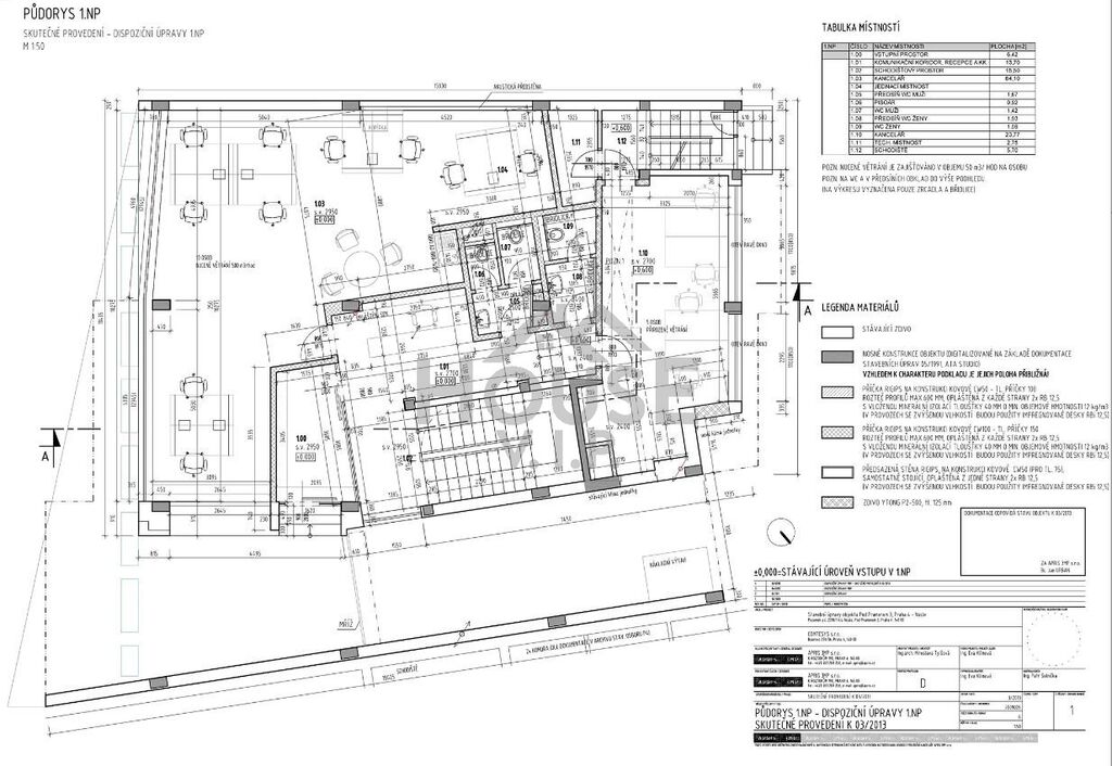
Třípodlažní objekt o celkové užitné ploše 616 m² prošel v roce 2009 kompletní rekonstrukcí a dnes nabízí komfort, moderní technologie i dostatek denního světla. V budově se nachází 10 kanceláří s celkovou plochou 372 m², které lze díky otevřenému uspořádání dále členit dle potřeb budoucího majitele. K dispozici je také 12 skladových a technických místností (131 m²), 8 toalet, 1 koupelna a komunikační prostory o rozloze 113 m².

V přízemí se nachází elegantní recepce, v patře zasedací místnost a čajová kuchyňka, v suterénu pak jídelna a společenské zázemí pro zaměstnance. Interiéry jsou vybaveny zátěžovými koberci, celoskleněnými příčkami, klimatizací, žaluziemi a bezdotykovými bateriemi v sanitárních prostorech. Celý objekt doplňuje nová skleněná fasáda, která budově dodává reprezentativní vzhled a velké množství světla.

Technicky je objekt plně zasíťován (PC rozvody), vytápění i ohřev vody zajišťuje centrální kotelna, samozřejmostí je bezpečnostní systém s možností napojení na PCO. K dispozici je 5 parkovacích stání na vlastním pozemku a 2 samostatné garáže, které poskytují pohodlí i bezpečné parkování.

Nemovitost se nachází v Praze 4 - Nuslích, v ulici Pod Pramenem, v klidné části s vynikající dopravní dostupností a veškerou občanskou vybaveností. Na dosah je metro, MHD, magistrála i centrum města, což z ní činí ideální místo pro sídlo společnosti, firemní pobočku nebo investici do stabilní nemovitosti s výborným výnosem.

Budova je nabízena formou převodu 100 % akcií účelově založené akciové společnosti, která nevykonává žádnou jinou činnost.

Neváhejte mě kontaktovat a domluvte si osobní prohlídku. Budova na první pohled zaujme, ale teprve naživo oceníte, jak precizně je promyšlená do posledního detailu.

Parametry nemovitosti

Cena
48 990 000 Kč /za nemovitost Spočítat hypotéku
Poznámka k ceně
včetně provize, včetně právního servisu
Aktualizováno
20. 3. 2026
Adresa
Pod pramenem, Praha, Nusle
ID
01029
Stavba
Panelová
Stav objektu
Velmi dobrý
Vybaveno
Částečně
Typ objektu
Patrový
Druh objektu
Řadový
Lokalita objektu
Rušná část obce
Užitná plocha
616 m2
Zastavěná plocha
240 m2
Podlahová plocha
616 m2
Plocha pozemku
247 m2
Třída energetické náročnosti
G - Mimořádně nehospodárná
Elektřina
230V, 400V
Odpad
Veřejná kanalizace
Topení
Ústřední dálkové, Jiné
Komunikace
Dlážděná
Telekomunikace
Telefon, Internet
Doprava
Vlak, Silnice, MHD, Autobus
Garáž
Výtah
Parkování

Kontaktovat makléře

Máte zájem o tuto nemovistost?

Tímto, v souladu s nařízením Evropského parlamentu a Rady (EU) 2016/679, v platném znění, prohlašuji, že mi je alespoň 16 let a uděluji tak svůj souhlas se zpracováním zadaných údajů (jméno, telefon, e-mail, ip adresa) společnosti B3 Technology, s.r.o., IČ: 07330600, se sídlem Novostavby 126/23, 435 11 Lom (správce dat), za účelem předání dotazu z tohoto formuláře Vámi vybranému inzerentovi a zpětného kontaktování mé osoby. Osobní údaje bude správce zpracovávat manuálně i automaticky přímo prostřednictvím svých zaměstnanců. Informace předané tímto formulářem budou uloženy v databázi správce maximálně po dobu 10 let. Odvolání souhlasu s uložením a zpracováním poskytnutých dat lze e-mailem na info@bydlisnami.cz. V případě podezření na neoprávněné použití Vámi poskytnutých údajů máte právo předat podnět k šetření Úřadu pro ochranu osobních údajů. Více informací
Chystáte se prodat nemovitost?
Pomůžeme Vám!

Inzerát si prohlédlo 57 lidí

Prodejce

Ilona Chládková

Ilona Chládková

Hlídací pes

Chcete dostávat emailem podobné nabídky prodeje kanceláří v Praze?

Podobné nemovitosti