Prodej bytu 3+kk, Trutnov - Horní Staré Město, 111 m2

Trutnov, Horní Staré Město

6 499 000 Kč /za nemovitost HYPOTÉKA od 29 047 Kč /za měsíc

(Cena včetně právního servisu, advokátní úschovy i provize RK)

Doporučené firmy v Trutnově

Pojištění a finance

Informace k bytu

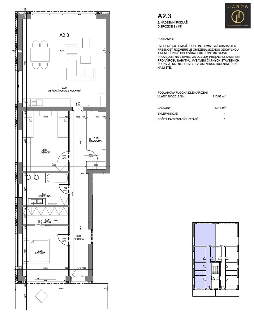
Nabízíme k prodeji byt 3+kk o celkové rozloze 111 m2 v 2NP, balkon (12,75 m2) a sklepní prostor u vlastního parkovacího stání v projektu Rezidence Zámecký Vrch, který je veden jako ateliér. Nemovitost je navržena ve vysokém ekologickém a ekonomickém standardu, což se projeví i na vašich nákladech za energie. Energetická třída domu je nejvyšší A dle energetického průkazu domu. Každá bytová jednotka je osazena komínovým tělesem s možností umístění krbové vložky. Střecha je osazena solárními panely – energetická soběstačnost domu. Tvar a vzhled této uzavřené rezidence se naprosto vymyká současné typické výstavbě domů. Součástí nemovitosti jsou zahrady, parkovací stání k jednotlivým bytovým jednotkám (včetně možnosti dobíjení elektrovozidel) s možností přikoupení dalšího parkovacího stání, studna, aj. Tato nabídka je ideální pro ty, kteří hledají moderní a elegantní bydlení ve výjimečné lokalitě.
Výhodou nových majitelů je, že před dokončením stavby lze případné nadstandardní prvky - úpravy a vybavení interiérů přímo konzultovat s naším stavitelem.
Tato nemovitost nabízí budoucím nabyvatelům vysoký komfort bydlení ve zcela atypickém stavebním slohu s nejmodernějšími prvky bydlení. Tento komplex o 3 domech je zasazen do malebné okolní přírody podhůří Krkonošských hor severovýchodních Čech. Novostavby se nachází v klidné čtvrti Dolního Starého Města s dobrou dopravní dostupností do centra města. Výhledy z jednotlivých bytových jednotek nás upoutají okolní krásnou horskou scenérií. Světlé a prostorné pokoje nabízejí dostatek prostoru pro vaše pohodlí. Vychutnejte si relaxaci na balkóně s nádherným výhledem na okolní zelené horské scenérie.
Noví majitelé v letních měsících mohou podnikat cyklovýlety a toulky ve zdejších lesích a v zimě naopak je na dosah mnoho zimních Krkonošských letovisek (např. Vrchlabí, Jánské Lázně, Pec pod Sněžkou, aj.).
Termíny dostavby jednotlivých domů, předání bytových jednotek včetně kolaudace a podrobné informace konzultujte s naším makléřem. Naši finanční poradci zajistí financování vašeho bydlení.

Parametry bytu

Cena
6 499 000 Kč /za nemovitost Spočítat hypotéku
Poznámka k ceně
Cena včetně právního servisu, advokátní úschovy i provize RK
Aktualizováno
10. 12. 2025
Adresa
Trutnov, Horní Staré Město
ID
03724
Stavba
Cihlová
Stav objektu
Novostavba
Patro
2.
Vlastnictví
Osobní
Užitná plocha
111 m2
Třída energetické náročnosti
A - Mimořádně úsporná
Ukazatel energetické náročnosti
45 kWh/m2 za rok

Kontaktovat makléře

Máte zájem o tento byt?

Tímto, v souladu s nařízením Evropského parlamentu a Rady (EU) 2016/679, v platném znění, prohlašuji, že mi je alespoň 16 let a uděluji tak svůj souhlas se zpracováním zadaných údajů (jméno, telefon, e-mail, ip adresa) společnosti B3 Technology, s.r.o., IČ: 07330600, se sídlem Novostavby 126/23, 435 11 Lom (správce dat), za účelem předání dotazu z tohoto formuláře Vámi vybranému inzerentovi a zpětného kontaktování mé osoby. Osobní údaje bude správce zpracovávat manuálně i automaticky přímo prostřednictvím svých zaměstnanců. Informace předané tímto formulářem budou uloženy v databázi správce maximálně po dobu 10 let. Odvolání souhlasu s uložením a zpracováním poskytnutých dat lze e-mailem na info@bydlisnami.cz. V případě podezření na neoprávněné použití Vámi poskytnutých údajů máte právo předat podnět k šetření Úřadu pro ochranu osobních údajů. Více informací
Chystáte se prodat nemovitost?
Pomůžeme Vám!
Theleadway banner

Inzerát si prohlédlo 37 lidí

Prodejce

Miroslav Průša

Miroslav Průša

Hlídací pes

Chcete dostávat emailem podobné nabídky prodeje bytů 3+kk v Trutnově?

Podobné nemovitosti