Prodej bytu 3+kk, Brno, Rybářská, 88 m2

Rybářská, Staré Brno

13 468 000 Kč /za nemovitost HYPOTÉKA od 60 194 Kč /za měsíc
Doporučené firmy v Brně

Informace k bytu

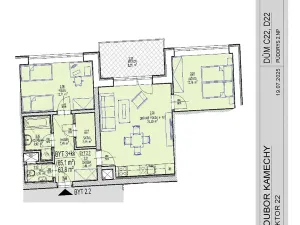
V rámci druhé etapy moderního rezidenčního projektu Rezidence Rybářka nabízíme k prodeji byt o dispozici 3+kk s podlahovou plochou 94,4 m², situovaný v 6. nadzemním podlaží osmipodlažní novostavby. Tento byt je ideální volbou pro ty, kteří hledají komfortní bydlení v centru města.

Dispozice bytu zahrnuje vstupní chodbu (13,9 m²), obývací pokoj s kuchyňským koutem (26,4 m²), ložnici (23,4 m²), pokoj (12,3 m²), komoru (2,4 m²), koupelnu s WC (3,5 m²) samostatnou koupelnu (5,4 m²) a WC (1,5 m²). K bytu dále náleží balkon o velikosti 10,8 m², která nabízí příjemné soukromí a prostor pro relaxaci.

K jednotce je možné dokoupit sklep za cenu 60.000 Kč/m² a kryté parkovací stání za 790.000 Kč.

Rezidence Rybářka se nachází v atraktivní lokalitě nedaleko centra Brna, v těsné blízkosti nově vybudované náplavky u řeky Svratky. Procházky podél vody, ranní běh nebo večerní drink na břehu – to vše máte doslova pár kroků od domova. Lokalita zároveň nabízí výbornou dostupnost do centra města, kompletní občanskou vybavenost a blízkost přírody.
Projekt klade důraz na moderní technologie, úsporné řešení vytápění a vysoký standard provedení. Komfortní bydlení doplňuje možnost parkování v podzemní garáži a příjemné prostředí zeleného vnitrobloku.

Máte zájem o více informací? Neváhejte nás kontaktovat – rádi vám představíme nejen tento byt, ale i další dostupné jednotky v projektu.

Parametry bytu

Cena
13 468 000 Kč /za nemovitost Spočítat hypotéku
Aktualizováno
25. 11. 2025
Adresa
Rybářská, Staré Brno
ID
C2_618
Stavba
Smíšená
Stav objektu
Novostavba
Patro
6.
Vlastnictví
Osobní
Užitná plocha
88 m2
Balkon

Kontaktovat makléře

Máte zájem o tento byt?

Tímto, v souladu s nařízením Evropského parlamentu a Rady (EU) 2016/679, v platném znění, prohlašuji, že mi je alespoň 16 let a uděluji tak svůj souhlas se zpracováním zadaných údajů (jméno, telefon, e-mail, ip adresa) společnosti B3 Technology, s.r.o., IČ: 07330600, se sídlem Novostavby 126/23, 435 11 Lom (správce dat), za účelem předání dotazu z tohoto formuláře Vámi vybranému inzerentovi a zpětného kontaktování mé osoby. Osobní údaje bude správce zpracovávat manuálně i automaticky přímo prostřednictvím svých zaměstnanců. Informace předané tímto formulářem budou uloženy v databázi správce maximálně po dobu 10 let. Odvolání souhlasu s uložením a zpracováním poskytnutých dat lze e-mailem na info@bydlisnami.cz. V případě podezření na neoprávněné použití Vámi poskytnutých údajů máte právo předat podnět k šetření Úřadu pro ochranu osobních údajů. Více informací
Chystáte se prodat nemovitost?
Pomůžeme Vám!

Inzerát si prohlédlo 63 lidí

Prodejce

Nikola Verčíková

Nikola Verčíková

Hlídací pes

Chcete dostávat emailem podobné nabídky prodeje bytů 3+kk v Brně?

Podobné nemovitosti