Prodej pozemku, Šestajovice, Martinů, 2016 m2

Martinů, Šestajovice

Doporučené firmy v Šestajovicích

Informace k pozemku

Prodej stavebního pozemku 2016 m²

Stavební pozemek – Šestajovice u Prahy, ul. Martinů
Nabízíme k prodeji atraktivní stavební pozemek o celkové výměře 2 016 m², nacházející se v klidné části obce Šestajovice (Praha-východ), v ulici Martinů.
Jedná se o velmi vyhledávanou lokalitu s příjemnou atmosférou rodinné zástavby, v dosahu přírody a zároveň s perfektní dostupností do Prahy.
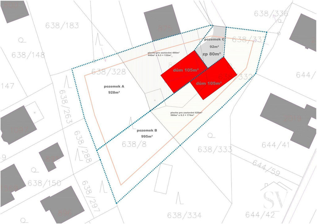
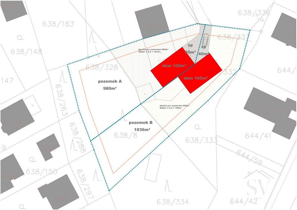
Pozemek je dle územního plánu vedený jako plocha pro nízkopodlažní rodinné bydlení (BI) a je tak ideální jak pro výstavbu rodinného domu, tak i pro menší developerský záměr dvou domů.
Celková plocha umožňuje rozdělení na dvě části – pozemek A o výměře 980 m² a pozemek B o výměře 1 036 m² – přičemž obě parcely splňují podmínky územního plánu.
Využití a parametry pozemku
V souladu s územním plánem lze zastavět až 30 % celkové plochy, tedy přibližně 333 m², což odpovídá výstavbě dvou rodinných domů o zastavěné ploše kolem 105 m² každý. Nové rodinné domy mohou mít maximálně dvě nadzemní podlaží a podkroví nebo rovnou střechu, čímž zůstane zachován jednotný charakter okolní zástavby. Pozemek s částí vzrostlých stromů nabízí naprosté soukromí i přirozený kontakt s přírodou. K dispozici je architektonické zpracování návrhu, které řeší umístění dvou samostatných rodinných domů se zahradami, zpevněnými plochami a příjezdovou cestou. Pro lepší představu je k nabídce připravena i vizualizace, která bude součástí videoprezentace.
Přístup a komunikace
Přístup k pozemku je právně zajištěn věcným břemenem chůze a jízdy, které je řádně zapsáno v katastru nemovitostí.
Toto věcné břemeno zaručuje budoucím vlastníkům plnohodnotný a trvalý přístup z veřejné komunikace Martinů.
Cesta je současně vyznačena v geometrickém plánu a je připravená k doplnění zpevněného povrchu dle finálního řešení.
Právní jistota přístupu je potvrzena i ve smlouvě o zřízení věcného břemene, která je součástí podkladů.
Příprava území a inženýrské sítě
Pozemek se nachází v plně zastavitelném území obce Šestajovice, které je součástí stabilizované zóny rodinných domů.
Všechny inženýrské sítě jsou v dosahu – elektřina, vodovod, kanalizace i plyn se nacházejí v přilehlé ulici Martinů.
Území bylo odděleno z původního většího celku a připraveno pro výstavbu, včetně plánované parcelace a vyznačení přístupové cesty.
K dispozici jsou také geodetické výkresy a situační plány v měřítkách 1:250 a 1:500, které přehledně zachycují polohu plánované zástavby i technické napojení.
Lokalita a okolí
Obec Šestajovice patří dlouhodobě mezi nejvyhledávanější lokality v dojezdové vzdálenosti od Prahy.
Kombinuje klidné prostředí pro rodinné bydlení s kompletní občanskou vybaveností – v místě se nachází základní i mateřská škola, pošta, lékaři, obchody, restaurace i sportovní zařízení.
V blízkosti je Klánovický les, cyklostezky a rozsáhlé přírodní zázemí.
Dopravní dostupnost je vynikající – autem cca 15 minut na metro B – Černý Most, případně přímé autobusové spojení PID.

Parametry pozemku

Cena
18 900 000 Kč Spočítat hypotéku
Aktualizováno
9. 11. 2025
Adresa
Martinů, Šestajovice
ID
00084
Plocha pozemku
2016 m2

Kontaktovat makléře

Máte zájem o tento pozemek?

Tímto, v souladu s nařízením Evropského parlamentu a Rady (EU) 2016/679, v platném znění, prohlašuji, že mi je alespoň 16 let a uděluji tak svůj souhlas se zpracováním zadaných údajů (jméno, telefon, e-mail, ip adresa) společnosti B3 Technology, s.r.o., IČ: 07330600, se sídlem Novostavby 126/23, 435 11 Lom (správce dat), za účelem předání dotazu z tohoto formuláře Vámi vybranému inzerentovi a zpětného kontaktování mé osoby. Osobní údaje bude správce zpracovávat manuálně i automaticky přímo prostřednictvím svých zaměstnanců. Informace předané tímto formulářem budou uloženy v databázi správce maximálně po dobu 10 let. Odvolání souhlasu s uložením a zpracováním poskytnutých dat lze e-mailem na info@bydlisnami.cz. V případě podezření na neoprávněné použití Vámi poskytnutých údajů máte právo předat podnět k šetření Úřadu pro ochranu osobních údajů. Více informací
Chystáte se prodat nemovitost?
Pomůžeme Vám!

Inzerát si prohlédlo 0 lidí

Prodejce

Stanislava Vondráková

Stanislava Vondráková

Hlídací pes

Chcete dostávat emailem podobné nabídky prodeje pozemků v Šestajovicích (okr. Praha-východ)?