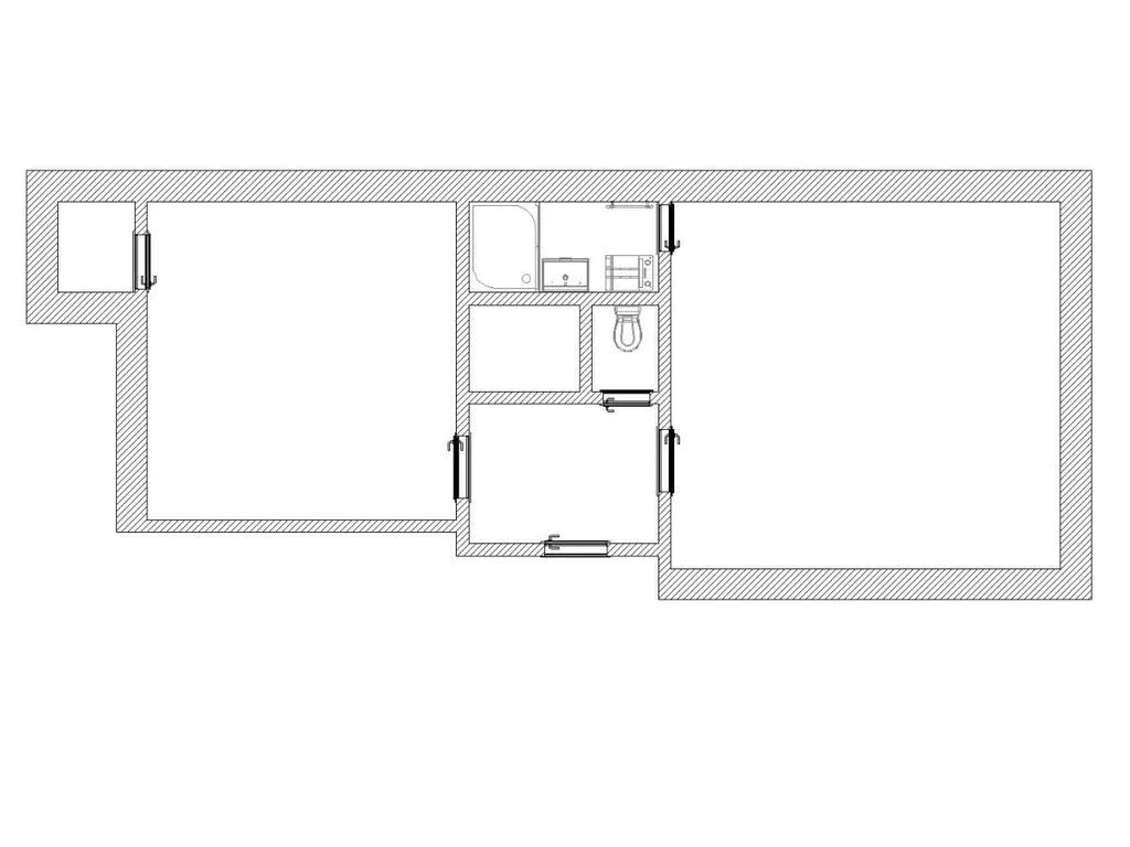
Prodej bytu 1+1, Pardubice - Zelené Předměstí, Železničního pluku, 49 m2

Železničního pluku, Pardubice, okres pardubice, Pardubice V

Rezervováno
4 190 000 Kč /za nemovitost HYPOTÉKA od 18 727 Kč /za měsíc
Doporučené firmy v Pardubicích

Informace k bytu

R E Z E R V O V Á N O ! Byt 1+1 s možností úpravy na 2+kk, cihla, sklep, Pardubice – Železničního pluku
Hledáte byt, který si můžete přetvořit podle svých představ – pro sebe, nebo jako investici? Tento byt v cihlovém domě na ulici Železničního pluku v Pardubicích nabízí přesně takovou příležitost.

Dispozice 1+1 umožňuje úpravu na 2+kk. Byt se nachází v přízemí, cca 49m2, sklep (cca 7 m²) a praktickou komoru přímo v bytě. Koupelna je vybavena vanou, toaleta je samostatná. Topení zajišťují plynová kamna WAW, ohřev vody bojler. Provozní náklady jsou přitom velmi nízké – pouhých 1 600 Kč měsíčně + elektřina a plyn.

Nemovitost je v původním, udržovaném stavu, připravená na rekonstrukci dle Vašeho vkusu. Díky tomu získáte možnost vytvořit si příjemné bydlení s vlastním charakterem nebo zhodnotit investici do nájemního bytu.

V galerii najdete i vizualizaci jak by mohly vypadat varianty bytu po rekonstrukci 1+1 nebo 2+kk...

Ulice Železničního pluku leží v širším centru Pardubic – jen pár minut od hlavního nádraží i samotného srdce města. V okolí najdete obchody, kavárny, služby, školy i zastávky MHD. Lokalita tak nabízí skvělou dostupnost pro každodenní život i stabilní poptávku po pronájmu.

Byt je v osobním vlastnictví a díky svým parametrům má potenciál stát se buď ideálním startovacím bydlením, nebo jistou investicí s dlouhodobým výnosem.

➡ Napište si o termín prohlídky – domluvíme termín a byt Vám osobně představím.

Parametry bytu

Stav
Rezervováno
Cena
4 190 000 Kč /za nemovitost Spočítat hypotéku
Aktualizováno
5. 1. 2026
Adresa
Železničního pluku, Pardubice, okres pardubice, Pardubice V
ID
970424
Stavba
Cihlová
Stav objektu
Dobrý
Patro
1. z 4
Vybaveno
Ne
Vlastnictví
Osobní
Užitná plocha
49 m2
Podlahová plocha
49 m2
Třída energetické náročnosti
G - Mimořádně nehospodárná
Elektřina
230V
Plyn
Plynovod
Voda
Vodovod
Sklep
Výtah

Kontaktovat makléře

Realitní kancelář

Logo EVROPA realitní kancelář

EVROPA realitní kancelář

Václavské náměstí 806/62, Praha

Chystáte se prodat nemovitost?
Pomůžeme Vám!

Máte zájem o tento byt?

Tímto, v souladu s nařízením Evropského parlamentu a Rady (EU) 2016/679, v platném znění, prohlašuji, že mi je alespoň 16 let a uděluji tak svůj souhlas se zpracováním zadaných údajů (jméno, telefon, e-mail, ip adresa) společnosti B3 Technology, s.r.o., IČ: 07330600, se sídlem Novostavby 126/23, 435 11 Lom (správce dat), za účelem předání dotazu z tohoto formuláře Vámi vybranému inzerentovi a zpětného kontaktování mé osoby. Osobní údaje bude správce zpracovávat manuálně i automaticky přímo prostřednictvím svých zaměstnanců. Informace předané tímto formulářem budou uloženy v databázi správce maximálně po dobu 10 let. Odvolání souhlasu s uložením a zpracováním poskytnutých dat lze e-mailem na info@bydlisnami.cz. V případě podezření na neoprávněné použití Vámi poskytnutých údajů máte právo předat podnět k šetření Úřadu pro ochranu osobních údajů. Více informací
Chystáte se prodat nemovitost?
Pomůžeme Vám!

Inzerát si prohlédlo 69 lidí

Prodejce

Roman Kasalý

Roman Kasalý

Hlídací pes

Chcete dostávat emailem podobné nabídky prodeje bytů 1+1 v Pardubicích?

Podobné nemovitosti