Prodej činžovního domu, Ústí nad Labem - Předlice, náměstí Prokopa Velikého, 576 m2

náměstí Prokopa Velikého, Ústí nad Labem-město

Cena na vyžádání /za nemovitost Získejte výhodnou HYPOTÉKU

(cena u makléře)

Doporučené firmy v Ústí nad Labem

Okna a dveře

Rekonstrukce

Informace k nemovitosti

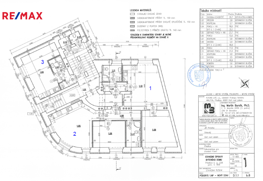
Nabízíme k prodeji letos zkolaudovaný činžovní dům s osmi byty ve 3 podlažích. Byty jsou v těchto dispozicích:
1.NP 2x 2+kk, 1+kk
2.NP 3x 2+kk
3.NP 3+kk, 2+kk
V galerii jsou namátkově vybrány fotografie z jednotlivých bytů.
Moderně postavený dům je vytápěn pomocí tepelného čerpadla, rozvod tepla i teplé vody je ústřední.
V podzemním podlaží je technická místnost s akumulační nádrží a bojlerem a další prostory pro vybudování sklepních kójí. Každý byt má svůj elektroměr a vodoměr. V domě je instalován samostatný rozvod požární vody včetně hlásičů kouře v každém bytu.
Dům je postaven s využitím obvodových zdí původního domu z roku 1912, podlahy, stropy a většina příček byla vybudována nově. Dům byl odizolován a zateplen, spadá do energetické kategorie B. Byty jsou vybaveny kuchyňskými linkami a koupelnami se sprchovými kouty. Na podlaze dlažba/ vinyl.
Dům je postaven nedaleko blízké rekreační oblasti Milada s plážemi, v okolí se nachází nákupní centrum, rychlodráha, cyklotrasa, zdravotní středisko, zastávka busu 450, 454, 458.
K domu náleží pozemek o velikosti 639 m2, z čehož přiléhající část u domu je vhodná k parkování, z další části je možné vytvořit zahradu.

K prodeji zvlášť je určen další pozemek sousedící s touto zahradou, má velikost 879 m2, kde by bylo možné postavit další dům.
V případě dalších dotazů mě neváhejte kontaktovat.

Parametry nemovitosti

Cena
Cena na vyžádání Spočítat hypotéku
Poznámka k ceně
cena u makléře
Aktualizováno
8. 1. 2026
Adresa
náměstí Prokopa Velikého, Ústí nad Labem-město
ID
022-NP02874
Stavba
Smíšená
Stav objektu
Novostavba
Typ objektu
Patrový
Lokalita objektu
Okraj obce
Užitná plocha
576 m2
Zastavěná plocha
205 m2
Podlahová plocha
576 m2
Třída energetické náročnosti
B - Velmi úsporná
Voda
Vodovod
Převod do OV

Kontaktovat makléře

Máte zájem o tuto nemovistost?

Tímto, v souladu s nařízením Evropského parlamentu a Rady (EU) 2016/679, v platném znění, prohlašuji, že mi je alespoň 16 let a uděluji tak svůj souhlas se zpracováním zadaných údajů (jméno, telefon, e-mail, ip adresa) společnosti B3 Technology, s.r.o., IČ: 07330600, se sídlem Novostavby 126/23, 435 11 Lom (správce dat), za účelem předání dotazu z tohoto formuláře Vámi vybranému inzerentovi a zpětného kontaktování mé osoby. Osobní údaje bude správce zpracovávat manuálně i automaticky přímo prostřednictvím svých zaměstnanců. Informace předané tímto formulářem budou uloženy v databázi správce maximálně po dobu 10 let. Odvolání souhlasu s uložením a zpracováním poskytnutých dat lze e-mailem na info@bydlisnami.cz. V případě podezření na neoprávněné použití Vámi poskytnutých údajů máte právo předat podnět k šetření Úřadu pro ochranu osobních údajů. Více informací
Chystáte se prodat nemovitost?
Pomůžeme Vám!

Inzerát si prohlédlo 41 lidí

Prodejce

Ing. Lucie Svobodová

Ing. Lucie Svobodová

Hlídací pes

Chcete dostávat emailem podobné nabídky prodeje činžovních domů v Ústí nad Labem?

Podobné nemovitosti