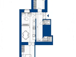
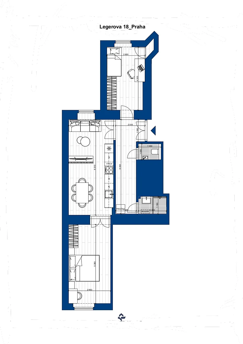
Prodej bytu 3+kk, Praha - Nové Město, Legerova, 72 m2 (ID: 2474214)

Legerova, Praha, Nové Město

10 290 000 Kč /za nemovitost HYPOTÉKA od 45 990 Kč /za měsíc
Doporučené firmy v Praze 2

Stěhovací služby

Výkup a prodej starého nábytku

Informace k bytu

Nabízíme nový byt 3+kk po kompletní rekonstrukci v ulici Legerova, Nové Město, Praha 2. Byt je čerstvě po rekonstrukci (dokončeno 10/2025), nový, neobydlený, příprava na kuchyňskou linku. Byt o celkové ploše 62 m², k tomu zděný sklep o velikosti 10 m² v suterénu, který je možný obývat (pynové vafky, el., umyvadlo, dřevěná zavěšená dvoupostel).

Byt se nachází v cihlovém budově v 2. nadzemním podlaží z 5. Byt je světlý a vzdušný. Dvě okna do vnitrobloku, jedno okno do ulice Legerova. Historický dům je v dobrém stavu, proběhla výměna oken do ulice Legerova, stoupačky, vstup na čip, ostatní části domu v dobrém stavu, výměna oken do dvora se chystá.

Dispozice bytu:
• obývací pokoj s přípravou pro kuchyňskou linku
• pokoj 1. s komorou
• pokoj 2.
• koupelna se sprchovým koutem, umyvadlem a bojlerem
• samostatné WC s umyvadlem
• chodba s prostorem na vestavěnou skříň a vývody na pračku
• sklep s patrovou dvoupostelí (obyvatelná místnost)

Poplatky týkající se bytu jsou nyní 4.300 Kč / měsíčně (voda, fond oprav, atd.) + poplatky ze elektřinu.

Rekonstrukce bytu zahrnovala:
• kompletní výměnu elektroinstalačních rozvodů
• kompletní výměnu rozvodů vody a odpadu
• topení na el. olejové radiátory
• kompletní úprava povrchů stěn (štukování, malování)
• nové dřevěné parkety na podlahách v pokojích
• podlahové obvodové lišty
• dveře interiérové nové včetně obložkových zárubní
• renovované dvoje vnitřní dvoukřídlé dveře
• kompletní nová koupelna a toaleta
• dlažba BETONICO bílo šedá 60x60 rekt.
• obklad BETONICO bílo šedá 60x60 rekt.
• umývadlo Laufen pro S 60 cm
• zrcadlo 60 x 80 cm s LED podsvícením
• nové WC závěsné
• nový sprchový kout
• umyvadlo se skříňkou
• páková vanová baterie na stěnu Grohe Vernis blend + Ruční sprcha Vario Eco
• SDK strop s bodovými světly na chodbě, WC, koupelně
• nová světla s dálkovým tlumením v pokojích
• před-příprava vývodů pro kuchyňskou linku
• vstup přes původní dvoukřídlé dveře

Kuchyňskou linku si můžete objednat i přes naší spolupracující dodavatele - bližší informace u makléře.

Dům stojí ve vynikající lokalitě s výbornou infrastrukturou a dostupností. V okolí naleznete veškerou občanskou vybavenost. Perfektní dopravní dostupnost k dispozici autobusy, tramvaje a stanice metra I.P. Pavlova 4 min chůze od bytu.

Parametry bytu

Cena
10 290 000 Kč /za nemovitost Spočítat hypotéku
Aktualizováno
13. 11. 2025
Adresa
Legerova, Praha, Nové Město
Stavba
Cihlová
Stav objektu
Po rekonstrukci
Patro
2. z 5
Lokalita objektu
Klidná část obce
Vlastnictví
Osobní
Užitná plocha
72 m2
Komunikace
Asfaltová
Doprava
MHD, Autobus
Voda
Vodovod
Sklep
Výtah

Kontaktovat makléře

Realitní kancelář

REINS

Na Příkopě 854/14, Praha

Chystáte se prodat nemovitost?
Pomůžeme Vám!

Máte zájem o tento byt?

Tímto, v souladu s nařízením Evropského parlamentu a Rady (EU) 2016/679, v platném znění, prohlašuji, že mi je alespoň 16 let a uděluji tak svůj souhlas se zpracováním zadaných údajů (jméno, telefon, e-mail, ip adresa) společnosti B3 Technology, s.r.o., IČ: 07330600, se sídlem Novostavby 126/23, 435 11 Lom (správce dat), za účelem předání dotazu z tohoto formuláře Vámi vybranému inzerentovi a zpětného kontaktování mé osoby. Osobní údaje bude správce zpracovávat manuálně i automaticky přímo prostřednictvím svých zaměstnanců. Informace předané tímto formulářem budou uloženy v databázi správce maximálně po dobu 10 let. Odvolání souhlasu s uložením a zpracováním poskytnutých dat lze e-mailem na info@bydlisnami.cz. V případě podezření na neoprávněné použití Vámi poskytnutých údajů máte právo předat podnět k šetření Úřadu pro ochranu osobních údajů. Více informací
Chystáte se prodat nemovitost?
Pomůžeme Vám!

Inzerát si prohlédlo 3 lidí

Prodejce

Ing. Linda Mangunda

Ing. Linda Mangunda

Hlídací pes

Chcete dostávat emailem podobné nabídky prodeje bytů 3+kk v Praze 2?

Top nabídky

Podobné nemovitosti