Prodej bytu 4+kk, Guardamar del Segura, Španělsko, 90 m2 (ID: 2479069)

Guardamar del Segura

259 900 € /za nemovitost
Doporučené firmy

Informace k bytu

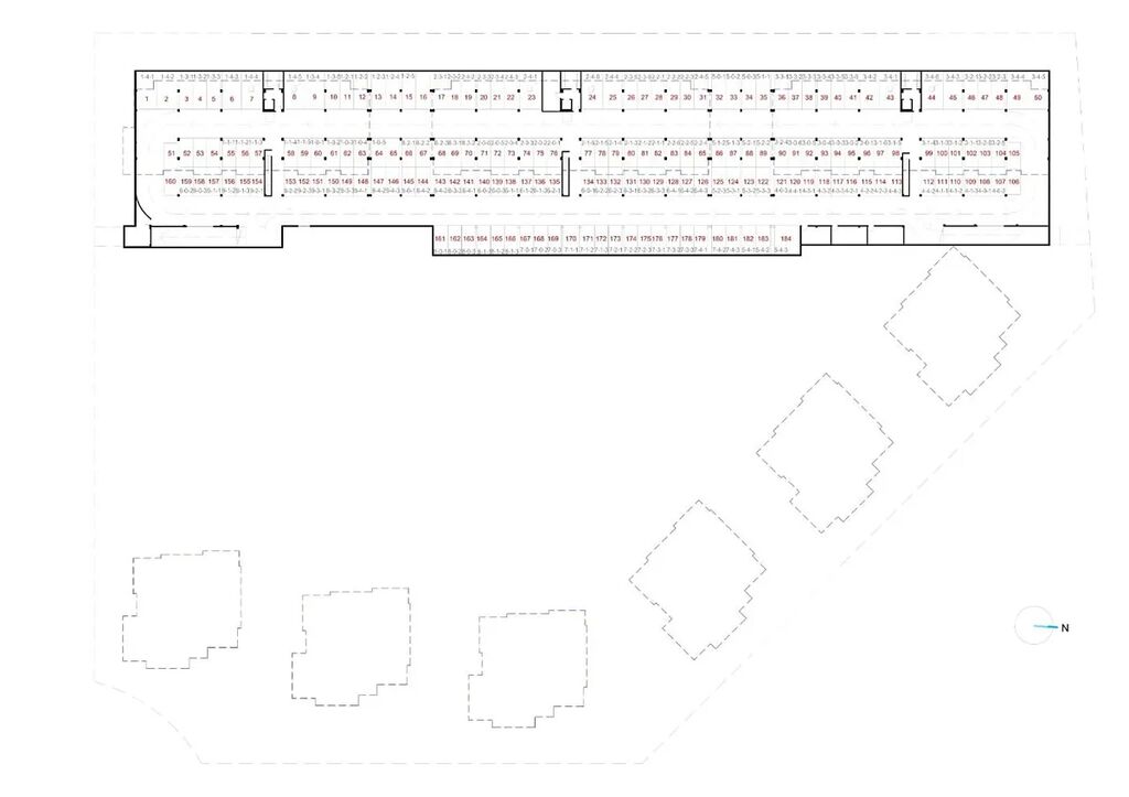
V příjemné části El Raso, obklopené zelení a klidným prostředím poblíž slaného jezera, vzniká nový rezidenční komplex zaměřený na moderní a pohodlné bydlení. Nabízený apartmán o dispozici 4+kk a celkové ploše 101 m² přináší prostorné řešení pro každodenní život, který je založený na pohodě, světle a dostatku místa pro všechny členy domácnosti. Dvě koupelny doplňují praktické rozvržení interiéru, zatímco terasa o velikosti 18 m² poskytuje příjemné zázemí pro posezení v soukromí.
Komplex je navržen tak, aby podporoval aktivní i odpočinkový způsob života. Obyvatelé mají k dispozici společný bazén, upravené zahrady, spa zónu, sportovní plochy, dětské hřiště i venkovní fitness. Prostor působí živě a přesto zůstává útulný, díky čemuž vytváří harmonické prostředí vhodné k trvalému bydlení i rekreačním pobytům. Bytová jednotka je moderně řešená, s otevřeným obývacím prostorem propojeným s kuchyní, který podporuje přirozené fungování domácnosti.
El Raso je část Guardamaru del Segura, města známého svými dlouhými přírodními plážemi, písečnými dunami a borovicovými lesy. V okolí komplexu se nachází menší obchodní centrum, restaurace, bary i další služby, které umožňují pohodlný každodenní život. Guardamar samotný nabízí přístav s celoročním programem, sportovní centrum, tenisové kurty, fotbalová hřiště a krytý bazén. Město si zachovává příjemně přátelskou atmosféru s dotykem tradičního španělského stylu.
Moře je vzdálené přibližně tři kilometry, díky čemuž je dostupné, ale zároveň poskytuje dostatek klidu pro ty, kdo dávají přednost nerušenému prostředí. Blízkost přírody, slaného jezera a zelených oblastí dodává lokalitě specifický charakter, který ocení milovníci relaxace i aktivního životního stylu.
Tento byt představuje zajímavou příležitost pro ty, kdo hledají moderní bydlení v klidné zóně poblíž přírody, ale zároveň chtějí mít služby po ruce. Nabízí dlouhodobou hodnotu a prostředí, ve kterém mohou vznikat hezké vzpomínky a čas strávený v pohodě. Pokud hledáte nemovitost v Guardamaru del Segura, tento apartmán má všechny předpoklady být místem, které si zamilujete.

Parametry bytu

Cena
259 900 € /za nemovitost
Aktualizováno
19. 11. 2025
Adresa
Guardamar del Segura
ID
F20091
Stavba
Cihlová
Stav objektu
Novostavba
Patro
3. z 3
Vybaveno
Částečně
Lokalita objektu
Klidná část obce
Vlastnictví
Osobní
Užitná plocha
90 m2
Podlahová plocha
101 m2
Elektřina
230V
Odpad
Veřejná kanalizace
Topení
Lokální elektrické
Telekomunikace
Internet
Doprava
Dálnice, Silnice, Autobus
Voda
Vodovod
Terasa
Výtah
Parkování

Kontaktovat makléře

Máte zájem o tento byt?

Tímto, v souladu s nařízením Evropského parlamentu a Rady (EU) 2016/679, v platném znění, prohlašuji, že mi je alespoň 16 let a uděluji tak svůj souhlas se zpracováním zadaných údajů (jméno, telefon, e-mail, ip adresa) společnosti B3 Technology, s.r.o., IČ: 07330600, se sídlem Novostavby 126/23, 435 11 Lom (správce dat), za účelem předání dotazu z tohoto formuláře Vámi vybranému inzerentovi a zpětného kontaktování mé osoby. Osobní údaje bude správce zpracovávat manuálně i automaticky přímo prostřednictvím svých zaměstnanců. Informace předané tímto formulářem budou uloženy v databázi správce maximálně po dobu 10 let. Odvolání souhlasu s uložením a zpracováním poskytnutých dat lze e-mailem na info@bydlisnami.cz. V případě podezření na neoprávněné použití Vámi poskytnutých údajů máte právo předat podnět k šetření Úřadu pro ochranu osobních údajů. Více informací
Chystáte se prodat nemovitost?
Pomůžeme Vám!

Inzerát si prohlédlo 2 lidí

Prodejce

Nikša Marinkovič

Nikša Marinkovič

Hlídací pes

Chcete dostávat emailem podobné nabídky prodeje bytů 4+kk?

Podobné nemovitosti