Prodej bytu 3+kk, Praha - Staré Město, Haštalská, 119 m2

Haštalská, Praha, Staré Město

29 990 000 Kč /za nemovitost HYPOTÉKA od 134 037 Kč /za měsíc
Doporučené firmy v Praze 1

Stěhovací služby

Výkup a prodej starého nábytku

Informace k bytu

Elegantní mezonet v prestižní části historického centra Prahy, spojující prvotřídní design s precizními detaily.


Představujeme jedinečný mezonetový byt o dispozici 3+kk a užitné ploše 119 m², situovaný v klidné a prestižní Haštalské ulici na Starém Městě, jen pár kroků od Pařížské ulice a Staroměstského náměstí. Spojení původní architektury, moderního designu a nadstandardního provedení vytváří výjimečné bydlení určené pro náročného klienta, který hledá kombinaci stylu, kvality a výjimečné lokality.

Interiér vznikl ve spolupráci s architektonickým studiem Acht. Každý prvek byl navržen a zhotoven na míru s důrazem na funkčnost, estetiku a špičkové zpracování detailu. Kuchyňská linka i veškeré vestavěné úložné prvky pocházejí z dílny Devoto Furniture.

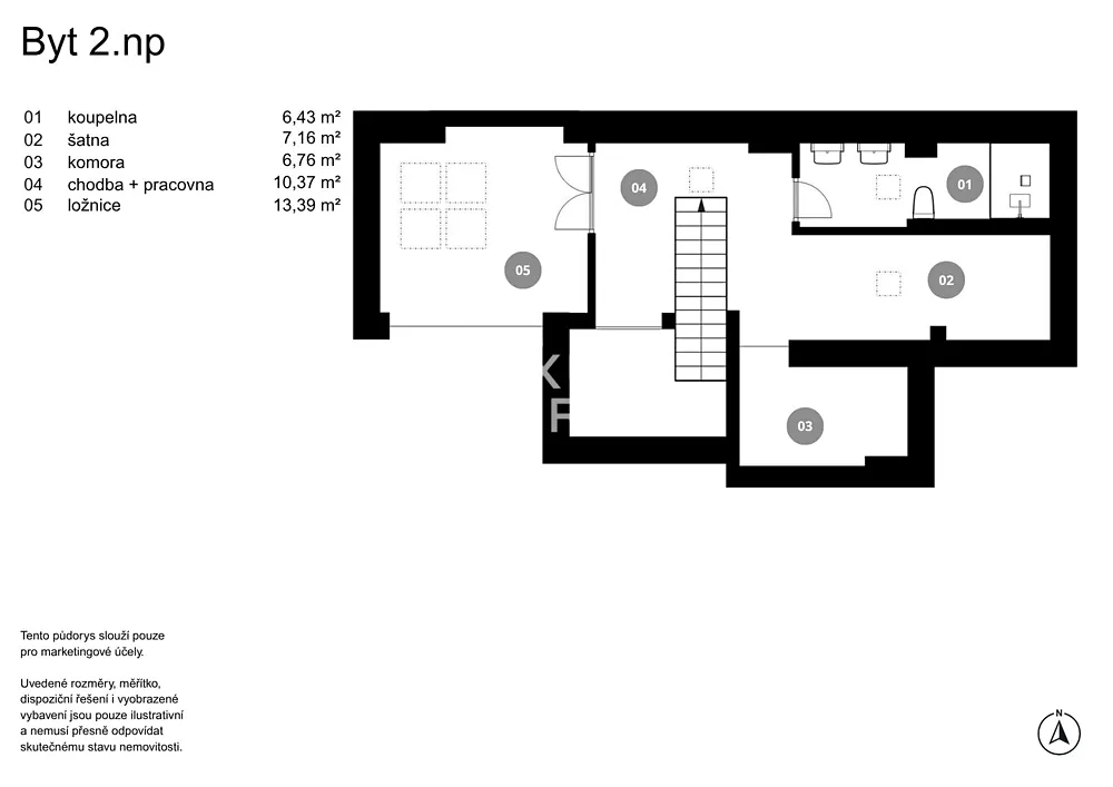
Spodní úroveň bytu nabízí velkorysý obývací prostor s kuchyní, ložnici oddělenou elegantní skleněnou stěnou Dorsis, koupelnu a vstupní část s technickým zázemím. Horní podlaží tvoří druhá ložnice, koupelna, galerie s pracovním koutem a prostorná walk-in šatna. 


Byt je vybaven ve vysokém standardu a připraven k nastěhování. Dominují zde kvalitní materiály a nadčasový design. Vestavěné skříně, kuchyň i další nábytek na míru jsou zhotoveny značkou Devoto Furniture, známou precizním zpracováním a prvotřídním designem.

Interiér bytu prošel kompletní a velmi kvalitní rekonstrukcí s důrazem na moderní design, nadčasové materiály a precizní řemeslné zpracování. Atmosféru domova podtrhuje promyšlené ambientní osvětlení, které vytváří příjemné světelné scény napříč celým prostorem. Kuchyňská linka je vybavena vestavěnými spotřebiči Bosch a nabízí vysoký komfort pro každodenní vaření. Součástí vybavení je také pračka a sušička Miele. Klimatizace zajišťuje příjemné prostředí po celý rok. Nová elektricky ovládaná střešní okna se systémem chytrého stínění přivádějí do interiéru dostatek denního světla a umožňují pohodlnou regulaci teploty i soukromí.


Bezpečnostní vstupní dveře, videotelefon a přístup do domu na čip poskytují vysokou úroveň zabezpečení. Celý dům prošel citlivou rekonstrukcí se zachováním původních architektonických prvků a byl doplněn o moderní výtah.


Haštalská ulice patří k nejkrásnějším a nejklidnějším částem Starého Města. Nachází se v samotném srdci historického centra, jen pár kroků od Pařížské ulice, Staroměstského náměstí, nábřeží Vltavy a Letenských sadů.


Okolí nabízí širokou škálu špičkových restaurací, stylových kaváren, butiků a galerií, které podtrhují výjimečný charakter této lokality. Výbornou dopravní dostupnost zajišťují stanice metra Staroměstská a Náměstí Republiky i několik tramvajových linek.


Pro chvíle odpočinku či aktivní relaxace je v okolí dostatek možností — od procházek podél Vltavy přes posezení v útulných kavárnách až po sportovní aktivity v Letenských sadech.


Tato adresa představuje dokonalé propojení prestižní lokality, vysokého životního standardu a výjimečné architektury, které z ní činí jedno z nejžádanějších míst pro bydlení v Praze.

Parametry bytu

Cena
29 990 000 Kč /za nemovitost Spočítat hypotéku
Aktualizováno
19. 11. 2025
Adresa
Haštalská, Praha, Staré Město
ID
532157
Stavba
Cihlová
Stav objektu
Velmi dobrý
Patro
6. z 6
Vybaveno
Ne
Vlastnictví
Osobní
Užitná plocha
119 m2
Třída energetické náročnosti
E - Nehospodárná
Výtah

Kontaktovat makléře

Máte zájem o tento byt?

Tímto, v souladu s nařízením Evropského parlamentu a Rady (EU) 2016/679, v platném znění, prohlašuji, že mi je alespoň 16 let a uděluji tak svůj souhlas se zpracováním zadaných údajů (jméno, telefon, e-mail, ip adresa) společnosti B3 Technology, s.r.o., IČ: 07330600, se sídlem Novostavby 126/23, 435 11 Lom (správce dat), za účelem předání dotazu z tohoto formuláře Vámi vybranému inzerentovi a zpětného kontaktování mé osoby. Osobní údaje bude správce zpracovávat manuálně i automaticky přímo prostřednictvím svých zaměstnanců. Informace předané tímto formulářem budou uloženy v databázi správce maximálně po dobu 10 let. Odvolání souhlasu s uložením a zpracováním poskytnutých dat lze e-mailem na info@bydlisnami.cz. V případě podezření na neoprávněné použití Vámi poskytnutých údajů máte právo předat podnět k šetření Úřadu pro ochranu osobních údajů. Více informací
Chystáte se prodat nemovitost?
Pomůžeme Vám!

Inzerát si prohlédlo 1 lidí

Prodejce

Adéla Bukovská - recepce

Adéla Bukovská - recepce

Hlídací pes

Chcete dostávat emailem podobné nabídky prodeje bytů 3+kk v Praze 1?

Podobné nemovitosti