Prodej bytu 4+kk, Hodonín, Komenského, 102 m2

Komenského, Hodonín

6 958 440 Kč /za nemovitost HYPOTÉKA od 31 100 Kč /za měsíc
Doporučené firmy v Hodoníně

Informace k bytu

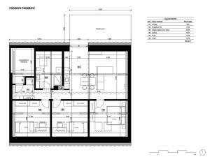
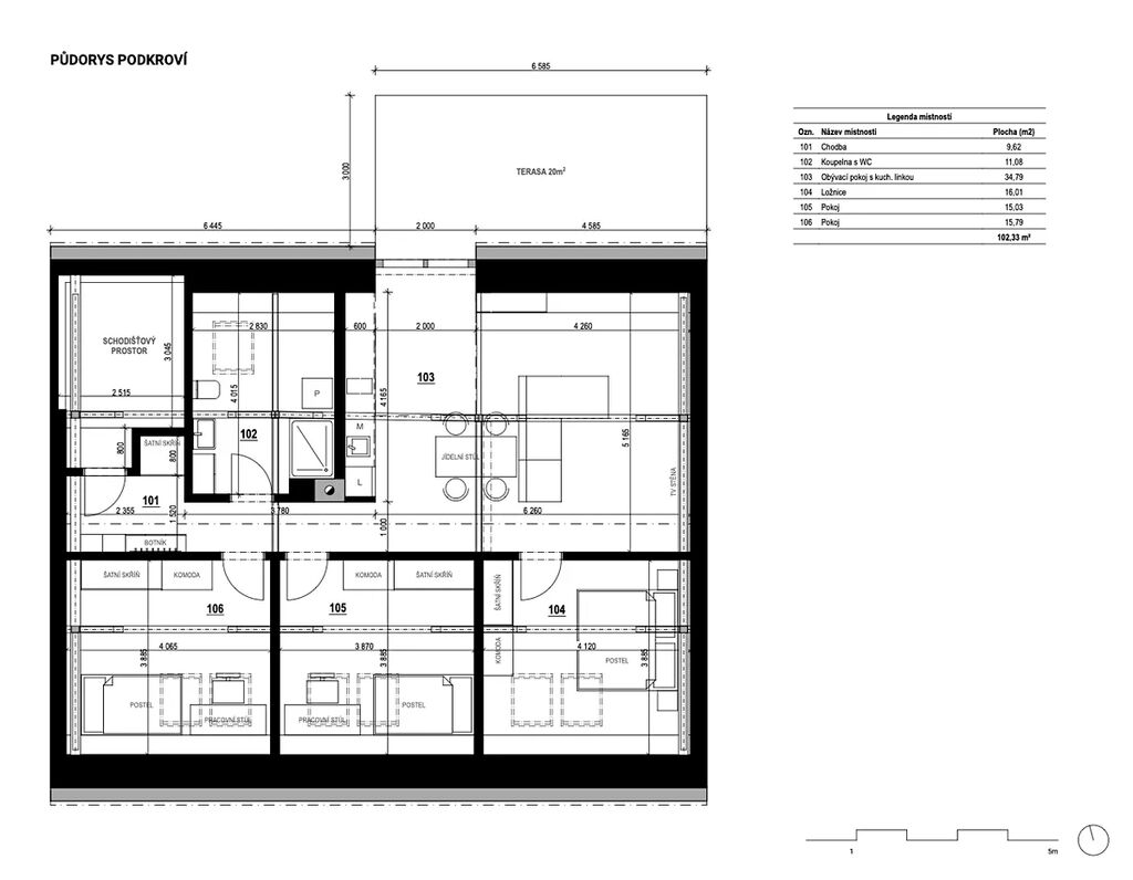
Exkluzivně nabízíme k prodeji prostorné podkroví o celkové užitné ploše 102,33 m² s velkou terasou 20 m², které vzniká v samotném centru města Hodonín. Tato nemovitost představuje jedinečnou příležitost pro zájemce o nové moderní bydlení v atraktivní lokalitě s možností přizpůsobit si finální podobu interiéru.

Podkroví nabízí promyšlené dispoziční uspořádání s velkorysým obytným prostorem. Dominantou je pak rozlehlá terasa orientovaná do klidné části, poskytující příjemné místo pro odpočinek i posezení s přáteli.

Jedná se o novou výstavbu s plánovaným dokončením do 6 měsíců, což budoucímu majiteli umožní provést klientské změny dle vlastních představ a vytvořit si domov přesně podle sebe. V projektu jsou použity kvalitní materiály a moderní stavební technologie, které zajišťují dlouhou životnost, nízké provozní náklady a komfortní užívání.

Tuto nabídku ocení jak rodiny, tak i páry či investoři hledající komfortní, nadstandartní, prostorné a nadčasové bydlení na výborné adrese v centru Hodonína, kde je veškerá občanská vybavenost v docházkové vzdálenosti.

Provozní náklady a další detaily Vám sdělí makléř uvedený u tohoto inzerátu. Prohlídky jsou možné po předchozí dohodě. V případě zájmu o více informací nás prosím kontaktujte nebo vyplňte formulář níže – rádi Vám pomůžeme.

Parametry bytu

Cena
6 958 440 Kč /za nemovitost Spočítat hypotéku
Aktualizováno
20. 11. 2025
Adresa
Komenského, Hodonín
ID
111
Stavba
Cihlová
Stav objektu
Ve výstavbě
Patro
2.
Vlastnictví
Osobní
Užitná plocha
102 m2
Třída energetické náročnosti
B - Velmi úsporná
Terasa

Kontaktovat makléře

Realitní kancelář

Etmedi

Kasárenská 4063/4, Hodonín

Chystáte se prodat nemovitost?
Pomůžeme Vám!

Máte zájem o tento byt?

Tímto, v souladu s nařízením Evropského parlamentu a Rady (EU) 2016/679, v platném znění, prohlašuji, že mi je alespoň 16 let a uděluji tak svůj souhlas se zpracováním zadaných údajů (jméno, telefon, e-mail, ip adresa) společnosti B3 Technology, s.r.o., IČ: 07330600, se sídlem Novostavby 126/23, 435 11 Lom (správce dat), za účelem předání dotazu z tohoto formuláře Vámi vybranému inzerentovi a zpětného kontaktování mé osoby. Osobní údaje bude správce zpracovávat manuálně i automaticky přímo prostřednictvím svých zaměstnanců. Informace předané tímto formulářem budou uloženy v databázi správce maximálně po dobu 10 let. Odvolání souhlasu s uložením a zpracováním poskytnutých dat lze e-mailem na info@bydlisnami.cz. V případě podezření na neoprávněné použití Vámi poskytnutých údajů máte právo předat podnět k šetření Úřadu pro ochranu osobních údajů. Více informací
Chystáte se prodat nemovitost?
Pomůžeme Vám!

Inzerát si prohlédlo 97 lidí

Prodejce

Václav Blaha

Václav Blaha

Hlídací pes

Chcete dostávat emailem podobné nabídky prodeje bytů 4+kk v Hodoníně?

Podobné nemovitosti