Prodej bytu 3+kk, Novalja, Chorvatsko, 56 m2 (ID: 2481142)

Novalja

226 419 € /za nemovitost
Doporučené firmy

Informace k bytu

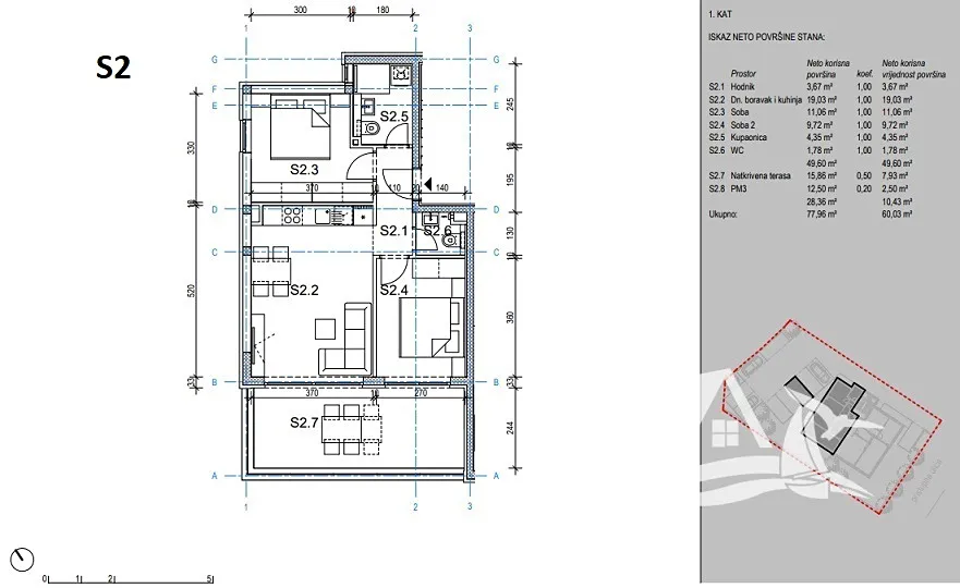
Nabízíme k prodeji třípokojový byt (S2) o rozloze 60,03 m², který se nachází v prvním patře novostavby v oblíbené lokalitě Novalja. Byt nabízí moderní dispozici a jedinečný panoramatický výhled na moře.

Byt se skládá z chodby, koupelny s WC, dvou ložnic, obývacího pokoje a kuchyně. K bytu náleží prostorná terasa o velikosti 15,86 m², která je částečně zastřešená a poskytuje ideální místo pro relaxaci s výhledem na celý záliv Novalja. Díky mírnému sklonu terénu je výhled nerušený a zajišťuje maximální soukromí.

V bytě je instalováno podlahové vytápění a klimatizace, což zajišťuje vysoký komfort bydlení po celý rok. Při výstavbě byly použity pouze nejkvalitnější materiály a zařízení, což garantuje dlouhou životnost a nadstandardní provedení interiéru.

K bytu náleží také vyhrazené parkovací stání. Lokalita nabízí vynikající dostupnost, k moři a do centra města je to pouhých 10 minut chůze.

Tento byt je ideální volbou pro ty, kteří hledají moderní a kvalitní bydlení s nádherným výhledem na moře v jedné z nejžádanějších destinací na ostrově Pag. Pro více informací nebo domluvení prohlídky nás neváhejte kontaktovat.

Parametry bytu

Cena
226 419 € /za nemovitost
Aktualizováno
21. 11. 2025
Adresa
Novalja
ID
F19559
Stavba
Cihlová
Stav objektu
Novostavba
Patro
2. z 3
Vybaveno
Částečně
Lokalita objektu
Klidná část obce
Vlastnictví
Osobní
Užitná plocha
56 m2
Podlahová plocha
60 m2
Elektřina
230V
Odpad
ČOV pro celý objekt
Topení
Lokální elektrické
Doprava
Silnice
Terasa
Výtah
Parkování

Kontaktovat makléře

Máte zájem o tento byt?

Tímto, v souladu s nařízením Evropského parlamentu a Rady (EU) 2016/679, v platném znění, prohlašuji, že mi je alespoň 16 let a uděluji tak svůj souhlas se zpracováním zadaných údajů (jméno, telefon, e-mail, ip adresa) společnosti B3 Technology, s.r.o., IČ: 07330600, se sídlem Novostavby 126/23, 435 11 Lom (správce dat), za účelem předání dotazu z tohoto formuláře Vámi vybranému inzerentovi a zpětného kontaktování mé osoby. Osobní údaje bude správce zpracovávat manuálně i automaticky přímo prostřednictvím svých zaměstnanců. Informace předané tímto formulářem budou uloženy v databázi správce maximálně po dobu 10 let. Odvolání souhlasu s uložením a zpracováním poskytnutých dat lze e-mailem na info@bydlisnami.cz. V případě podezření na neoprávněné použití Vámi poskytnutých údajů máte právo předat podnět k šetření Úřadu pro ochranu osobních údajů. Více informací
Chystáte se prodat nemovitost?
Pomůžeme Vám!

Inzerát si prohlédlo 0 lidí

Prodejce

Nikša Marinkovič

Nikša Marinkovič

Hlídací pes

Chcete dostávat emailem podobné nabídky prodeje bytů 3+kk?

Podobné nemovitosti