Prodej bytu 2+kk, Kolín, Raisova, 44 m2

Raisova, Kolín V

4 400 000 Kč /za nemovitost HYPOTÉKA od 19 665 Kč /za měsíc

(Včetně právního servisu a provize RK)

Doporučené firmy v Kolíně

Informace k bytu

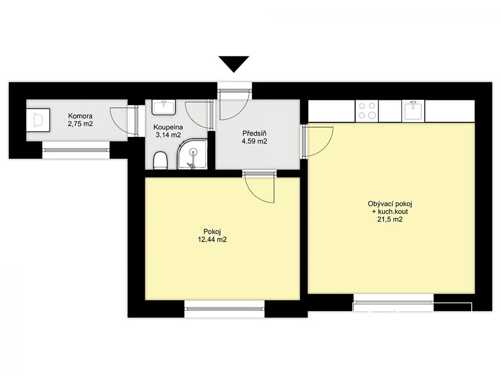
Nabízíme Vám ateliér o dispozici 2+kk a velikosti 44 m2 ve druhém patře prvorepublikové vily v Kolíně Zálabí, který je zařízen a vybaven jako pohodlný byt. Tento ateliér vznikl před dvěma lety, kdy byl dům, ve kterém se nachází kompletně zrekonstruován. V domě jsou celkem tři byty, ateliér, kanceláře a sauna.

Ateliér je díky velkým Eurooknům a světlému interiéru příjemně prosluněný. Ateliér je prostorný a je zde jasně vidět spolupráce s architektkou, vznikl velice vkusný a praktický prostor s obývacím pokojem a kuchyní, ložnice, koupelna s WC a komora. Kuchyň je vybavena troubou, mikrovlnou troubou, lednicí, myčkou a indukcí. Nejčastěji používaný materiál je zde dřevo, vč. podlahové krytiny, díky tomu působí byt příjemným a teplým dojmem. V ložnici je položený koberec. Celkově byl při rekonstrukci domu kladen důraz na kvalitu použitých materiálů.

Byt se prodává včetně veškerého nábytku a vybavení, např. televizor, pračka, myčka.
Vytápění je zde pomocí tepelného čerpadla na principu vzduch - voda, tudíž slouží i pro ohřev vody.
Náklady na topení, vodu a elektřinu činí cca 3 až 4 tisíce korun.

Zahrada je stejně jako sauna k dispozici všem vlastníkům jednotek.

Nyní se pracuje na založení SVJ, papírová forma je již připravena, jedná se pouze o doladění s úřady. Toto bydlení je vhodné pro ty z Vás, kteří nechtějí bydlet v panelovém domě a ocení benefit ke svému bydlení v podobě pobytu na zahradě, která má ve své zadní části pergolu, či možnost využít saunu.

V centru Kolína jste svižnou chůzí za 10 min.

Na byt lze uplatnit odpočet DPH (12%), v tom případě je cena 3,928.571,- Kč.

Pokud Vás nabídka zaujala, kontaktujte mne, ráda Vás bytem a zahradou provedu. S financováním Vám můžeme pomoci.

Parametry bytu

Cena
4 400 000 Kč /za nemovitost Spočítat hypotéku
Poznámka k ceně
Včetně právního servisu a provize RK
Aktualizováno
21. 11. 2025
Adresa
Raisova, Kolín V
ID
971
Stavba
Cihlová
Stav objektu
Po rekonstrukci
Patro
2. z 3
Vlastnictví
Osobní
Užitná plocha
44 m2
Podlahová plocha
44 m2
Plocha zahrady
391 m2
Třída energetické náročnosti
D - Méně úsporná
Elektřina
230V, 400V
Odpad
Veřejná kanalizace
Komunikace
Asfaltová
Telekomunikace
Internet, Satelit, Kabelová televize
Doprava
Vlak, Silnice, MHD, Autobus
Voda
Vodovod
Topné těleso
Radiátory
Zdroj topení
Tepelné čerpadlo
Zdroj teplé vody
Tepelné čerpadlo
Bezbarierový přístup

Kontaktovat makléře

Máte zájem o tento byt?

Tímto, v souladu s nařízením Evropského parlamentu a Rady (EU) 2016/679, v platném znění, prohlašuji, že mi je alespoň 16 let a uděluji tak svůj souhlas se zpracováním zadaných údajů (jméno, telefon, e-mail, ip adresa) společnosti B3 Technology, s.r.o., IČ: 07330600, se sídlem Novostavby 126/23, 435 11 Lom (správce dat), za účelem předání dotazu z tohoto formuláře Vámi vybranému inzerentovi a zpětného kontaktování mé osoby. Osobní údaje bude správce zpracovávat manuálně i automaticky přímo prostřednictvím svých zaměstnanců. Informace předané tímto formulářem budou uloženy v databázi správce maximálně po dobu 10 let. Odvolání souhlasu s uložením a zpracováním poskytnutých dat lze e-mailem na info@bydlisnami.cz. V případě podezření na neoprávněné použití Vámi poskytnutých údajů máte právo předat podnět k šetření Úřadu pro ochranu osobních údajů. Více informací
Chystáte se prodat nemovitost?
Pomůžeme Vám!

Inzerát si prohlédlo 1 lidí

Prodejce

Kateřina Skalníková

Kateřina Skalníková

Hlídací pes

Chcete dostávat emailem podobné nabídky prodeje bytů 2+kk v Kolíně?

Podobné nemovitosti