Prodej bytu 2+1, Tišnov, Halasova, 53 m2

Halasova, Tišnov

4 490 000 Kč /za nemovitost HYPOTÉKA od 20 068 Kč /za měsíc
Doporučené firmy v Tišnově

Informace k bytu

Nabízíme k prodeji byt o dispozici 2+1 v klidné části města Tišnov. Bytová jednotka je situována v 7. nadzemním podlaží panelového bytového domu, což zajišťuje mimořádně tiché prostředí a současně atraktivní výhledy z obývacího pokoje a ložnice směrem na západ na město, z kuchyně pak na východ do lesa s dominantou rozhledny Klucanina.

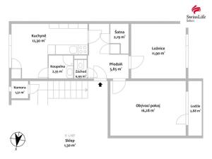
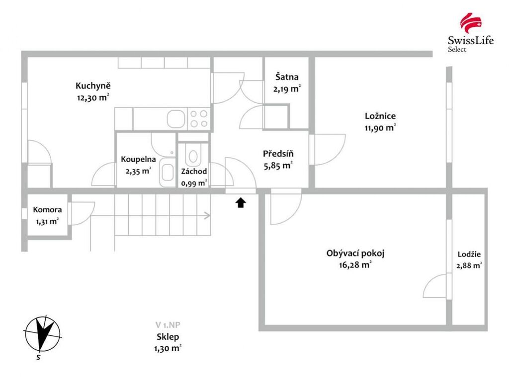
Užitná plocha bytu činí 53,17 m. Dispozičně je prostor řešen následovně: obývací pokoj 16,28 m, ložnice 11,90 m, kuchyň 12,30 m, předsíň 5,85 m, koupelna 2,35 m, samostatné WC 0,99 m, šatna 2,19 m a komora 1,31 m umístěná na společné chodbě. Součástí je také lodžie s výsuvnou markýzou o výměře 2,88 m a sklepní kóje 1,30 m v suterénu.

Technický stav odpovídá původnímu standardu umakartové jádro obložené keramickým obkladem, kombinované podlahové krytiny (dřevo, linoleum, dlažba), původní ocelové zárubně a udržovaná kuchyňská linka. Byt je obyvatelný ve stávajícím stavu, nicméně pro dosažení současného standardu bydlení je vhodná rekonstrukce.

Lokalita je velmi klidná, s bezprostřední návazností na přírodu a volnočasové trasy. Město Tišnov nabízí kompletní občanskou vybavenost v docházkové vzdálenosti školy, zdravotnické služby, obchody i sportoviště. Dopravní napojení do Brna je výborné; autem jste u OC Globus do 20 minut.

V případě více zájemců o nemovitost, si majitel vyhrazuje právo prodat nemovitost zájemci s nejvyšší nabídkou.

Parametry bytu

Cena
4 490 000 Kč /za nemovitost Spočítat hypotéku
Aktualizováno
21. 11. 2025
Adresa
Halasova, Tišnov
ID
24826
Stavba
Panelová
Stav objektu
Dobrý
Patro
7. z 9
Vybaveno
Částečně
Typ objektu
Patrový
Vlastnictví
Osobní
Užitná plocha
53 m2
Podlahová plocha
53 m2
Třída energetické náročnosti
D - Méně úsporná
Elektřina
230V
Plyn
Plynovod
Odpad
Veřejná kanalizace
Topení
Ústřední dálkové
Komunikace
Asfaltová
Doprava
Vlak, Silnice, Autobus
Voda
Vodovod
Sklep
Lodžie
Výtah
Bezbarierový přístup

Kontaktovat makléře

Máte zájem o tento byt?

Tímto, v souladu s nařízením Evropského parlamentu a Rady (EU) 2016/679, v platném znění, prohlašuji, že mi je alespoň 16 let a uděluji tak svůj souhlas se zpracováním zadaných údajů (jméno, telefon, e-mail, ip adresa) společnosti B3 Technology, s.r.o., IČ: 07330600, se sídlem Novostavby 126/23, 435 11 Lom (správce dat), za účelem předání dotazu z tohoto formuláře Vámi vybranému inzerentovi a zpětného kontaktování mé osoby. Osobní údaje bude správce zpracovávat manuálně i automaticky přímo prostřednictvím svých zaměstnanců. Informace předané tímto formulářem budou uloženy v databázi správce maximálně po dobu 10 let. Odvolání souhlasu s uložením a zpracováním poskytnutých dat lze e-mailem na info@bydlisnami.cz. V případě podezření na neoprávněné použití Vámi poskytnutých údajů máte právo předat podnět k šetření Úřadu pro ochranu osobních údajů. Více informací
Chystáte se prodat nemovitost?
Pomůžeme Vám!

Inzerát si prohlédlo 0 lidí

Prodejce

Ing. Věra Heřmánková Ph.D.

Ing. Věra Heřmánková Ph.D.

Hlídací pes

Chcete dostávat emailem podobné nabídky prodeje bytů 2+1 v Tišnově?

Podobné nemovitosti