Prodej bytu 2+kk, Praha - Břevnov, Patočkova, 39 m2

Patočkova, Praha 6

6 770 000 Kč /za nemovitost HYPOTÉKA od 30 258 Kč /za měsíc

(vč. provize a právního servisu)

Doporučené firmy v Praze 6

Stěhovací služby

Výkup a prodej starého nábytku

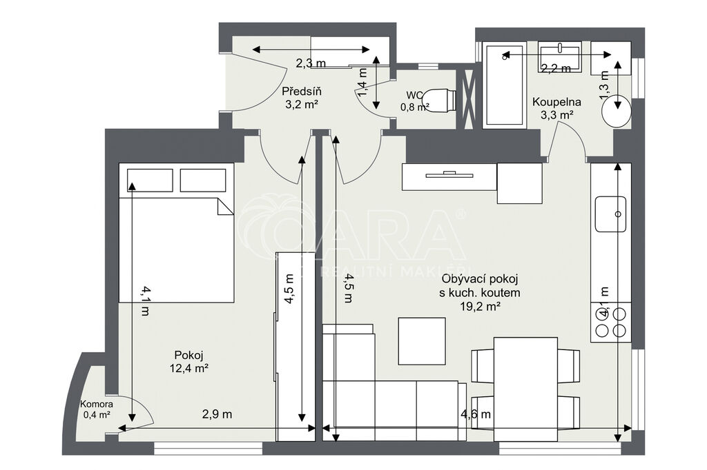
Informace k bytu

Nabízíme k prodeji 2+kk o velikosti 39,3 m², který se nachází v 6. (předposledním) nadzemním podlaží cihlového domu s výtahem v oblíbené části Prahy 6 – Břevnov v ulici Patočkova.

Jednotka prošla částečnou modernizací a je plně vybavena tak, abyste se mohli okamžitě nastěhovat nebo ji bez problémů nabídnout k pronájmu.

Součástí bytu je kuchyňská linka včetně spotřebičů (plynový sporák s troubou, digestoř, lednice s mrazákem), rohová rozkládací sedačka, jídelní stůl se židlemi, LCD televize. V ložnici pak postel a prostorná šatní skříň. Koupelna je s menší vanou, k dispozici budete mít i pračku. WC je oddělené.

Podlahy tvoří dřevěné parkety v obývacím pokoji, plovoucí podlaha v ložnici. V koupelně je dlažba. Okna plastová. Vytápění plynovými WAW ohřev vody zabezpečuje elektrický bojler.

Lokalita nabízí výbornou občanskou vybavenost vč. dostupnosti MHD. Autobusová zastávka s rychlým spojením (10 min.) na metro Dejvická je 2 min. chůzí od domu. V těsné blízkosti jsou také parky Kajetánka nebo Ladronka. Pohodlné parkování na zónách v zadní části domu.

Tato nemovitost představuje skvělou příležitost pro vlastní bydlení i investici s okamžitou návratností. Volné ihned.

V případě zájmu o osobní prohlídku, mne neváhejte kontaktovat.

Parametry bytu

Cena
6 770 000 Kč /za nemovitost Spočítat hypotéku
Poznámka k ceně
vč. provize a právního servisu
Aktualizováno
23. 11. 2025
Adresa
Patočkova, Praha 6
ID
18049
Stavba
Cihlová
Stav objektu
Velmi dobrý
Patro
6. z 7
Vybaveno
Ano
Vlastnictví
Osobní
Užitná plocha
39 m2
Podlahová plocha
39 m2
Třída energetické náročnosti
E - Nehospodárná
Elektřina
230V
Plyn
Plynovod
Odpad
Veřejná kanalizace
Komunikace
Asfaltová
Telekomunikace
Internet
Doprava
MHD
Voda
Vodovod
Sklep
Výtah

Kontaktovat makléře

Realitní kancelář

Logo QARA, s.r.o.

QARA, s.r.o.

Šafaříkova 201/17, Praha

Chystáte se prodat nemovitost?
Pomůžeme Vám!

Máte zájem o tento byt?

Tímto, v souladu s nařízením Evropského parlamentu a Rady (EU) 2016/679, v platném znění, prohlašuji, že mi je alespoň 16 let a uděluji tak svůj souhlas se zpracováním zadaných údajů (jméno, telefon, e-mail, ip adresa) společnosti B3 Technology, s.r.o., IČ: 07330600, se sídlem Novostavby 126/23, 435 11 Lom (správce dat), za účelem předání dotazu z tohoto formuláře Vámi vybranému inzerentovi a zpětného kontaktování mé osoby. Osobní údaje bude správce zpracovávat manuálně i automaticky přímo prostřednictvím svých zaměstnanců. Informace předané tímto formulářem budou uloženy v databázi správce maximálně po dobu 10 let. Odvolání souhlasu s uložením a zpracováním poskytnutých dat lze e-mailem na info@bydlisnami.cz. V případě podezření na neoprávněné použití Vámi poskytnutých údajů máte právo předat podnět k šetření Úřadu pro ochranu osobních údajů. Více informací
Chystáte se prodat nemovitost?
Pomůžeme Vám!

Inzerát si prohlédlo 1 lidí

Prodejce

Petr Hornát

Petr Hornát

Hlídací pes

Chcete dostávat emailem podobné nabídky prodeje bytů 2+kk v Praze 6?

Podobné nemovitosti