Prodej bytu 3+kk, Přísnotice, Žabčická, 75 m2

Žabčická, Přísnotice

6 800 000 Kč /za nemovitost HYPOTÉKA od 30 392 Kč /za měsíc

(včetně provize, včetně právního servisu)

Doporučené firmy v Přísnoticích

Informace k bytu

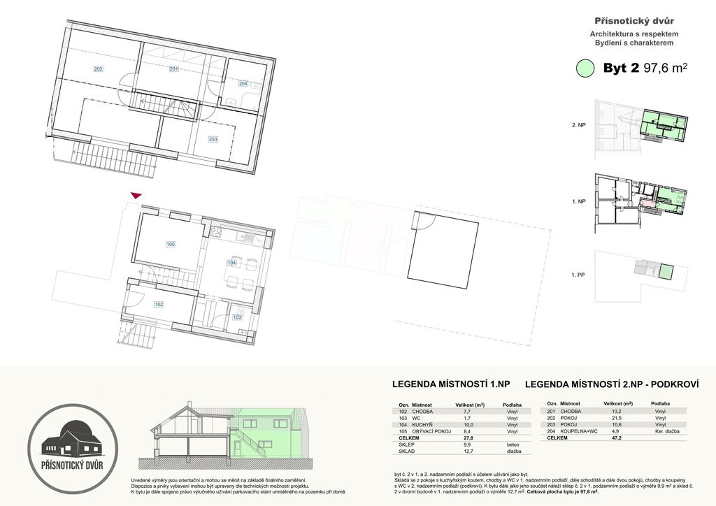
Rádi Vám představujeme moderní projekt Přísnotický dvůr, který nabízí tři ojedinělé bytové jednotky v malebné a tradiční vinařské obci Přísnotice. Dům s pouhými třemi byty se nachází v centru obce, při ulici Žabčická – Přibická. Projekt tvoří bytové jednotky nesoucí jména inspirovaná historií obce – Bartoloměj, Florián a Urban. Přísnotice, obec s přibližně 886 obyvateli, se vyznačují klidnou atmosférou, komunitním životem a výbornou dostupností do Brna i Židlochovic.

Nabízená bytová jednotka 3+KK Bartoloměj disponuje užitnou plochou 75 m², rozvrženou do dvou podlaží – přízemí a podkroví. K bytu náleží sklep 9,9 m² a venkovní sklad 12,7 m², vhodný na pneumatiky, nosiče, sportovní vybavení i motorku. Celková plocha činí 97,6 m² + parkovací místo ve výlučném užívání. Mezonetové uspořádání působí jako „rodinné bydlení v bytě“, nabízí přirozené oddělení denní a noční části i vyšší míru soukromí.

Spodní podlaží tvoří obývací pokoj s kuchyní (JV) a jídelní částí, prostorné zádveří a toaletu. Horní podlaží tvoří klidová část s dvěma samostatnými vstupy do pokojů orientovanými na severozápad, což poskytuje příjemné světlo bez přehřívání v létě. Koupelna se sprchovým koutem, WC a šatna s prostorem pro pračku či sušičku. K vyššímu komfortu přispívají dvě vnitřní klimatizační jednotky doplněné venkovní jednotkou. Výhodou je i samostatný vstup ze zadní části budovy.

Projekt je realizován s důrazem na kvalitu, energetickou úspornost a akustický komfort. Stropní konstrukce mezi podlažími mají skladbu téměř 0,5 m, příčkové konstrukce v podkroví jsou doplněny hustou izolační výplní a využita je stříkaná izolace s výbornými tepelnými i akustickými vlastnostmi oproti běžné skelné vatě. Střešní okna VELUX s izolačními trojskly zajišťují stabilní teplotní i zvukový komfort.

Hlavní přednosti bytu Bartoloměj:
• Mezonetové řešení – pocit bydlení v RD
• 2 toalety v bytě
• 2 klimatizační jednotky + venkovní jednotka
• Prostorné zádveří
• Pokoje orientované na SZ i JV
• Izolační střešní okna - trojskla VELUX
• Stříkaná izolace s H2 FOAM LITE
• Elektrické podlahové vytápění
• Energetická třída B
• SPC podlahy v dekoru dřeva
• Rakouské Dveře DANA 2100 mm již ve Standardu
• Kovové brány na míru, příprava na žaluzie

Přísnotice jsou skvělou volbou pro rodiny. Obec nabízí MŠ i ZŠ, knihovnu, kulturní akce a aktivní spolky – fotbal, lehkou atletiku, zahrádkáře, dobrovolné hasiče či Klub Lhéta. Širší občanskou vybavenost zajišťují nedaleké Židlochovice.

Dopravní spojení je výborné: vlaková linka S3 ze stanice Žabčice směřuje na Brno (20–30 min), autobusová linka IDS JMK 520 spojuje Přísnotice s okolními obcemi.

Stavba je dokončena z 85 %. Financování můžete řešit hypotečním úvěrem se zástavou s postupným čerpáním: 20 % (záloha) / 30 % (po omítky) / 30 % (hotové povrchy) / 20 % (po kolaudaci). Podmínky lze individuálně upravit.

Byt Bartoloměj nabízí klidné a komfortní mezonetové bydlení s příjemnou atmosférou domova. Rádi Vám jej představíme osobně.

Parametry bytu

Cena
6 800 000 Kč /za nemovitost Spočítat hypotéku
Poznámka k ceně
včetně provize, včetně právního servisu
Aktualizováno
23. 11. 2025
Adresa
Žabčická, Přísnotice
ID
202534
Stavba
Cihlová
Stav objektu
Novostavba
Patro
1. z 2
Druh objektu
Rohový
Lokalita objektu
Centrum obce
Vlastnictví
Osobní
Užitná plocha
75 m2
Podlahová plocha
98 m2
Třída energetické náročnosti
B - Velmi úsporná
Ukazatel energetické náročnosti
61.5 kWh/m2 za rok
Elektřina
230V, 400V
Odpad
Veřejná kanalizace
Topení
Jiné
Komunikace
Dlážděná, Asfaltová
Telekomunikace
Telefon, Internet, Kabelová televize
Doprava
Vlak, Dálnice, Silnice, MHD, Autobus
Voda
Vodovod
Sklep
Parkování
Nízkoenergetický

Kontaktovat makléře

Máte zájem o tento byt?

Tímto, v souladu s nařízením Evropského parlamentu a Rady (EU) 2016/679, v platném znění, prohlašuji, že mi je alespoň 16 let a uděluji tak svůj souhlas se zpracováním zadaných údajů (jméno, telefon, e-mail, ip adresa) společnosti B3 Technology, s.r.o., IČ: 07330600, se sídlem Novostavby 126/23, 435 11 Lom (správce dat), za účelem předání dotazu z tohoto formuláře Vámi vybranému inzerentovi a zpětného kontaktování mé osoby. Osobní údaje bude správce zpracovávat manuálně i automaticky přímo prostřednictvím svých zaměstnanců. Informace předané tímto formulářem budou uloženy v databázi správce maximálně po dobu 10 let. Odvolání souhlasu s uložením a zpracováním poskytnutých dat lze e-mailem na info@bydlisnami.cz. V případě podezření na neoprávněné použití Vámi poskytnutých údajů máte právo předat podnět k šetření Úřadu pro ochranu osobních údajů. Více informací
Chystáte se prodat nemovitost?
Pomůžeme Vám!

Inzerát si prohlédlo 1 lidí

Prodejce

Boris Tonev

Boris Tonev

Hlídací pes

Chcete dostávat emailem podobné nabídky prodeje bytů 3+kk v Přísnoticích?

Podobné nemovitosti